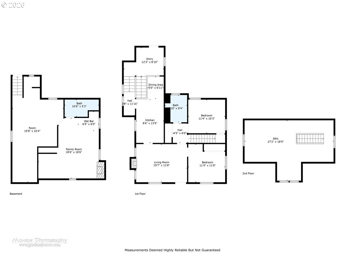
Hip Sellwood bungalow with thoughtful updates, flexible floorplan and unbeatable location! Nestled on a tree-lined street in one of Portland’s most beloved neighborhoods, this beautifully improved home blends classic character with major system upgrades. Relax on your huge front porch and enjoy peace of mind with the recent improvements which include a new roof, central A/C, new furnace, updated sewer line, radon mitigation system, new gutters, fresh interior paint, decommissioned oil tank AND a whole new addition to expand the kitchen and access to the basement- there are too many updates to list here, you MUST check out the updates list!The heart of the home is the stunning renovated kitchen and dining nook, taken down to the studs and rebuilt with new cabinetry, countertops, flooring, range, hood vent, dishwasher, backsplash, and beautiful fixtures. A new mudroom/office addition adds smart use of space. The finished basement apartment has an egress window and full bathroom. This space offers a bonus living room, guest room potential or even a primary suite option. The basement also has tons of flex space with Gym, workshop/craft, laundry area. Upstairs has a wide open bonus space with natural light and even more potential to make it a future primary suite. Located just blocks from Sellwood’s shops, cafes, parks, and restaurants, not to forget so close to the Willamette river with beaches, amusement parks, dog parks, boating and water activities. Walk Score of 89 and Bike Score of 98 make it easy to enjoy everything nearby. OPEN SUNDAY 2-4
Listing Provided Courtesy of Angela Stevens, Keller Williams Realty Professionals
General Information
202552982
SingleFamilyResidence
1
DOM
4
5227.2 SqFt
2
2230
1922
Multnomah
R267105
Duniway 6/10
Sellwood 8/10
Cleveland 5/10
Residential
SingleFamilyResidence
SELLWOOD, BLOCK 44, LOT 6
Listing Provided Courtesy of Angela Stevens, Keller Williams Realty Professionals
Krishna Realty data last checked: Apr 17, 2026 01:01 | Listing last modified Apr 16, 2026 20:33,
Source:
Hip Sellwood bungalow with thoughtful updates, flexible floorplan and unbeatable location! Nestled on a tree-lined street in one of Portland’s most beloved neighborhoods, this beautifully improved home blends classic character with major system upgrades. Relax on your huge front porch and enjoy peace of mind with the recent improvements which include a new roof, central A/C, new furnace, updated sewer line, radon mitigation system, new gutters, fresh interior paint, decommissioned oil tank AND a whole new addition to expand the kitchen and access to the basement- there are too many updates to list here, you MUST check out the updates list!The heart of the home is the stunning renovated kitchen and dining nook, taken down to the studs and rebuilt with new cabinetry, countertops, flooring, range, hood vent, dishwasher, backsplash, and beautiful fixtures. A new mudroom/office addition adds smart use of space. The finished basement apartment has an egress window and full bathroom. This space offers a bonus living room, guest room potential or even a primary suite option. The basement also has tons of flex space with Gym, workshop/craft, laundry area. Upstairs has a wide open bonus space with natural light and even more potential to make it a future primary suite. Located just blocks from Sellwood’s shops, cafes, parks, and restaurants, not to forget so close to the Willamette river with beaches, amusement parks, dog parks, boating and water activities. Walk Score of 89 and Bike Score of 98 make it easy to enjoy everything nearby. OPEN SUNDAY 2-4