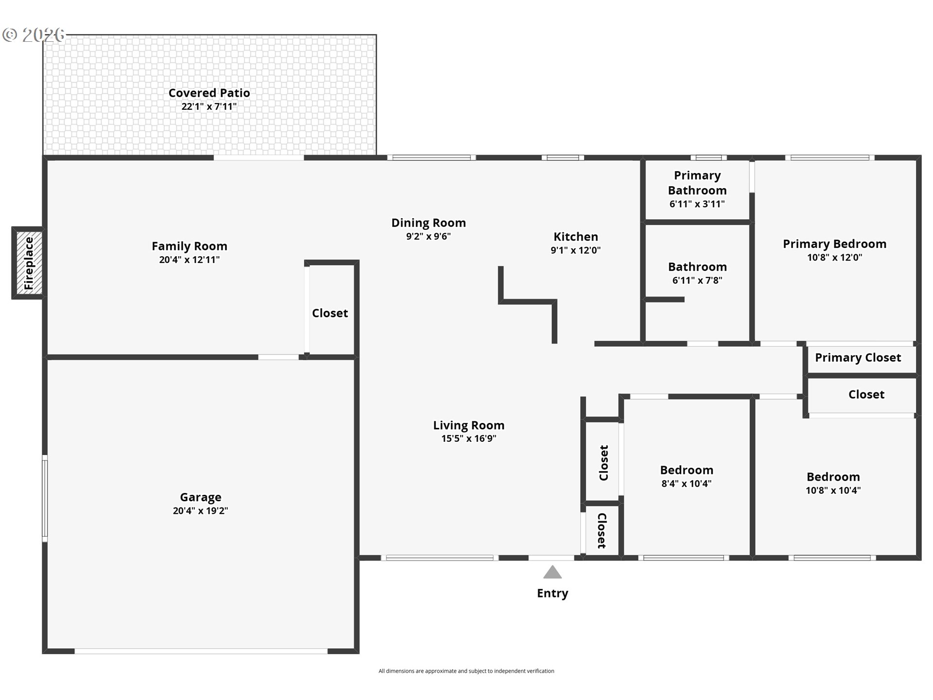
Tucked away on a quiet cul-de-sac, this beautifully updated single-level ranch offers the comfort, functionality, and timeless appeal buyers are looking for. With 3 bedrooms and 1.5 baths, the home features a well-designed layout that blends everyday livability with inviting gathering spaces. Fresh new carpet, along with new interior and exterior paint completed in 2026, give the home a crisp, move-in-ready feel. Laminate flooring adds durability and style, while the remodeled kitchen and bathrooms bring tasteful modern updates that complement the home’s classic ranch character.The spacious family room is centered around a warm wood-burning fireplace, creating the perfect place to relax on cooler evenings. A high-efficiency gas furnace paired with central air conditioning keeps the home comfortable year-round. The oversized two-car garage offers excellent storage, including additional space above, ideal for seasonal items, hobbies, or workshop needs.Outside, the fully fenced backyard is a standout feature with mature landscaping, a covered patio for year-round enjoyment, and two storage sheds that provide excellent flexibility for tools, gardening, or extra storage. Including the refrigerator plus washer and dryer makes the transition even easier for the next owner. This is a well-cared-for home in a peaceful setting that offers the updates buyers want with the solid craftsmanship and practical design that make ranch homes so enduringly popular.
Listing Provided Courtesy of Troy D Doty P.C., Northwest Realty Source
General Information
618147149
SingleFamilyResidence
1
DOM
3
6969.6 SqFt
1.5
1337
1968
Multnomah
R313806
East Gresham 2/10
Dexter McCarty 6/10
Gresham
Residential
SingleFamilyResidence
YOERGER ADDITION, BLOCK 2, LOT 6
Listing Provided Courtesy of Troy D Doty P.C., Northwest Realty Source
Krishna Realty data last checked: Apr 11, 2026 01:23 | Listing last modified Apr 10, 2026 15:10,
Source:
Tucked away on a quiet cul-de-sac, this beautifully updated single-level ranch offers the comfort, functionality, and timeless appeal buyers are looking for. With 3 bedrooms and 1.5 baths, the home features a well-designed layout that blends everyday livability with inviting gathering spaces. Fresh new carpet, along with new interior and exterior paint completed in 2026, give the home a crisp, move-in-ready feel. Laminate flooring adds durability and style, while the remodeled kitchen and bathrooms bring tasteful modern updates that complement the home’s classic ranch character.The spacious family room is centered around a warm wood-burning fireplace, creating the perfect place to relax on cooler evenings. A high-efficiency gas furnace paired with central air conditioning keeps the home comfortable year-round. The oversized two-car garage offers excellent storage, including additional space above, ideal for seasonal items, hobbies, or workshop needs.Outside, the fully fenced backyard is a standout feature with mature landscaping, a covered patio for year-round enjoyment, and two storage sheds that provide excellent flexibility for tools, gardening, or extra storage. Including the refrigerator plus washer and dryer makes the transition even easier for the next owner. This is a well-cared-for home in a peaceful setting that offers the updates buyers want with the solid craftsmanship and practical design that make ranch homes so enduringly popular.