Perfect Multi-Generational Living with Separate Quarters in Prime Parkrose Location! Looking for the ideal multi-generational home or a smart investment opportunity? This well-maintained gem offers flexible living options with a full second living space—perfect for extended family, guests, or potential rental income.The spacious main level features three generous bedrooms and two full bathrooms, highlighted by beautiful hardwood floors throughout. You'll appreciate the primary suite with its updated ensuite bathroom, boasting dual sinks and a luxurious walk-in shower. The kitchen is both functional and inviting, with ample cabinet space, tile flooring, and a gas stovetop. Downstairs, the fully finished lower level is a standout feature! With both an interior entrance and private exterior entrance, this space includes a bedroom, full bath, kitchen, and living room— ideal for an ADU, in-law suite, rental unit or the fortunate family member who wants their own space. It’s truly move-in ready and offers excellent potential for a variety of options. Outside, the fenced, private yard is a blank canvas ready for your vision—whether it's a garden, play area, or outdoor retreat. You'll also find fruit trees, two storage sheds, and room to park a boat, small RV, or toys. Recent updates include fresh exterior paint and an updated A/C unit for year-round comfort. Nestled in a quiet Parkrose neighborhood, you're just minutes from I-84, I-205, and the PDX Airport, offering unbeatable convenience. Don't miss this rare opportunity to own a home with true dual-living flexibility in a fantastic location. Schedule your tour today! OPEN HOUSE: Sunday October 19th from 12-3pm. [Home Energy Score = 4. HES Report at https://rpt.greenbuildingregistry.com/hes/OR10034781]
Listing Provided Courtesy of Brett Bodine, John L. Scott Sandy
General Information
141212078
SingleFamilyResidence
1
DOM
4
0.34 acres
3
2960
1952
Multnomah
R235584
Prescott 5/10
Parkrose
Parkrose
Residential
SingleFamilyResidence
PARKROSE & RPLT, BLOCK 60, W 15' OF LOT F & S 90' OF E 115' OF LO
Listing Provided Courtesy of Brett Bodine, John L. Scott Sandy
Krishna Realty data last checked: Oct 10, 2025 15:48 | Listing last modified Oct 09, 2025 07:08,
Source:
Open House
Sun, Oct 19th, 12PM to 3PM
Download our Mobile app
Residence Information
0
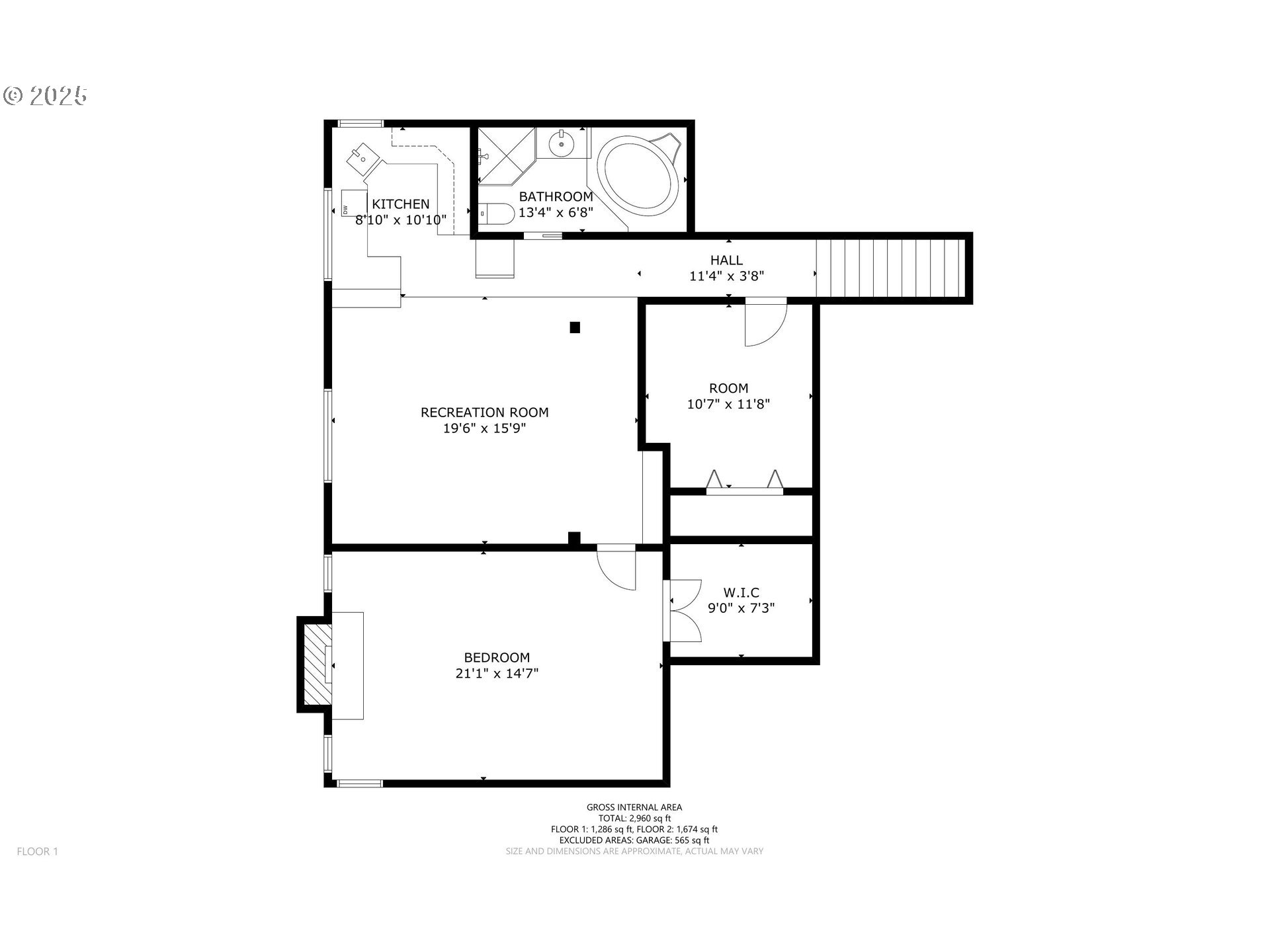
1674
1286
2960
Floor Plan
1674
2/Gas
4
3
0
3
Composition
2, Attached
Stories2,Ranch
Driveway,RVAccessPar
2
1952
Yes
WoodSiding
Finished
RVParking
Finished
ConcretePerimeter
VinylFrames
Features and Utilities
BuiltinFeatures, Fireplace
Dishwasher, Disposal, FreeStandingGasRange, FreeStandingRefrigerator, GasAppliances, Granite, Microwave, Ti
Perfect Multi-Generational Living with Separate Quarters in Prime Parkrose Location! Looking for the ideal multi-generational home or a smart investment opportunity? This well-maintained gem offers flexible living options with a full second living space—perfect for extended family, guests, or potential rental income.The spacious main level features three generous bedrooms and two full bathrooms, highlighted by beautiful hardwood floors throughout. You'll appreciate the primary suite with its updated ensuite bathroom, boasting dual sinks and a luxurious walk-in shower. The kitchen is both functional and inviting, with ample cabinet space, tile flooring, and a gas stovetop. Downstairs, the fully finished lower level is a standout feature! With both an interior entrance and private exterior entrance, this space includes a bedroom, full bath, kitchen, and living room— ideal for an ADU, in-law suite, rental unit or the fortunate family member who wants their own space. It’s truly move-in ready and offers excellent potential for a variety of options. Outside, the fenced, private yard is a blank canvas ready for your vision—whether it's a garden, play area, or outdoor retreat. You'll also find fruit trees, two storage sheds, and room to park a boat, small RV, or toys. Recent updates include fresh exterior paint and an updated A/C unit for year-round comfort. Nestled in a quiet Parkrose neighborhood, you're just minutes from I-84, I-205, and the PDX Airport, offering unbeatable convenience. Don't miss this rare opportunity to own a home with true dual-living flexibility in a fantastic location. Schedule your tour today! OPEN HOUSE: Sunday October 19th from 12-3pm. [Home Energy Score = 4. HES Report at https://rpt.greenbuildingregistry.com/hes/OR10034781]