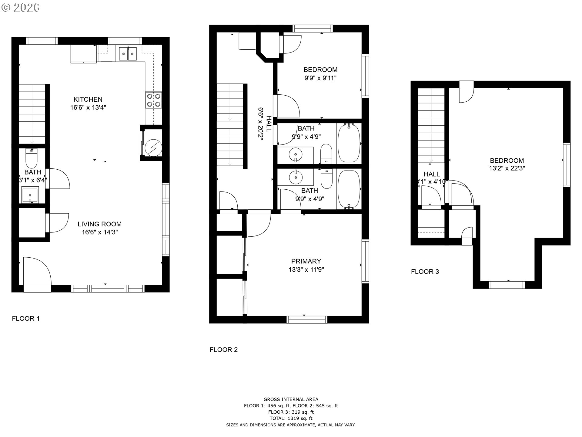
Modern and spacious 3-bedroom, 2.5-bath townhouse-style condo offering the perfect opportunity for home buyers seeking affordable homeownership in an established, owner-occupied community. An open-concept main level features a sleek kitchen with quartz countertops, stainless appliances, and generous living space ideal for everyday living and entertaining. Efficient AC/Heating units provide year-round comfort. Upstairs, the primary suite includes a private bath, alongside a second bedroom, full bath, and in-unit washer/dryer for convenience. The versatile third-level bedroom offers flexibility as a home office, guest space, or creative retreat. Fresh interior paint and new carpet throughout make this home truly move-in ready. Located near public transportation, parks, schools, and shopping, this home blends modern comfort with urban accessibility. Includes deeded parking space # 8. Move-in ready and competitively priced — bring your offer and make it home! [Home Energy Score = 7. HES Report at https://rpt.greenbuildingregistry.com/hes/OR10182409]
Listing Provided Courtesy of Channon Burns, Portland Proper Real Estate
General Information
271773000
Condominium
57
DOM
3
3
1357
2019
Multnomah
R695654
Ventura Park 4/10
Floyd Light 5/10
David Douglas
Residential
Condominium
BRUNSWICK COMMONS CONDOMINIUM, UNIT B8
Listing Provided Courtesy of Channon Burns, Portland Proper Real Estate
Krishna Realty data last checked: May 06, 2026 13:55 | Listing last modified May 02, 2026 11:17,
Source:
Modern and spacious 3-bedroom, 2.5-bath townhouse-style condo offering the perfect opportunity for home buyers seeking affordable homeownership in an established, owner-occupied community. An open-concept main level features a sleek kitchen with quartz countertops, stainless appliances, and generous living space ideal for everyday living and entertaining. Efficient AC/Heating units provide year-round comfort. Upstairs, the primary suite includes a private bath, alongside a second bedroom, full bath, and in-unit washer/dryer for convenience. The versatile third-level bedroom offers flexibility as a home office, guest space, or creative retreat. Fresh interior paint and new carpet throughout make this home truly move-in ready. Located near public transportation, parks, schools, and shopping, this home blends modern comfort with urban accessibility. Includes deeded parking space # 8. Move-in ready and competitively priced — bring your offer and make it home! [Home Energy Score = 7. HES Report at https://rpt.greenbuildingregistry.com/hes/OR10182409]