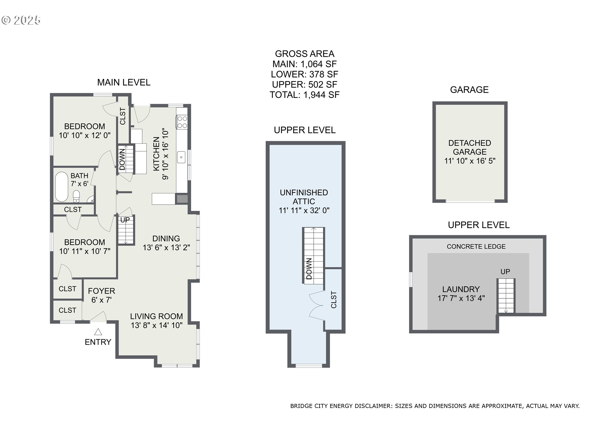
Charming 1908 Bungalow with Endless Potential! Step into this delightful light-filled home and imagine the possibilities. The inviting living room flows seamlessly into a spacious dining area, perfect for gatherings. The thoughtfully updated kitchen offers stainless steel appliances, custom concrete countertops, and sleek modern cabinetry, making it a dream for home cooks. Enjoy easy single-level living with two cozy bedrooms and a well-appointed bathroom on the main floor. The partially finished attic offers abundant storage or the opportunity to create a home office, additional bedroom, or inspiring studio space. The basement provides even more storage along with a convenient laundry area. Step outside from the kitchen to a comfortable deck overlooking the fully fenced backyard. The detached garage offers even more potential — think ADU, workshop, or creative studio. This light fixer-upper is just waiting to shine with your personal touch. Located just blocks from some of Portland's best restaurants, shops, and pubs, it’s a rare opportunity to create your dream home in a vibrant neighborhood. [Home Energy Score = 1. HES Report at https://rpt.greenbuildingregistry.com/hes/OR10236009]
Listing Provided Courtesy of Kellie Kotlar, Proud Realty LLC
General Information
176248310
SingleFamilyResidence
422
DOM
2
4356 SqFt
1
1944
1908
Multnomah
R573988
MartinL King Jr
Harriet Tubman
Jefferson
Residential
SingleFamilyResidence
PARTITION PLAT 2005-117, LOT 1
Listing Provided Courtesy of Kellie Kotlar, Proud Realty LLC
Krishna Realty data last checked: Apr 05, 2026 23:11 | Listing last modified Apr 05, 2026 05:19,
Source:
Charming 1908 Bungalow with Endless Potential! Step into this delightful light-filled home and imagine the possibilities. The inviting living room flows seamlessly into a spacious dining area, perfect for gatherings. The thoughtfully updated kitchen offers stainless steel appliances, custom concrete countertops, and sleek modern cabinetry, making it a dream for home cooks. Enjoy easy single-level living with two cozy bedrooms and a well-appointed bathroom on the main floor. The partially finished attic offers abundant storage or the opportunity to create a home office, additional bedroom, or inspiring studio space. The basement provides even more storage along with a convenient laundry area. Step outside from the kitchen to a comfortable deck overlooking the fully fenced backyard. The detached garage offers even more potential — think ADU, workshop, or creative studio. This light fixer-upper is just waiting to shine with your personal touch. Located just blocks from some of Portland's best restaurants, shops, and pubs, it’s a rare opportunity to create your dream home in a vibrant neighborhood. [Home Energy Score = 1. HES Report at https://rpt.greenbuildingregistry.com/hes/OR10236009]