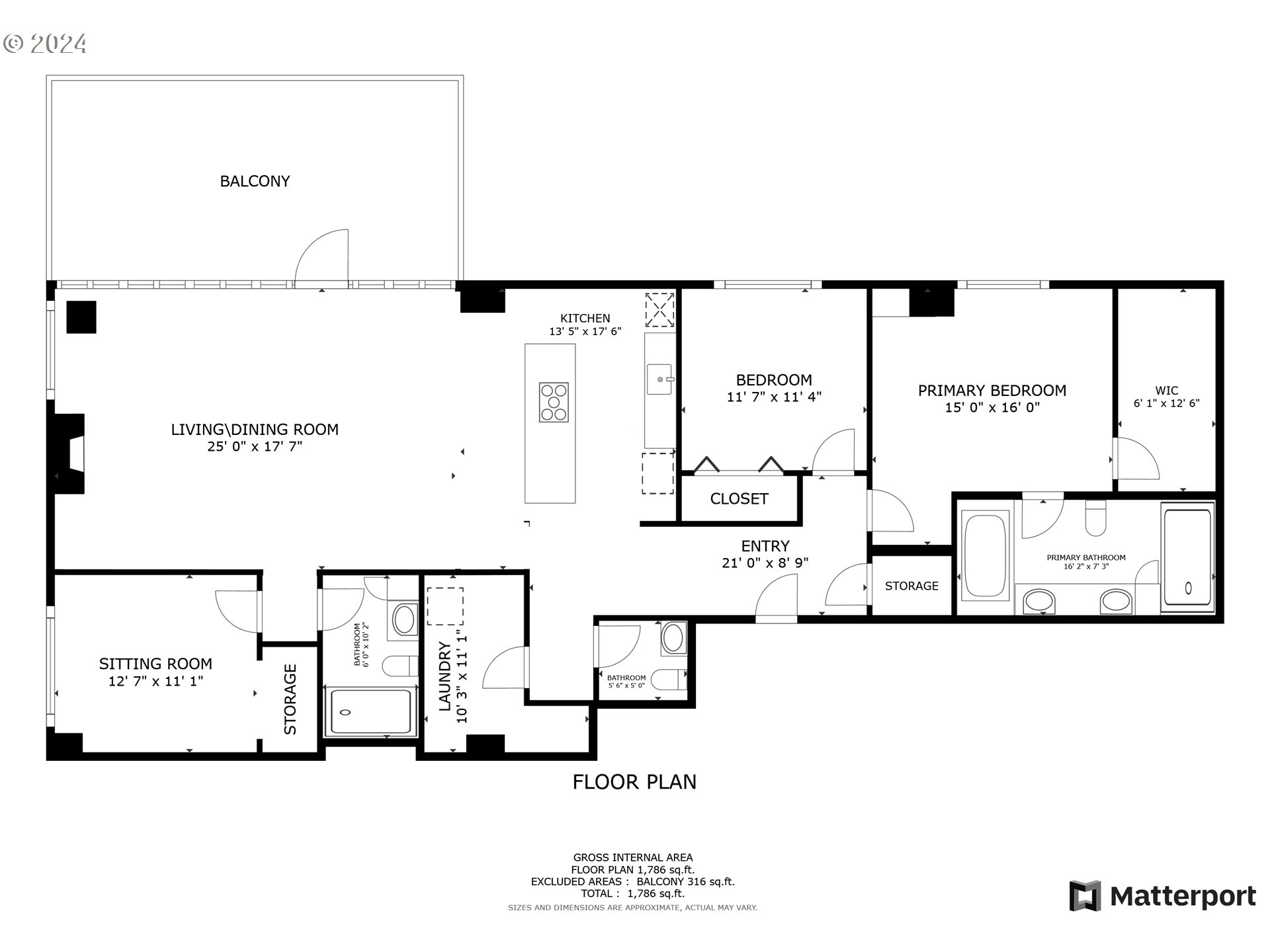
One of only two units of its floorplan type, Metropolitan 1008 is the ultimate urban residence. Expansive living and dining rooms are fantastic for entertaining! Living room features beautiful NW views of the west hills, Tanner Springs Park, and the river. It also includes custom built ins, a gas fireplace, and access to the large covered patio. Kitchen with huge island with cooktop, Neil Kelly cabinetry, and high end stainless steel appliances including a brand new oven. Primary suite features park views, a large walk in closet with custom closet organizers, and a luxurious ensuite bathroom with jetted tub, walk in shower, and marble floors and countertops. Two additional guest bedrooms offer lots of flexibility - use as guest rooms, office, or den! Includes two parking spaces with EV charging and 1 storage unit. Secure building with 24 hour concierge. Top notch amenities including two guest suites, gym, conference room, entertaining space, and temperature controlled wine storage room.
Listing Provided Courtesy of Blake Ellis, Windermere Realty Trust
General Information
493291578
Condominium
178
DOM
3
2.5
1782
2006
Multnomah
R604495
Chapman
West Sylvan
Lincoln
Residential
Condominium
METROPOLITAN CONDOMINIUMS, LOT 1008
Listing Provided Courtesy of Blake Ellis, Windermere Realty Trust
Krishna Realty data last checked: Mar 16, 2026 19:53 | Listing last modified Jan 05, 2026 15:49,
Source:
One of only two units of its floorplan type, Metropolitan 1008 is the ultimate urban residence. Expansive living and dining rooms are fantastic for entertaining! Living room features beautiful NW views of the west hills, Tanner Springs Park, and the river. It also includes custom built ins, a gas fireplace, and access to the large covered patio. Kitchen with huge island with cooktop, Neil Kelly cabinetry, and high end stainless steel appliances including a brand new oven. Primary suite features park views, a large walk in closet with custom closet organizers, and a luxurious ensuite bathroom with jetted tub, walk in shower, and marble floors and countertops. Two additional guest bedrooms offer lots of flexibility - use as guest rooms, office, or den! Includes two parking spaces with EV charging and 1 storage unit. Secure building with 24 hour concierge. Top notch amenities including two guest suites, gym, conference room, entertaining space, and temperature controlled wine storage room.