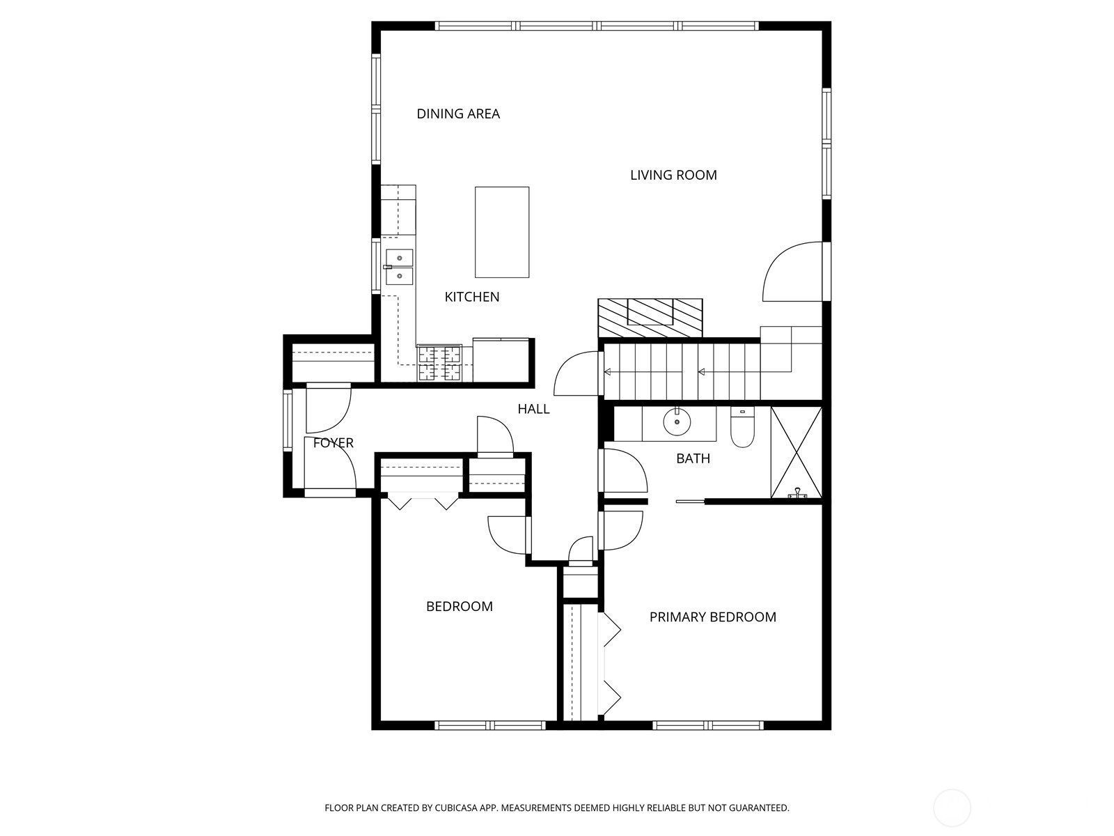
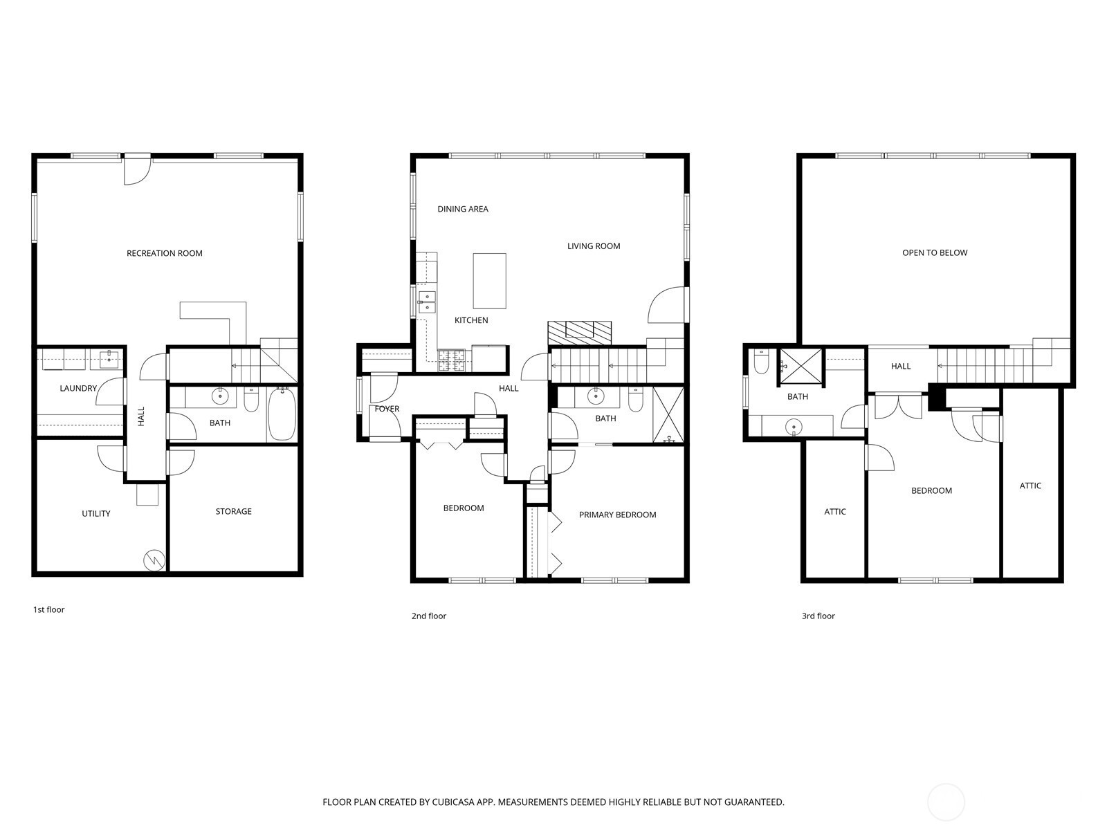
Welcome to your Pacific Northwest escape at Lake Cushman… where towering evergreens, fresh mountain air, and endless recreation create the ultimate vacation lifestyle. Located in the highly sought-after Lake Cushman community, this beautifully positioned home offers the perfect blend of comfort, privacy, and adventure. Whether you're searching for a weekend retreat, full-time residence, or high-demand vacation rental, this property delivers versatility and long-term value.Listed as a 2-bedroom home due to septic capacity, the flexible floor plan includes additional finished rooms ideal for guest space, home offices, or hobbies. The lower level features a spacious rec room perfect for game nights or movie marathons, plus a generous bonus room adding even more usable space. Large windows invite natural light and capture the serene wooded surroundings.For investors, strong demand for short-term and seasonal rentals in this destination community presents a compelling opportunity. Buyers seeking a vacation home that can help offset ownership costs through rental income will appreciate the flexible layout, amenities, and lifestyle appeal.
Listing Provided Courtesy of Darin Holland, Real Broker LLC
General Information
NWM2488183
Single Family Residence
3
DOM
2
10018.8 SqFt
3
2751
2000
Mason
Buyer To Verify
Buyer To Verify
Buyer To Verify
Residential
Single Family Residence
Listing Provided Courtesy of Darin Holland, Real Broker LLC
Krishna Realty data last checked: Mar 14, 2026 00:42 | Listing last modified Mar 12, 2026 15:46,
Source:
Welcome to your Pacific Northwest escape at Lake Cushman… where towering evergreens, fresh mountain air, and endless recreation create the ultimate vacation lifestyle. Located in the highly sought-after Lake Cushman community, this beautifully positioned home offers the perfect blend of comfort, privacy, and adventure. Whether you're searching for a weekend retreat, full-time residence, or high-demand vacation rental, this property delivers versatility and long-term value.Listed as a 2-bedroom home due to septic capacity, the flexible floor plan includes additional finished rooms ideal for guest space, home offices, or hobbies. The lower level features a spacious rec room perfect for game nights or movie marathons, plus a generous bonus room adding even more usable space. Large windows invite natural light and capture the serene wooded surroundings.For investors, strong demand for short-term and seasonal rentals in this destination community presents a compelling opportunity. Buyers seeking a vacation home that can help offset ownership costs through rental income will appreciate the flexible layout, amenities, and lifestyle appeal.