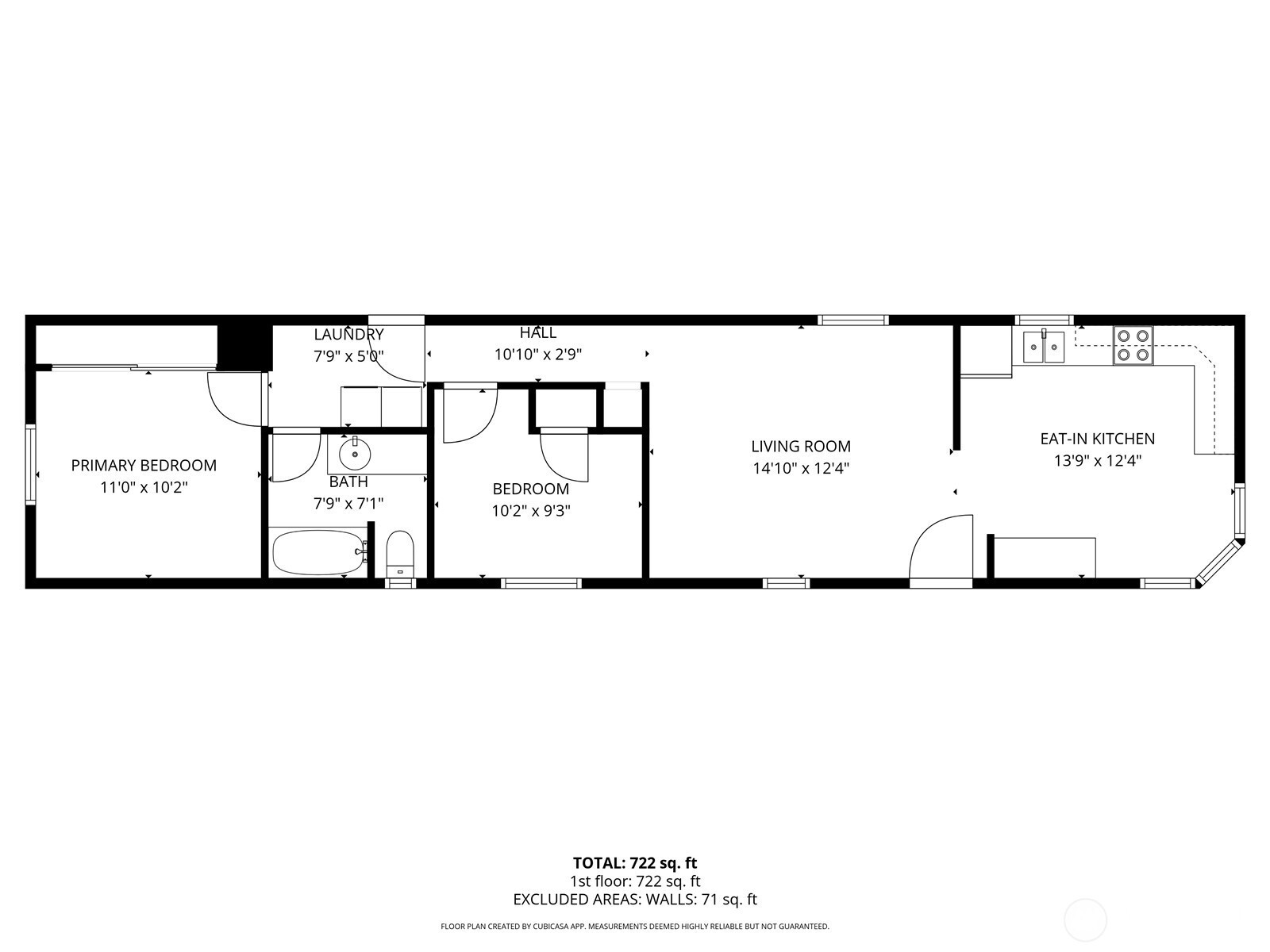
Opportunity in the Belfair Urban Growth Area just off State Route 3, located behind Penn Topsoil. 1.12-acre parcel with a 2 bed, 1 bath manufactured home (not title eliminated). Property is within Mason County Belfair UGA zoning framework, including General Commercial (GC) and Mixed Use (MU) designations (buyer to verify), offering flexibility for a range of uses. Level to usable site with surrounding mix of residential, service, and light industrial properties, reflecting an area experiencing growth and transition. Shared well in place. Existing structure may support interim occupancy or rental while planning future improvements. Strong access to SR3 supports commuting, visibility, and connectivity. Positioned in Mason County’s primary growth area, offering long-term upside. Value is primarily in the land with options for owner-user, investment hold, or redevelopment. Buyer to verify all zoning, utilities, access, and feasibility.
Listing Provided Courtesy of Joey Soller, Keller Williams Greater 360
General Information
NWM2496280
Commercial Industrial
24
DOM
1.12 acres
0
1994
Commerc
Mason
Commercial Sale
Commercial Industrial
Listing Provided Courtesy of Joey Soller, Keller Williams Greater 360
Krishna Realty data last checked: May 03, 2026 17:53 | Listing last modified Apr 18, 2026 16:49,
Source:
Opportunity in the Belfair Urban Growth Area just off State Route 3, located behind Penn Topsoil. 1.12-acre parcel with a 2 bed, 1 bath manufactured home (not title eliminated). Property is within Mason County Belfair UGA zoning framework, including General Commercial (GC) and Mixed Use (MU) designations (buyer to verify), offering flexibility for a range of uses. Level to usable site with surrounding mix of residential, service, and light industrial properties, reflecting an area experiencing growth and transition. Shared well in place. Existing structure may support interim occupancy or rental while planning future improvements. Strong access to SR3 supports commuting, visibility, and connectivity. Positioned in Mason County’s primary growth area, offering long-term upside. Value is primarily in the land with options for owner-user, investment hold, or redevelopment. Buyer to verify all zoning, utilities, access, and feasibility.