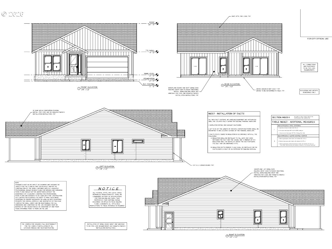
TO BE BUILT! Brand new single level home offering 3 bedrooms and 2 bathrooms, thoughtfully designed for comfortable, modern living. Situated at the end of a cul-de-sac within an established neighborhood, this homesite provides a sense of privacy while remaining connected to the surrounding community. A covered front entry creates a welcoming first impression, while the spacious covered rear patio extends your living space outdoors. Buyers will appreciate the opportunity to personalize select finishes and upgrades, allowing you to review your preferences and style before completion. Located in the charming community of Mount Angel, known for its rich cultural heritage and small town appeal. Home to the Benedictine Sisters of Mount Angel and the renowned Mount Angel Oktoberfest, this vibrant town welcomes visitors from across the region each year. Enjoy a strong sense of community, local schools, and the surrounding agricultural landscape that draws those seeking a quieter pace of life while staying within reach of larger city amenities. Do not miss this rare opportunity to build a home, in a town worth writing your next chapter in.
Listing Provided Courtesy of Mark Shadrin, Berkshire Hathaway HomeServices Real Estate Profes
General Information
692571571
SingleFamilyResidence
41
DOM
3
4791.6 SqFt
2
1486
2026
RM
Marion
331087
St Marys 6/10
Mt Angel 5/10
Kennedy 4/10
Residential
SingleFamilyResidence
MOUNT ANGEL-ROY, BLOCK 3, LOT 9, ACRES 0.11
Listing Provided Courtesy of Mark Shadrin, Berkshire Hathaway HomeServices Real Estate Profes
Krishna Realty data last checked: May 10, 2026 16:29 | Listing last modified Apr 28, 2026 08:18,
Source:
TO BE BUILT! Brand new single level home offering 3 bedrooms and 2 bathrooms, thoughtfully designed for comfortable, modern living. Situated at the end of a cul-de-sac within an established neighborhood, this homesite provides a sense of privacy while remaining connected to the surrounding community. A covered front entry creates a welcoming first impression, while the spacious covered rear patio extends your living space outdoors. Buyers will appreciate the opportunity to personalize select finishes and upgrades, allowing you to review your preferences and style before completion. Located in the charming community of Mount Angel, known for its rich cultural heritage and small town appeal. Home to the Benedictine Sisters of Mount Angel and the renowned Mount Angel Oktoberfest, this vibrant town welcomes visitors from across the region each year. Enjoy a strong sense of community, local schools, and the surrounding agricultural landscape that draws those seeking a quieter pace of life while staying within reach of larger city amenities. Do not miss this rare opportunity to build a home, in a town worth writing your next chapter in.