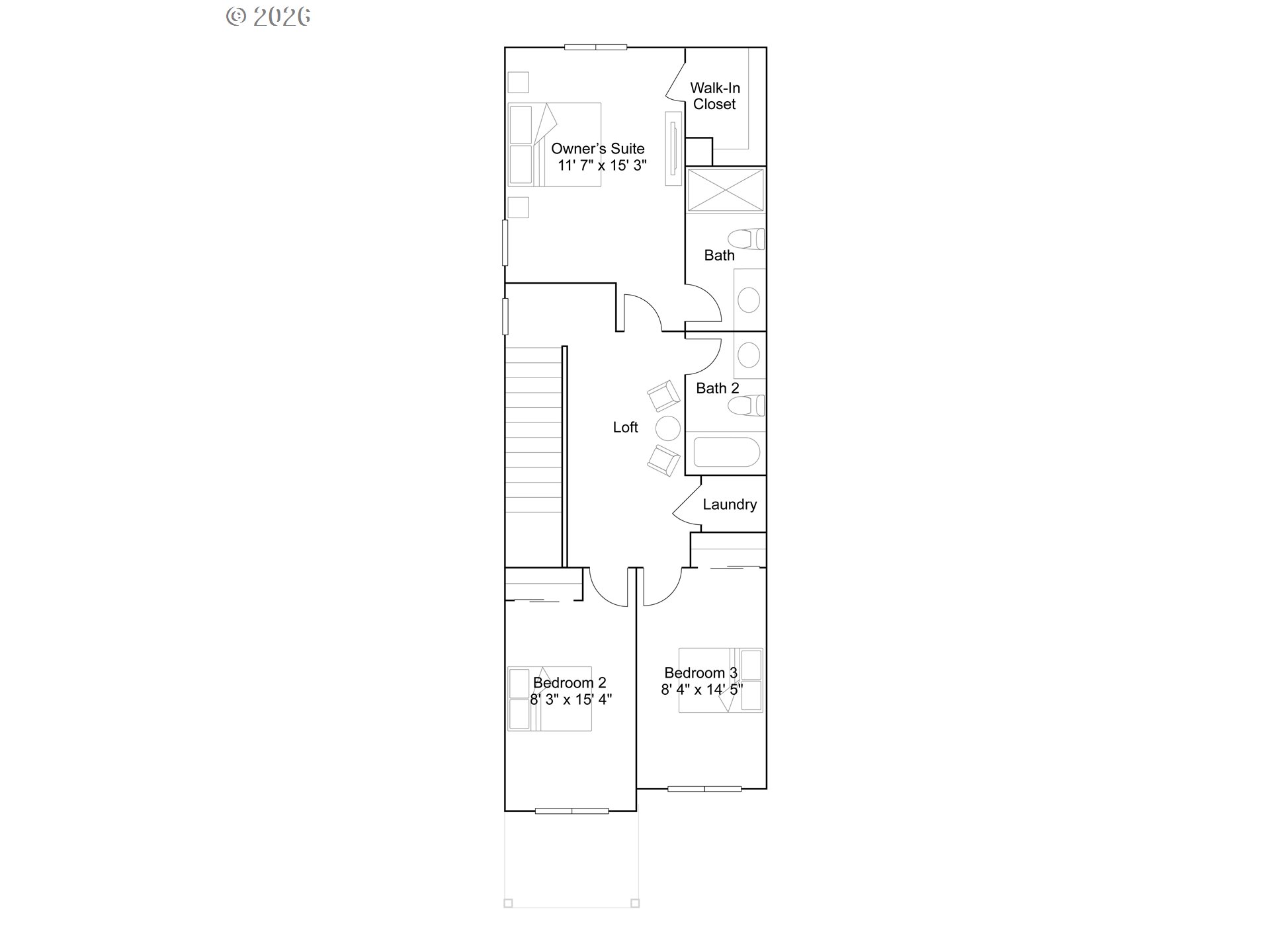
This new construction Smith Creek townhome sits on a corner lot and is conveniently located near I-5, just minutes from Outlets and close to parks, golf courses, schools, and vineyards, with easy highway access for smooth commutes. Community amenities include a dog park, multiple playgrounds, picnic areas, trails, and a basketball court. Enter the Pierce floor plan, offering two spacious stories designed for modern living. The first floor shares an open layout between the kitchen, nook and Great Room for easy entertaining with convenient access to a powder room. Upstairs are two secondary bedrooms surrounding a versatile loft that can serve as an additional shared living space or office. Tucked away at the back end of the second floor, an owner's suite waits for you to enjoy your own en-suite bathroom and a spacious walk-in closet. Other interior highlights include quartz countertops, shaker-style cabinets, luxury vinyl plank flooring, and luxury vinyl tile. "Everything's Included" package means that price of home includes Refrigerator, Washer & Dryer, A/C, and blinds! Photos are for illustrative purposes only and are sample photos from similar model homes - features & finishes may vary. Homesite #679, estimated completion: Spring 2026. Incentives available with use of preferred lender.
Listing Provided Courtesy of Michelle Baker, Lennar Sales Corp
General Information
167356954
Attached
5
DOM
3
3049.2 SqFt
2.5
1396
2025
Marion
610061
Heritage 2/10
Valor 5/10
Woodburn 5/10
Residential
Attached
SMITH CREEK HOMESITE 0679
Listing Provided Courtesy of Michelle Baker, Lennar Sales Corp
Krishna Realty data last checked: Apr 03, 2026 06:37 | Listing last modified Mar 17, 2026 08:23,
Source:
This new construction Smith Creek townhome sits on a corner lot and is conveniently located near I-5, just minutes from Outlets and close to parks, golf courses, schools, and vineyards, with easy highway access for smooth commutes. Community amenities include a dog park, multiple playgrounds, picnic areas, trails, and a basketball court. Enter the Pierce floor plan, offering two spacious stories designed for modern living. The first floor shares an open layout between the kitchen, nook and Great Room for easy entertaining with convenient access to a powder room. Upstairs are two secondary bedrooms surrounding a versatile loft that can serve as an additional shared living space or office. Tucked away at the back end of the second floor, an owner's suite waits for you to enjoy your own en-suite bathroom and a spacious walk-in closet. Other interior highlights include quartz countertops, shaker-style cabinets, luxury vinyl plank flooring, and luxury vinyl tile. "Everything's Included" package means that price of home includes Refrigerator, Washer & Dryer, A/C, and blinds! Photos are for illustrative purposes only and are sample photos from similar model homes - features & finishes may vary. Homesite #679, estimated completion: Spring 2026. Incentives available with use of preferred lender.