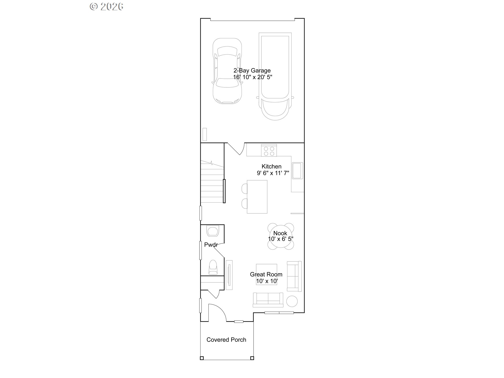
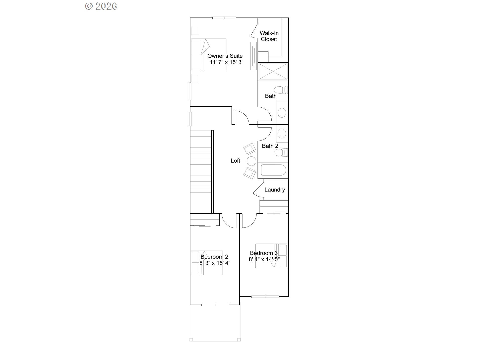
This new construction Smith Creek townhome sits on a corner lot and is conveniently located near I-5, just minutes from Woodburn Premium Outlets and close to parks, golf courses, schools, and vineyards, with easy highway access for smooth commutes. Community amenities include a dog park, multiple playgrounds, picnic areas, trails, and a basketball court. The Pierce plan offers two spacious stories designed for modern living. On the main floor, an open layout seamlessly connects the kitchen, nook, and great room, perfect for both everyday living and entertaining, along with convenient access to a powder room. Upstairs, two secondary bedrooms surround a versatile loft that can be used as a shared living area or home office. Tucked at the back of the second floor, the private primary suite features its own ensuite bath and a generous walk-in closet. Interior highlights include quartz countertops, shaker-style cabinets, luxury vinyl plank flooring, and luxury vinyl tile. This home also includes central air conditioning, a refrigerator, washer and dryer, and blinds—all at no extra cost! Rendering is artist conception only. Photos are of a similar home, features and finishes will vary. Homesite #671. Move in ready! Incentives available with the use of our preferred lender!
Listing Provided Courtesy of Robin Galvan-Taylor, Lennar Sales Corp
General Information
453896218
Attached
1
DOM
3
1306.8 SqFt
2.5
1396
2026
Marion
New Construction
Heritage 2/10
Valor 5/10
Woodburn 5/10
Residential
Attached
TBD
Listing Provided Courtesy of Robin Galvan-Taylor, Lennar Sales Corp
Krishna Realty data last checked: Feb 26, 2026 04:58 | Listing last modified Feb 25, 2026 15:04,
Source:
This new construction Smith Creek townhome sits on a corner lot and is conveniently located near I-5, just minutes from Woodburn Premium Outlets and close to parks, golf courses, schools, and vineyards, with easy highway access for smooth commutes. Community amenities include a dog park, multiple playgrounds, picnic areas, trails, and a basketball court. The Pierce plan offers two spacious stories designed for modern living. On the main floor, an open layout seamlessly connects the kitchen, nook, and great room, perfect for both everyday living and entertaining, along with convenient access to a powder room. Upstairs, two secondary bedrooms surround a versatile loft that can be used as a shared living area or home office. Tucked at the back of the second floor, the private primary suite features its own ensuite bath and a generous walk-in closet. Interior highlights include quartz countertops, shaker-style cabinets, luxury vinyl plank flooring, and luxury vinyl tile. This home also includes central air conditioning, a refrigerator, washer and dryer, and blinds—all at no extra cost! Rendering is artist conception only. Photos are of a similar home, features and finishes will vary. Homesite #671. Move in ready! Incentives available with the use of our preferred lender!