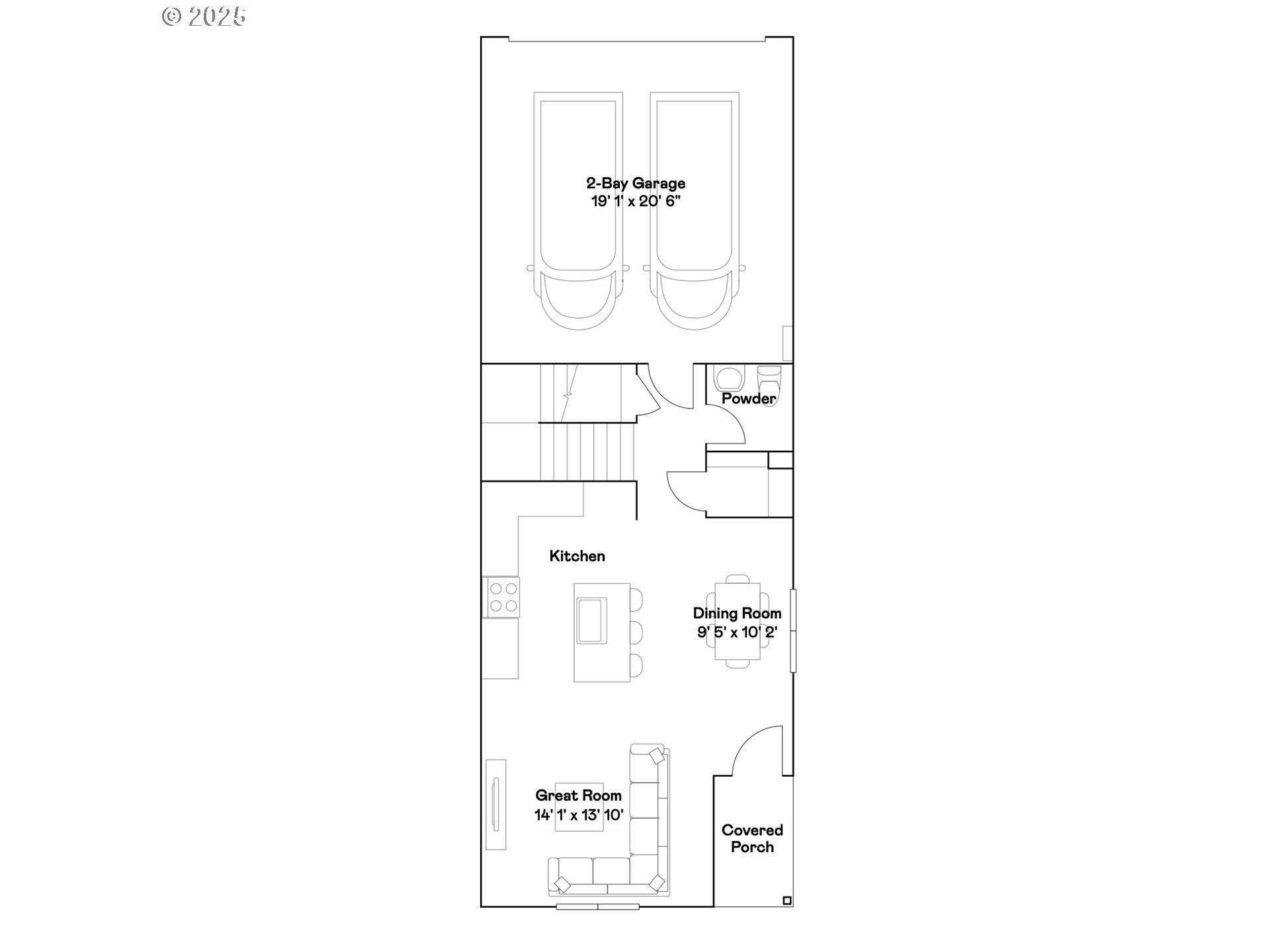
This new construction two-story home features the Whitney floorplan. The home is conveniently located just 7 minutes from Woodburn Premium Outlets and close to parks, golf courses, schools, and vineyards, with easy highway access for smooth commutes. Community amenities include a dog park, playground, picnic areas, trails, and a basketball court. Inside, the open-concept main floor seamlessly connects the kitchen, dining area, and great room. Upstairs, you'll find three bedrooms and a versatile loft space, including a spacious primary suite with an en-suite bathroom and walk-in closet. The home also includes a two-bay garage and designer-selected finishes such as quartz countertops, shaker-style cabinets, stainless steel appliances, luxury vinyl plank flooring, and more. The Everything’s Included package adds AC, a refrigerator, blinds, and a washer and dryer, at no extra cost! Corner lot with oversized yard! Photos are of similar or model home so features and finishes will vary. Located on Homesite 446, this home is expected to be complete in December 2025!
Listing Provided Courtesy of Jason Leiner, Lennar Sales Corp
General Information
496611669
SingleFamilyResidence
7
DOM
3
2.5
1665
2025
Marion
New Construction
Heritage 2/10
Valor 5/10
Woodburn 5/10
Residential
SingleFamilyResidence
Smith Creek Homesite 446
Listing Provided Courtesy of Jason Leiner, Lennar Sales Corp
Krishna Realty data last checked: Dec 31, 2025 16:53 | Listing last modified Dec 17, 2025 13:55,
Source:
Download our Mobile app
Residence Information
1016
649
0
1665
Builder
1665
3
2
1
2.5
Composition
2, Attached
Stories2,Farmhouse
Driveway
2
2025
No
CementSiding
CrawlSpace
CrawlSpace
ConcretePerimeter
DoublePaneWindows,Vi
Commons, Management
Features and Utilities
Dishwasher, Disposal, FreeStandingRange, FreeStandingRefrigerator, GasAppliances, Island, Microwave, Pantry
This new construction two-story home features the Whitney floorplan. The home is conveniently located just 7 minutes from Woodburn Premium Outlets and close to parks, golf courses, schools, and vineyards, with easy highway access for smooth commutes. Community amenities include a dog park, playground, picnic areas, trails, and a basketball court. Inside, the open-concept main floor seamlessly connects the kitchen, dining area, and great room. Upstairs, you'll find three bedrooms and a versatile loft space, including a spacious primary suite with an en-suite bathroom and walk-in closet. The home also includes a two-bay garage and designer-selected finishes such as quartz countertops, shaker-style cabinets, stainless steel appliances, luxury vinyl plank flooring, and more. The Everything’s Included package adds AC, a refrigerator, blinds, and a washer and dryer, at no extra cost! Corner lot with oversized yard! Photos are of similar or model home so features and finishes will vary. Located on Homesite 446, this home is expected to be complete in December 2025!