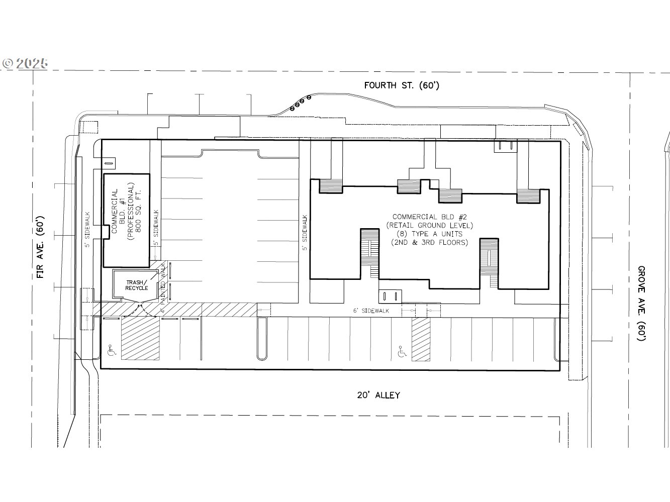
No fault of the seller or the property, but we are back on the market. This is more than just an opportunity; this is an asset that'll keep paying out for years to come. Be an investor with these brand spanking new 8 apartments and 4-8 retail/business offices in downtown Gervais (tenant improvements to the retail shops/offices to be done by the leasee, leaseor can partly fund tenant improements if chooses). Luxury Apartments are 1,000 sqft 9' ceilings and feature beautiful kitchens, LVP flooring, granite countertops, stainless steel appliances, 2 bedroom, 2 baths with air-conditioning, washer/dryer hookup, balcony, and storage. The ground-level 4 unit retail/offices can be split from 2,000 sq-ft to 1,000 or even smaller to rent out, could be a hair salon, nails, chiropractic office, or accountant office, bring your dream and your ideas. The parking lot is also big enough to rent out to culinary food trailers/trucks. There is also an area on the south side of the parking lot that is approved for an 800sqft commercial building thats already plumbed for water and sewer.This is a "Gold Mine" of opportunity. Minutes from I-5, between Portland and Salem. Gervais is such a great community and has grown substantially in the last few years, having its own schools, Elementary up through High School. Seller is also willing to carry a contract on this for 20 years with a sizable down payment. The projected yearly gross income is over 300k. The estimated time of completion is July. Super easy access to I-5 in Woodburn, which is smack-dab in the middle between Portland and Salem. Don't let this phenomenal opportunity pass this up.
Listing Provided Courtesy of Patrick Ledbetter, Premiere Property Group, LLC
General Information
341533610
Commercial
295
DOM
12000
2026
COM
Marion
599287
CommercialSale
Commercial
GERVAIS LOTS 6 & 7 BLK 35 ANNEXATION NO 86-463 ANNEXATION NO 92-6
Listing Provided Courtesy of Patrick Ledbetter, Premiere Property Group, LLC
Krishna Realty data last checked: Mar 20, 2026 06:22 | Listing last modified Mar 18, 2026 12:41,
Source:
No fault of the seller or the property, but we are back on the market. This is more than just an opportunity; this is an asset that'll keep paying out for years to come. Be an investor with these brand spanking new 8 apartments and 4-8 retail/business offices in downtown Gervais (tenant improvements to the retail shops/offices to be done by the leasee, leaseor can partly fund tenant improements if chooses). Luxury Apartments are 1,000 sqft 9' ceilings and feature beautiful kitchens, LVP flooring, granite countertops, stainless steel appliances, 2 bedroom, 2 baths with air-conditioning, washer/dryer hookup, balcony, and storage. The ground-level 4 unit retail/offices can be split from 2,000 sq-ft to 1,000 or even smaller to rent out, could be a hair salon, nails, chiropractic office, or accountant office, bring your dream and your ideas. The parking lot is also big enough to rent out to culinary food trailers/trucks. There is also an area on the south side of the parking lot that is approved for an 800sqft commercial building thats already plumbed for water and sewer.This is a "Gold Mine" of opportunity. Minutes from I-5, between Portland and Salem. Gervais is such a great community and has grown substantially in the last few years, having its own schools, Elementary up through High School. Seller is also willing to carry a contract on this for 20 years with a sizable down payment. The projected yearly gross income is over 300k. The estimated time of completion is July. Super easy access to I-5 in Woodburn, which is smack-dab in the middle between Portland and Salem. Don't let this phenomenal opportunity pass this up.