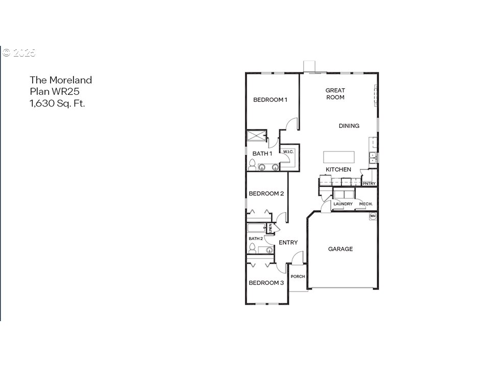
The Moreland is a functional one-level floor plan that has 1,630 square feet and boasts 3 bedrooms, and 2 bathrooms. The two front bedrooms are connected by a centrally located full bathroom for enhanced convenience. The laundry room is right by the kitchen and has easy access from the garage. The stylish kitchen is completed with stainless-steel appliances, a practical corner pantry, central island, quartz countertops, gas range/oven with a vent hood, inviting you to unleash your culinary creativity. Adjacent to the kitchen, the dining area is effortlessly connected to the expansive living room. This open-concept layout offers tall ceilings and large windows that fill the space with natural light. A centrally located fireplace in the great room adds style and warmth. The primary bedroom offers a walk-in closet, an en suite bathroom with a double vanity. Receive a closing cost credit with use of builder’s preferred lender, reach out for more information. Sales office hours are 9:30am – 4:30pm daily. Be a part of this wonderful community at East Park Village! Photos are representative of plan only and finishes may vary as built. This home includes Fence, AC, Blinds, GDO & Rear yard sod/irrigation!
Listing Provided Courtesy of Heather Quirke, D. R. Horton, Inc Portland
General Information
628304584
SingleFamilyResidence
49
DOM
3
2
1630
2025
RS
Marion
New Construction
Auburn 3/10
Houck
North Salem 4/10
Residential
SingleFamilyResidence
East Park Village
Listing Provided Courtesy of Heather Quirke, D. R. Horton, Inc Portland
Krishna Realty data last checked: Dec 25, 2025 13:46 | Listing last modified Dec 24, 2025 12:18,
Source:
Open House
Sat, Dec 27th, 12PM to 3PM
Sun, Dec 28th, 12PM to 3PM
Mon, Dec 29th, 12PM to 3PM
Download our Mobile app
Residence Information
0
1630
0
1630
BUILDER
1630
3
2
0
2
Composition
2, Attached
Stories1
1
2025
No
CementSiding
CrawlSpace
CrawlSpace
ConcretePerimeter
DoublePaneWindows
Commons, Management
Features and Utilities
Disposal, FreeStandingGasRange, GasAppliances, Island, Pantry, PlumbedForIceMaker, Quartz, StainlessSteelAp
The Moreland is a functional one-level floor plan that has 1,630 square feet and boasts 3 bedrooms, and 2 bathrooms. The two front bedrooms are connected by a centrally located full bathroom for enhanced convenience. The laundry room is right by the kitchen and has easy access from the garage. The stylish kitchen is completed with stainless-steel appliances, a practical corner pantry, central island, quartz countertops, gas range/oven with a vent hood, inviting you to unleash your culinary creativity. Adjacent to the kitchen, the dining area is effortlessly connected to the expansive living room. This open-concept layout offers tall ceilings and large windows that fill the space with natural light. A centrally located fireplace in the great room adds style and warmth. The primary bedroom offers a walk-in closet, an en suite bathroom with a double vanity. Receive a closing cost credit with use of builder’s preferred lender, reach out for more information. Sales office hours are 9:30am – 4:30pm daily. Be a part of this wonderful community at East Park Village! Photos are representative of plan only and finishes may vary as built. This home includes Fence, AC, Blinds, GDO & Rear yard sod/irrigation!