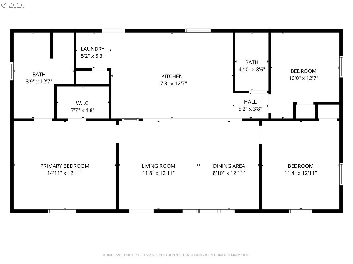
Great split-bedroom floor plan with all new interior paint, carpet, and luxury vinyl plank flooring! Open sight-lines and move-in ready. Low maintenance yard, convenient location, and a level 2 EV charger. Potential to assume seller's current VA loan.
Listing Provided Courtesy of Ashlee Dawn Mecham, Works Real Estate
General Information
770001687
ManufacturedHomeonRealProperty
1
DOM
3
5227.2 SqFt
2
1296
2018
R-3
Marion
100400
Jefferson 2/10
Jefferson 2/10
Jefferson 2/10
Residential
ManufacturedHomeonRealProperty
INSTITUTE ADDITION TO JEFFERSON, BLOCK 4, LOT FR 3, ACRES 0.117
Listing Provided Courtesy of Ashlee Dawn Mecham, Works Real Estate
Krishna Realty data last checked: Apr 30, 2026 08:32 | Listing last modified Apr 29, 2026 12:49,
Source:
Download our Mobile app
Residence Information
0
1296
0
1296
Tax
1296
3
2
0
2
Composition
1, Carport
DoubleWideManufactured
Carport,Driveway
1
2018
No
T111Siding, WoodComposite
VinylFrames
Features and Utilities
Dishwasher
LuxuryVinylPlank, WalltoWallCarpet
Fenced
MinimalSteps, OneLevel
Electricity
ForcedAir
PublicSewer
Electricity
Electricity
Financial
2152.65
0
Assumable,Cash,Conventional,FHA,USDALoan,VALoan
04-29-2026
No
No
Comparable Information
1
1
Assumable,Cash,Conventional,FHA,USDALoan,VALoan
$325,000
$325,000
Apr 29, 2026 12:49
Schools
public Elementary : Jefferson
2/10Ratingspublic Middle : Jefferson
2/10Ratingspublic High : Jefferson
2/10Ratings
Great split-bedroom floor plan with all new interior paint, carpet, and luxury vinyl plank flooring! Open sight-lines and move-in ready. Low maintenance yard, convenient location, and a level 2 EV charger. Potential to assume seller's current VA loan.