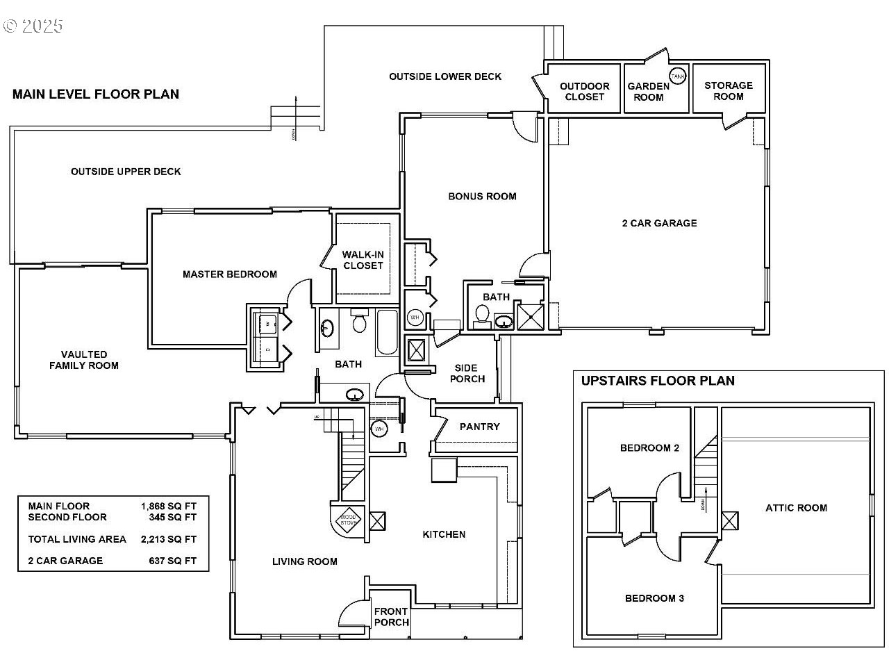
A PLACE TO BREATHE: This 52.59-acre Silverton estate offers a rare blend of beauty, privacy, and long-term value. A classic 4-bed, 2-bath farmhouse (currently rented for income) looks out over rolling fields, timber, and year-round springs with sweeping views of the Willamette Valley. Zoned Farm/Timber, the property supports farming, forestry, vineyards, retreats, or agritourism, offering unmatched flexibility for both personal and investment goals. Approximately 637,000 board feet of 72-year-old Douglas fir provide near-term harvest or conservation potential, while a younger 7.7-acre stand planted in 2000 adds future value. A 14.8-acre field is leased for crops, and two additional fields totaling 7.5 acres offer options for pasture, habitat, or new plantings. The flexible 4th bedroom suite features its own bath and private deck—perfect as a guest retreat, office, or studio with a view. Year-round springs provide reliable water for ponds, livestock, or off-grid potential, while wooded trails wind through the property for hiking, riding, or quiet exploration. Wildlife is abundant—deer graze the meadows, quail and hawks share the fields, and black bears occasionally pass through in berry season. Rich with history, the land was originally part of an 1866 Donation Land Claim and lies along the historic Klamath-Molala Indian Trail, adding cultural depth to its natural beauty. More than the sum of its parts, this property is at once a private sanctuary, an income-producing estate, and a legacy holding in the foothills of the Willamette Valley. A rare opportunity to own a piece of Oregon’s heritage with enduring value for generations to come.
Listing Provided Courtesy of Greg Messick, RealtyNET, LLC
General Information
367912648
SingleFamilyResidence
16
DOM
4
52.59 acres
2
2213
1910
FT
Marion
521438
Victor Point 10/10
Victor Point 10/10
Silverton 5/10
Residential
SingleFamilyResidence
ACRES 52.59
Listing Provided Courtesy of Greg Messick, RealtyNET, LLC
Krishna Realty data last checked: Oct 13, 2025 04:01 | Listing last modified Aug 20, 2025 22:20,
Source:
A PLACE TO BREATHE: This 52.59-acre Silverton estate offers a rare blend of beauty, privacy, and long-term value. A classic 4-bed, 2-bath farmhouse (currently rented for income) looks out over rolling fields, timber, and year-round springs with sweeping views of the Willamette Valley. Zoned Farm/Timber, the property supports farming, forestry, vineyards, retreats, or agritourism, offering unmatched flexibility for both personal and investment goals. Approximately 637,000 board feet of 72-year-old Douglas fir provide near-term harvest or conservation potential, while a younger 7.7-acre stand planted in 2000 adds future value. A 14.8-acre field is leased for crops, and two additional fields totaling 7.5 acres offer options for pasture, habitat, or new plantings. The flexible 4th bedroom suite features its own bath and private deck—perfect as a guest retreat, office, or studio with a view. Year-round springs provide reliable water for ponds, livestock, or off-grid potential, while wooded trails wind through the property for hiking, riding, or quiet exploration. Wildlife is abundant—deer graze the meadows, quail and hawks share the fields, and black bears occasionally pass through in berry season. Rich with history, the land was originally part of an 1866 Donation Land Claim and lies along the historic Klamath-Molala Indian Trail, adding cultural depth to its natural beauty. More than the sum of its parts, this property is at once a private sanctuary, an income-producing estate, and a legacy holding in the foothills of the Willamette Valley. A rare opportunity to own a piece of Oregon’s heritage with enduring value for generations to come.