Stayton, 97383
3 Bed
2.5 Bath
2485 SqFt
21 DOM
Built: 1960
$535,000
$535000
3 Bed
2.5 Bath
2485 SqFt
21 DOM
Built: 1960
Principal Broker
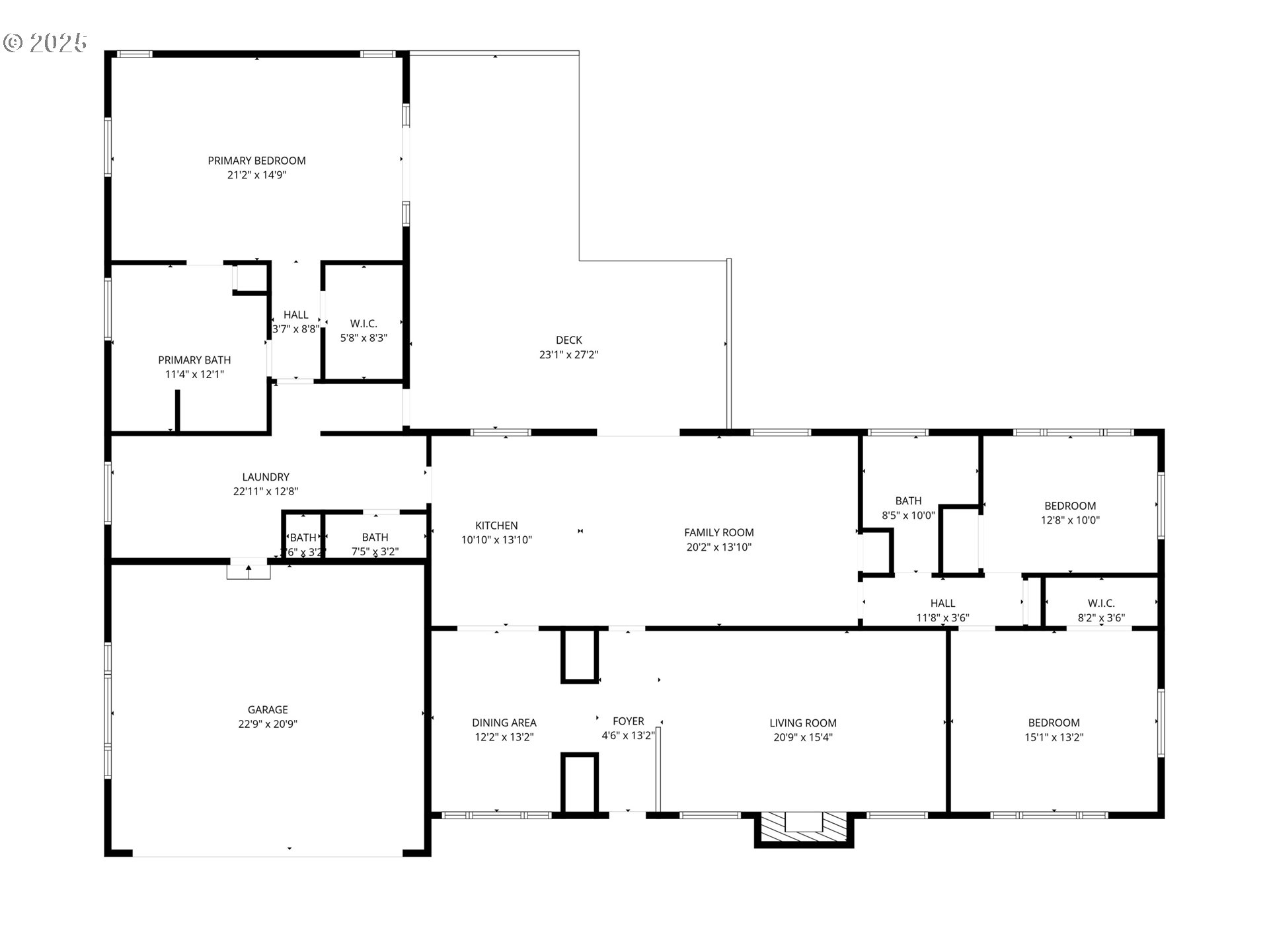
(503) 893-8874Beautifully maintained single-level brick home in a quiet Stayton neighborhood! This spacious 3-bedroom, 2.5-bath residence offers 2,485 sq ft of living space, featuring a primary suite addition (2000) with vaulted ceilings, private en suite bath, and French doors to the back patio. The open layout includes a large living area, formal dining, and a remodeled kitchen (2019) perfect for entertaining. Enjoy outdoor living on the covered deck and pergola overlooking the fully fenced, landscaped yard. The yard offers ample green space plus alley access to a 15x30 shop with RV parking and storage. Additional updates include a new roof and furnace (2016), forced air heat, central A/C, and a classic low-maintenance brick exterior. Conveniently located near schools, parks, and downtown Stayton amenities — this home offers the perfect blend of comfort, space, and function.
Listing Provided Courtesy of Joseph Hayes, HomeSmart Realty Group
167016602
SingleFamilyResidence
21 DOM
3
0.31 acres
2.5
2485
1960
Marion
103531
Stayton
Stayton
Stayton
Residential
SingleFamilyResidence
FRICHTLS SOUTH ADDITION, BLOCK 3, LOT 2, ACRES 0.308
Listing Provided Courtesy of Joseph Hayes, HomeSmart Realty Group
Krishna Realty data last checked: Dec 10, 2025 08:31 | Listing last modified Nov 19, 2025 13:19,
Source:
Download our Mobile app
0
2485
0
2485
trio
2485
1/Gas
3
2
1
2.5
Composition
2, Attached
Stories1
1
1960
No
Brick
ConcretePerimeter
HeatPump
PublicSewer
Electricity
4424.82
0
Cash,Conventional,FHA,StateGILoan,VALoan
11-19-2025
No
No
21
21
Cash,Conventional,FHA,StateGILoan,VALoan
$535,000
$535,000
Nov 19, 2025 13:19
Listing courtesy of HomeSmart Realty Group.
The content relating to real estate for sale on this site comes in part from the IDX program of the RMLS of Portland, Oregon.
Real Estate listings held by brokerage firms other than this firm are marked with the RMLS logo, and
detailed information about these properties include the name of the listing's broker.
Listing content is copyright © 2019 RMLS of Portland, Oregon.
All information provided is deemed reliable but is not guaranteed and should be independently verified.
Krishna Realty data last checked: Dec 10, 2025 08:31 | Listing last modified Nov 19, 2025 13:19.
Some properties which appear for sale on this web site may subsequently have sold or may no longer be available.
Principal Broker
(503) 893-8874Beautifully maintained single-level brick home in a quiet Stayton neighborhood! This spacious 3-bedroom, 2.5-bath residence offers 2,485 sq ft of living space, featuring a primary suite addition (2000) with vaulted ceilings, private en suite bath, and French doors to the back patio. The open layout includes a large living area, formal dining, and a remodeled kitchen (2019) perfect for entertaining. Enjoy outdoor living on the covered deck and pergola overlooking the fully fenced, landscaped yard. The yard offers ample green space plus alley access to a 15x30 shop with RV parking and storage. Additional updates include a new roof and furnace (2016), forced air heat, central A/C, and a classic low-maintenance brick exterior. Conveniently located near schools, parks, and downtown Stayton amenities — this home offers the perfect blend of comfort, space, and function.
Download our Mobile app