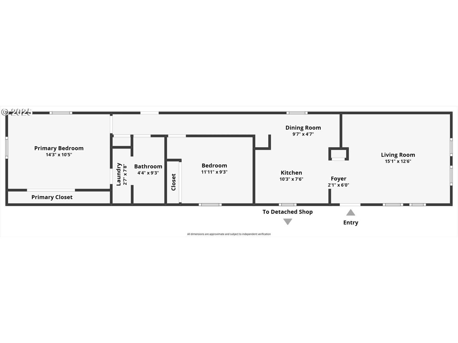
If you are looking for an affordable home that is move in ready, Don't pass this one up, it just might be the home for you! Wonderful floor plan with large living room with a wall of windows to let in the natural light. New kitchen sink and faucet has been replaced. Comes with the refrigerator and stove. New carpet and vinyl flooring. Large bedrooms and full sized closets. The primary bedroom has 2 built in dressers and offers access to the main bathroom. Washer and dryer are also included. New interior and exterior paint. Newer vinyl windows. Located on a nice lot with a large backyard. Enjoy this oversized shop that has windows to let in natural lighting, one this size is hard to come by. Covered carport with large covered patio. Seller is willing to install wheel chair ramp at buyers request.Financing available. Space rent $875.00 buyers must get park approval prior to purchasing. Located at Woodburn Senior Estates Mobile Home Park. This is a 55+ community. Easy access to freeway, shopping and restaurants. This home is ready for it's new owners! Listing broker is related to sellers.
Listing Provided Courtesy of Michelle Hill, Coldwell Banker Professional
General Information
280473217
ManufacturedHomeinPark
240
DOM
2
1
819
1973
Marion
Not Found
Lincoln 4/10
French Prairie 4/10
Woodburn 5/10
Residential
ManufacturedHomeinPark
Unknown Manufacture home in a park
Listing Provided Courtesy of Michelle Hill, Coldwell Banker Professional
Krishna Realty data last checked: Feb 22, 2026 09:06 | Listing last modified Feb 18, 2026 15:49,
Source:
If you are looking for an affordable home that is move in ready, Don't pass this one up, it just might be the home for you! Wonderful floor plan with large living room with a wall of windows to let in the natural light. New kitchen sink and faucet has been replaced. Comes with the refrigerator and stove. New carpet and vinyl flooring. Large bedrooms and full sized closets. The primary bedroom has 2 built in dressers and offers access to the main bathroom. Washer and dryer are also included. New interior and exterior paint. Newer vinyl windows. Located on a nice lot with a large backyard. Enjoy this oversized shop that has windows to let in natural lighting, one this size is hard to come by. Covered carport with large covered patio. Seller is willing to install wheel chair ramp at buyers request.Financing available. Space rent $875.00 buyers must get park approval prior to purchasing. Located at Woodburn Senior Estates Mobile Home Park. This is a 55+ community. Easy access to freeway, shopping and restaurants. This home is ready for it's new owners! Listing broker is related to sellers.