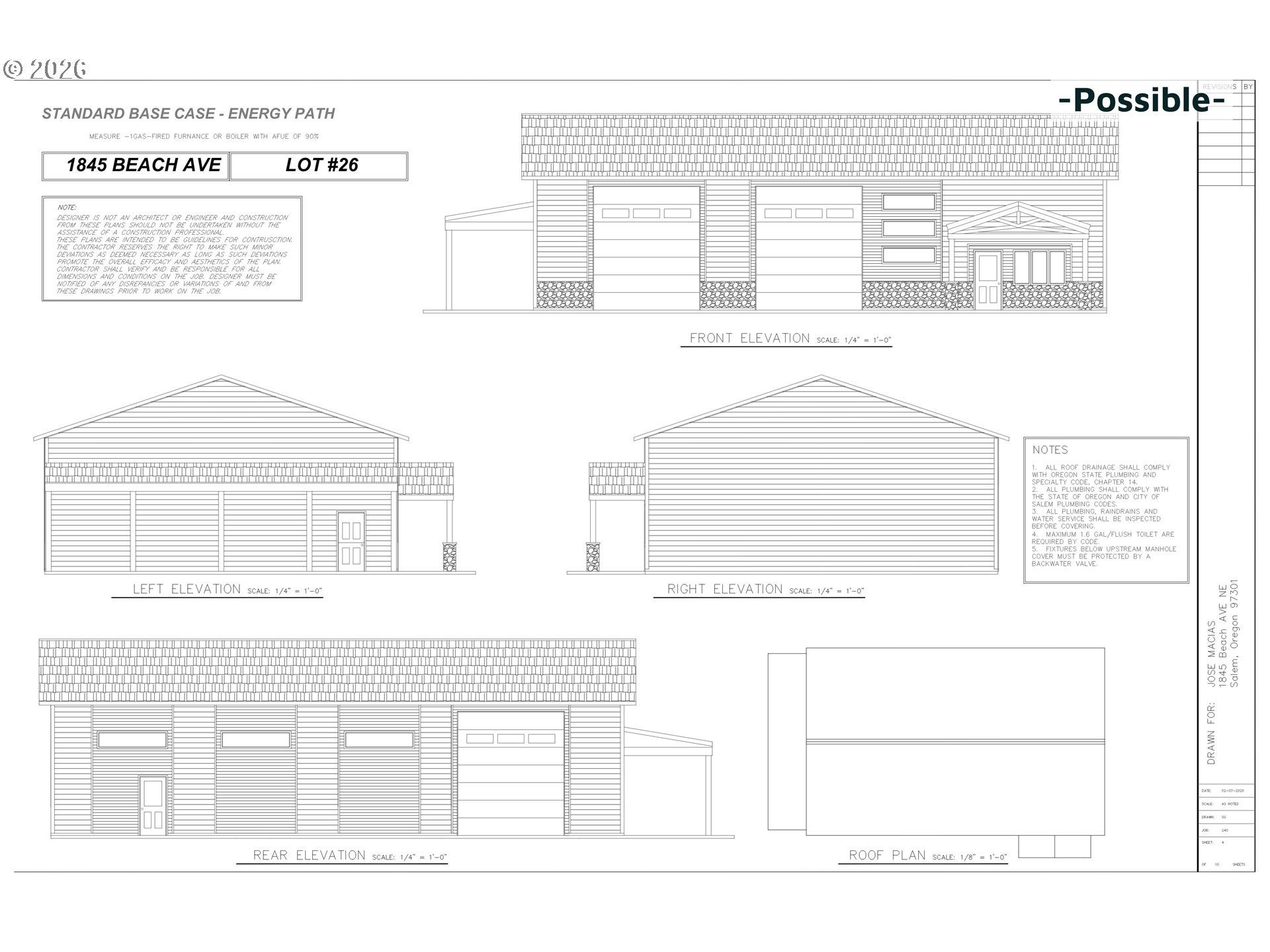
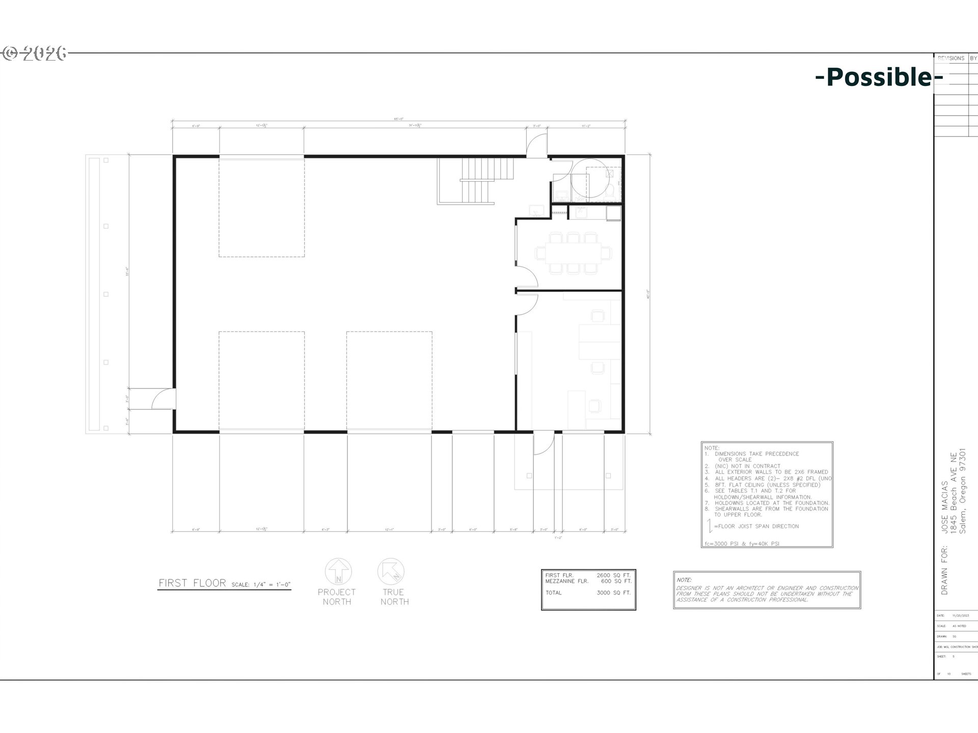
Prime 0.46 acre flat commercial parcel offering a versatile opportunity for a wide range of business uses. Utilities are stubbed to the lot, helping streamline development and reduce upfront costs. The site features convenient access to I 5, supporting efficient connectivity for customers, employees, and deliveries. Zoned Commercial General, the property allows for a broad mix of permitted uses including nursing care, short term lodging, non profit shelters, eating and drinking establishments, office, lab and research, motor vehicle and trailer sales, taxi and transportation services, day care, emergency services, funeral and cremation services, industrial services, general manufacturing, repair services, building and grounds services, and construction contracting. This flexibility makes it well suited for an owner user or small business seeking room to grow. Plans are available for a proposed 3000 square foot shop with offices, break room, and bathroom, offering a head start for buyers looking to move quickly from purchase to development. The level topography keeps cost down and maximizes utility. A ready to go commercial site with a wide range of allowable and suitable uses.
Listing Provided Courtesy of Mark Shadrin, Berkshire Hathaway HomeServices Real Estate Profes
General Information
209402095
Industrial
5
DOM
0.46 acres
CG
Marion
589703
Other
Waldo 5/10
McKay
Land
Industrial
SALEM HIGHWAY TRACTS, BLOCK 2, LOT 26, ACRES 0.46
Listing Provided Courtesy of Mark Shadrin, Berkshire Hathaway HomeServices Real Estate Profes
Krishna Realty data last checked: Apr 26, 2026 07:52 | Listing last modified Apr 23, 2026 11:17,
Source:
Download our Mobile app
Residence Information
No
Features and Utilities
Financial
1883
0
CallListingAgent,Cash,Conventional
04-21-2026
No
No
Comparable Information
5
5
CallListingAgent,Cash,Conventional
$289,900
$289,900
Apr 23, 2026 11:17
Schools
Elementary : OtherN/ARatingspublic Middle : Waldo
5/10Ratings High : McKayN/ARatings
Map
Listing courtesy of Berkshire Hathaway HomeServices Real Estate Profes.
Prime 0.46 acre flat commercial parcel offering a versatile opportunity for a wide range of business uses. Utilities are stubbed to the lot, helping streamline development and reduce upfront costs. The site features convenient access to I 5, supporting efficient connectivity for customers, employees, and deliveries. Zoned Commercial General, the property allows for a broad mix of permitted uses including nursing care, short term lodging, non profit shelters, eating and drinking establishments, office, lab and research, motor vehicle and trailer sales, taxi and transportation services, day care, emergency services, funeral and cremation services, industrial services, general manufacturing, repair services, building and grounds services, and construction contracting. This flexibility makes it well suited for an owner user or small business seeking room to grow. Plans are available for a proposed 3000 square foot shop with offices, break room, and bathroom, offering a head start for buyers looking to move quickly from purchase to development. The level topography keeps cost down and maximizes utility. A ready to go commercial site with a wide range of allowable and suitable uses.