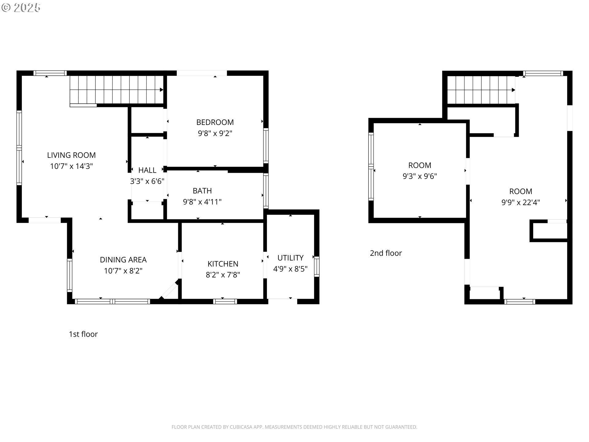
Cute Cottage home near Bush Park. Fresh paint inside. Laminate flooring, updated kitchen. Mini split for efficient heating and cooling. Primary on main floor second bedroom upstairs. Great Neighborhood. Newer Sewer line recently replaced. Roof is approximately 10 years old. Garage is shared with the neighbor.
Listing Provided Courtesy of Dana Burk, Keller Williams Capital City
General Information
391157162
SingleFamilyResidence
54
DOM
2
2613.6 SqFt
1
900
1927
RM2
Marion
596808
Bush
Leslie 3/10
South Salem 6/10
Residential
SingleFamilyResidence
YEW PARK ANNEX, BLOCK 15, LOT FR 1, ACRES 0.057
Listing Provided Courtesy of Dana Burk, Keller Williams Capital City
Krishna Realty data last checked: Jan 21, 2026 13:14 | Listing last modified Jan 06, 2026 18:04,
Source:
Download our Mobile app
Residence Information
0
900
0
900
County
900
2
1
0
1
Composition
1, Detached
Stories2
Driveway
2
1927
No
LapSiding, VinylSiding
None
None
PillarPostPier
VinylFrames
Features and Utilities
FreeStandingRange, FreeStandingRefrigerator
LaminateFlooring, VinylFloor, WalltoWallCarpet
MainFloorBedroomBath, MinimalSteps
MiniSplit
Electricity
Ductless, MiniSplit
PublicSewer
Electricity
Electricity
Financial
2061.23
0
Cash,Conventional
11-13-2025
No
No
Comparable Information
54
69
Cash,Conventional
$325,000
$310,000
Jan 06, 2026 18:04
Schools
Elementary : BushN/ARatingspublic Middle : Leslie
3/10Ratingspublic High : South Salem
6/10Ratings
Cute Cottage home near Bush Park. Fresh paint inside. Laminate flooring, updated kitchen. Mini split for efficient heating and cooling. Primary on main floor second bedroom upstairs. Great Neighborhood. Newer Sewer line recently replaced. Roof is approximately 10 years old. Garage is shared with the neighbor.