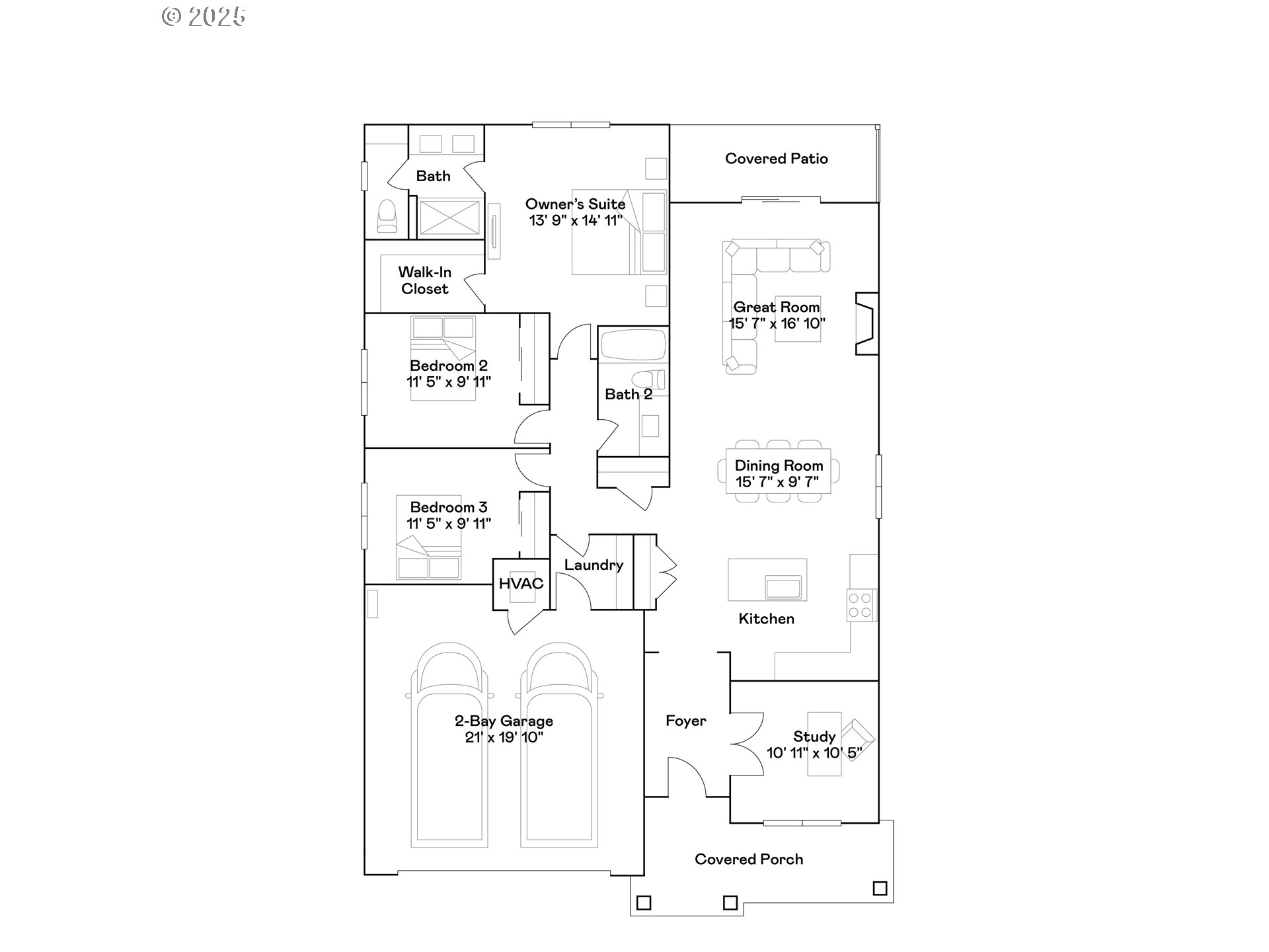
A single-story with a split design, this home was designed for family living. On one side, the open layout flows the kitchen, dining room and Great Room together — leading to a back patio. Adjacent, the impressive owner's suite overlooks two additional bedrooms. A study near the foyer further optimizes the space. Home backs to trees for a private back yard, home comes complete with AC, blinds, all appliances including refrigerator, washer and dryer. Tankless hot water heater, landscaping, back yard fence and underground sprinklers. Complete July 2026. HS 228.Pictures are of similar home.
Listing Provided Courtesy of Amanda Whiterock, Lennar Sales Corp
General Information
534998566
SingleFamilyResidence
1
DOM
3
2
1680
2026
Linn
New Construction
Tangent
Memorial
West Albany
Residential
SingleFamilyResidence
At title
Listing Provided Courtesy of Amanda Whiterock, Lennar Sales Corp
Krishna Realty data last checked: Mar 27, 2026 09:00 | Listing last modified Mar 26, 2026 11:17,
Source:
A single-story with a split design, this home was designed for family living. On one side, the open layout flows the kitchen, dining room and Great Room together — leading to a back patio. Adjacent, the impressive owner's suite overlooks two additional bedrooms. A study near the foyer further optimizes the space. Home backs to trees for a private back yard, home comes complete with AC, blinds, all appliances including refrigerator, washer and dryer. Tankless hot water heater, landscaping, back yard fence and underground sprinklers. Complete July 2026. HS 228.Pictures are of similar home.