Lyons, 97358
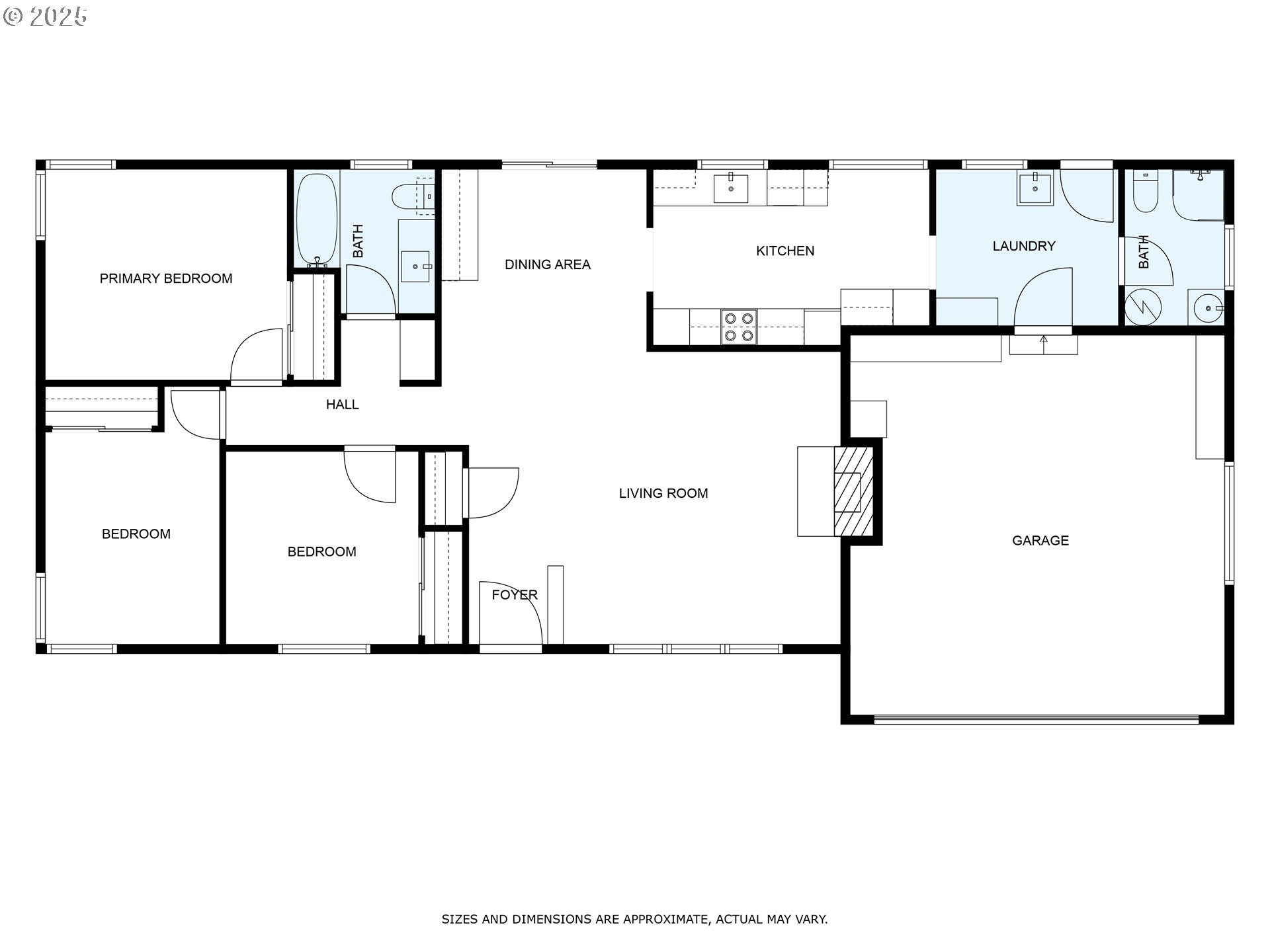
3 Bed
1.5 Bath
1281 SqFt
149 DOM
Built: 1964
$775,000
Price cut: $20K (08-17-2025)
$775000
Price cut: $20K (08-17-2025)
3 Bed
1.5 Bath
1281 SqFt
149 DOM
Built: 1964
Principal Broker
(503) 893-8874A beloved homestead that has been in operation for over 125 years, where generations have learned to care for family, animals, and the land. Now is your chance to continue this and build your own legacy on this beautiful property! Ideally situated with an easy commute to Salem and on the gateway to the Bend/Sisters area with its beautiful rivers and mountains. A cute single level, exceptionally well maintained 3 bedroom, 2 bathroom ranch home, situated on 60.64 acres of level land, with a creek, a natural spring and a well, providing clear, cool water. The newer appliances are all included. A new composite roof was installed in 2016, and recently a new garage door and opener. The following sizes are approximate: 21 acres of productive fields for hay (includes the small field across the creek), 17 acres of fenced pasture for grazing with easy access from road, 20 acres of adjacent land, of which 15 is wooded, and 2 acres with the house and fenced yard plus pasture with outbuildings – a large barn, two lockable outbuildings, storage shed and carport. Come and make yourself at home!
Listing Provided Courtesy of Charles Buck, Soldera Properties, Inc
690142208
SingleFamilyResidence
149 DOM
3
60.64 acres
1.5
1281
1964
F/F
Linn
0006961
Santiam
Santiam
Santiam
Residential
SingleFamilyResidence
09S02E2700
Listing Provided Courtesy of Charles Buck, Soldera Properties, Inc
Krishna Realty data last checked: Oct 16, 2025 04:55 | Listing last modified Oct 04, 2025 19:00,
Source:
Download our Mobile app
0
1281
0
1281
TRIO
1281
1/Gas
3
1
1
1.5
Composition
2, Attached
Stories1,Ranch
ParkingPad,RVAccessP
1
1964
No
Cedar
CrawlSpace,ExteriorEntry
RVParking,RVBoatStorage
CrawlSpace,ExteriorE
ConcretePerimeter,Pi
AluminumFrames
BuiltinFeatures, CeilingFan, Fireplace
BuiltinOven, Cooktop, FreeStandingRefrigerator, RangeHood
GarageDoorOpener, VinylFloor
CoveredPatio, CrossFenced, Fenced, Outbuilding, RVParking, RVBoatStorage
Electricity
ForcedAir
SepticTank
Electricity
Electricity
3010.03
0
Cash,Conventional,VALoan
05-09-2025
No
No
149
160
Cash,Conventional,VALoan
$849,900
$775,000
Oct 04, 2025 19:00
Listing courtesy of Soldera Properties, Inc.
The content relating to real estate for sale on this site comes in part from the IDX program of the RMLS of Portland, Oregon.
Real Estate listings held by brokerage firms other than this firm are marked with the RMLS logo, and
detailed information about these properties include the name of the listing's broker.
Listing content is copyright © 2019 RMLS of Portland, Oregon.
All information provided is deemed reliable but is not guaranteed and should be independently verified.
Krishna Realty data last checked: Oct 16, 2025 04:55 | Listing last modified Oct 04, 2025 19:00.
Some properties which appear for sale on this web site may subsequently have sold or may no longer be available.
Principal Broker
(503) 893-8874A beloved homestead that has been in operation for over 125 years, where generations have learned to care for family, animals, and the land. Now is your chance to continue this and build your own legacy on this beautiful property! Ideally situated with an easy commute to Salem and on the gateway to the Bend/Sisters area with its beautiful rivers and mountains. A cute single level, exceptionally well maintained 3 bedroom, 2 bathroom ranch home, situated on 60.64 acres of level land, with a creek, a natural spring and a well, providing clear, cool water. The newer appliances are all included. A new composite roof was installed in 2016, and recently a new garage door and opener. The following sizes are approximate: 21 acres of productive fields for hay (includes the small field across the creek), 17 acres of fenced pasture for grazing with easy access from road, 20 acres of adjacent land, of which 15 is wooded, and 2 acres with the house and fenced yard plus pasture with outbuildings – a large barn, two lockable outbuildings, storage shed and carport. Come and make yourself at home!
Download our Mobile app