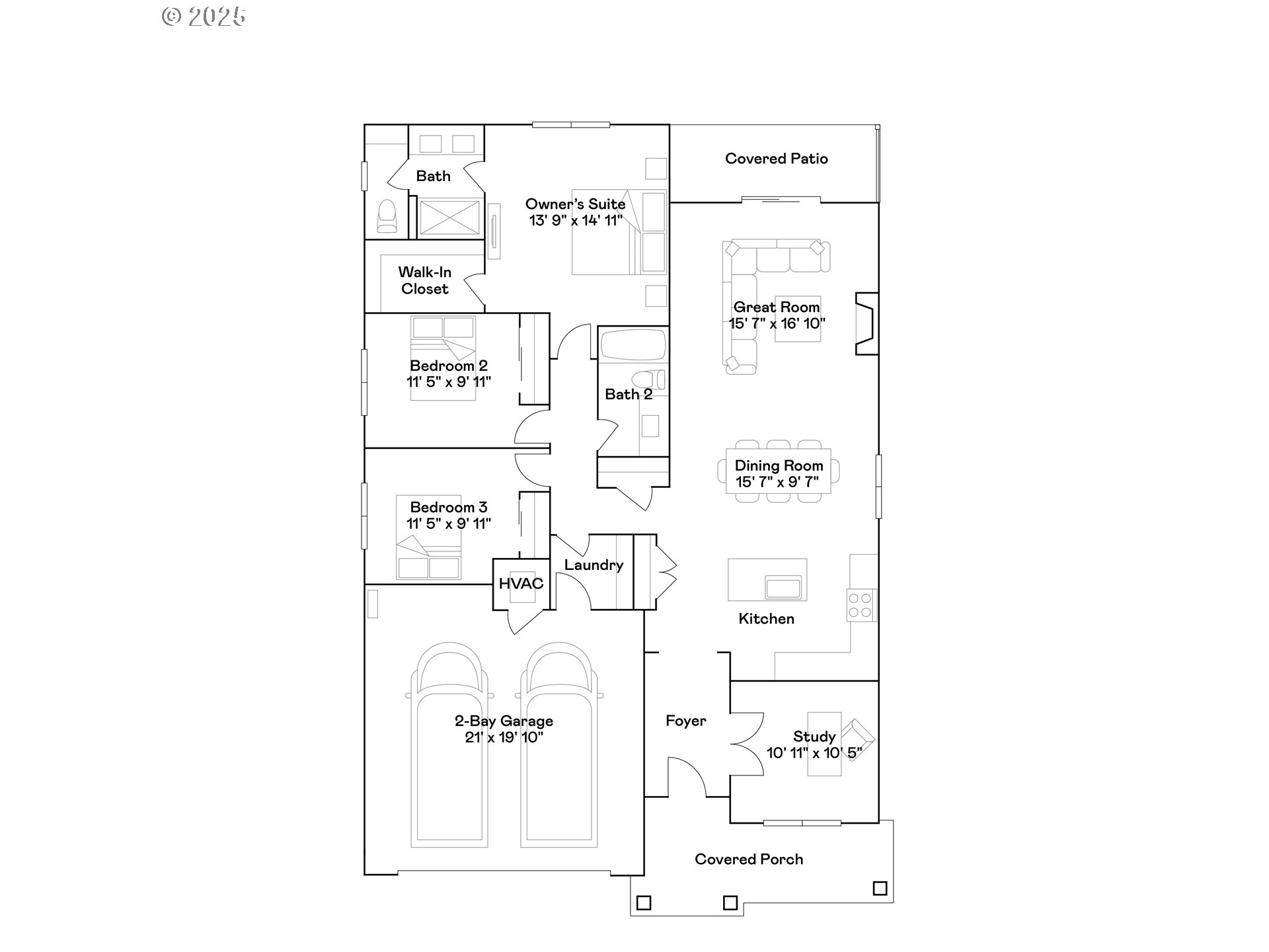
This new construction home is located in Henshaw Farm, with convenient access to Simpson Park, Linn-Benton Community College, downtown historic Albany, and the Golf Club of Oregon, all within a short drive. The Trenton plan is a single-story design with a split layout that places the open kitchen, dining room, and great room together, extending to a back patio for outdoor living. On one side of the home, the spacious primary suite offers a private retreat, while two additional bedrooms are positioned nearby. A study near the foyer adds flexibility for an office or hobby room. Interior finishes include quartz countertops, shaker-style cabinets, LVP flooring in the kitchen and entry, LVT in the baths, two-tone paint with painted trim, a fireplace with a floating mantle, landscaping, fencing, and a separate tub and shower in the primary bath. This home also includes central air conditioning, a refrigerator, washer and dryer, and blinds—all at no extra cost! Located on homesite 145, this home is expected to be complete in February 2026. Rendering is artist conception only. Photos are of a similar home, features and finishes will vary.
Listing Provided Courtesy of Amanda Whiterock, Lennar Sales Corp
General Information
309664635
SingleFamilyResidence
28
DOM
3
2
1680
2026
Linn
New Construction
Tangent
Memorial
West Albany
Residential
SingleFamilyResidence
Henshaw Farm , lot 145
Listing Provided Courtesy of Amanda Whiterock, Lennar Sales Corp
Krishna Realty data last checked: Oct 21, 2025 03:51 | Listing last modified Sep 25, 2025 10:29,
Source:
Download our Mobile app
Residence Information
0
1680
0
1680
Builder
1680
1/Gas
3
2
0
2
Composition
2, Attached
Stories1
Driveway
1
2026
No
CementSiding
CrawlSpace
CrawlSpace
ConcretePerimeter
VinylFrames
Commons, Management
Features and Utilities
Dishwasher, Disposal, FreeStandingGasRange, FreeStandingRefrigerator, GasAppliances, Island, Microwave, Plu
This new construction home is located in Henshaw Farm, with convenient access to Simpson Park, Linn-Benton Community College, downtown historic Albany, and the Golf Club of Oregon, all within a short drive. The Trenton plan is a single-story design with a split layout that places the open kitchen, dining room, and great room together, extending to a back patio for outdoor living. On one side of the home, the spacious primary suite offers a private retreat, while two additional bedrooms are positioned nearby. A study near the foyer adds flexibility for an office or hobby room. Interior finishes include quartz countertops, shaker-style cabinets, LVP flooring in the kitchen and entry, LVT in the baths, two-tone paint with painted trim, a fireplace with a floating mantle, landscaping, fencing, and a separate tub and shower in the primary bath. This home also includes central air conditioning, a refrigerator, washer and dryer, and blinds—all at no extra cost! Located on homesite 145, this home is expected to be complete in February 2026. Rendering is artist conception only. Photos are of a similar home, features and finishes will vary.