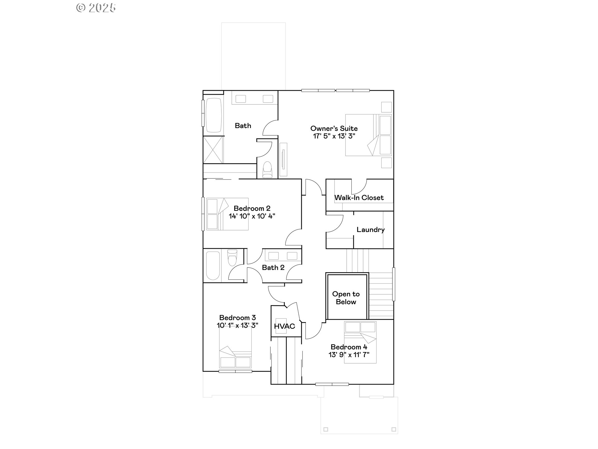
Welcome to Henshaw Farm by Lennar. The new construction Ashland plan offers a spacious two-story design that balances comfort and functionality. The first floor showcases an open layout connecting the great room, kitchen, and dining area, with a sliding glass door leading to the patio for easy indoor-outdoor entertaining. A nearby tech space provides the perfect spot for work or study. Upstairs are four bedrooms, including the spacious primary suite with an ensuite bathroom featuring a double vanity, separate soaking tub and shower, and a walk-in closet. Two bedrooms share a Jack-and-Jill style bathroom. Interior highlights include quartz countertops, Shaker-style cabinets, LVP (luxury vinyl plank) flooring in the kitchen and entry way, LVT (luxury vinyl tile) flooring in the bathrooms, two-tone interior paint, full landscaping, fencing, and a fireplace with a floating mantle. This home also comes complete with central air conditioning, a refrigerator, washer and dryer, and blinds—all at no extra cost. Set in the heart of the Willamette Valley, Albany is a friendly and picturesque city that blends small-town charm with modern conveniences. A walkable downtown, scenic riverfront parks, and easy access to Corvallis and Salem make it an inviting place to call home. Rendering is artist conception only. Photos are of a similar home, features and finishes will vary. Estimated completion: November 2025. Homesite: 199. *Below-market rate incentives available when financing with preferred lender.*
Listing Provided Courtesy of Amanda Whiterock, Lennar Sales Corp
General Information
783492731
SingleFamilyResidence
6
DOM
4
2.5
2288
2025
Linn
New Construction
Tangent
Memorial
West Albany
Residential
SingleFamilyResidence
Henshaw Farm, lot 199
Listing Provided Courtesy of Amanda Whiterock, Lennar Sales Corp
Krishna Realty data last checked: Dec 05, 2025 10:33 | Listing last modified Nov 12, 2025 13:51,
Source:
Download our Mobile app
Residence Information
1259
1029
0
2288
Builder
2288
1/Gas
4
2
1
2.5
Composition
2, Attached
Stories2
Driveway
2
2025
No
CementSiding
CrawlSpace
CrawlSpace
ConcretePerimeter
DoublePaneWindows,Vi
Commons, Management
Features and Utilities
Dishwasher, Disposal, FreeStandingGasRange, FreeStandingRefrigerator, Island, Microwave, PlumbedForIceMake
Welcome to Henshaw Farm by Lennar. The new construction Ashland plan offers a spacious two-story design that balances comfort and functionality. The first floor showcases an open layout connecting the great room, kitchen, and dining area, with a sliding glass door leading to the patio for easy indoor-outdoor entertaining. A nearby tech space provides the perfect spot for work or study. Upstairs are four bedrooms, including the spacious primary suite with an ensuite bathroom featuring a double vanity, separate soaking tub and shower, and a walk-in closet. Two bedrooms share a Jack-and-Jill style bathroom. Interior highlights include quartz countertops, Shaker-style cabinets, LVP (luxury vinyl plank) flooring in the kitchen and entry way, LVT (luxury vinyl tile) flooring in the bathrooms, two-tone interior paint, full landscaping, fencing, and a fireplace with a floating mantle. This home also comes complete with central air conditioning, a refrigerator, washer and dryer, and blinds—all at no extra cost. Set in the heart of the Willamette Valley, Albany is a friendly and picturesque city that blends small-town charm with modern conveniences. A walkable downtown, scenic riverfront parks, and easy access to Corvallis and Salem make it an inviting place to call home. Rendering is artist conception only. Photos are of a similar home, features and finishes will vary. Estimated completion: November 2025. Homesite: 199. *Below-market rate incentives available when financing with preferred lender.*