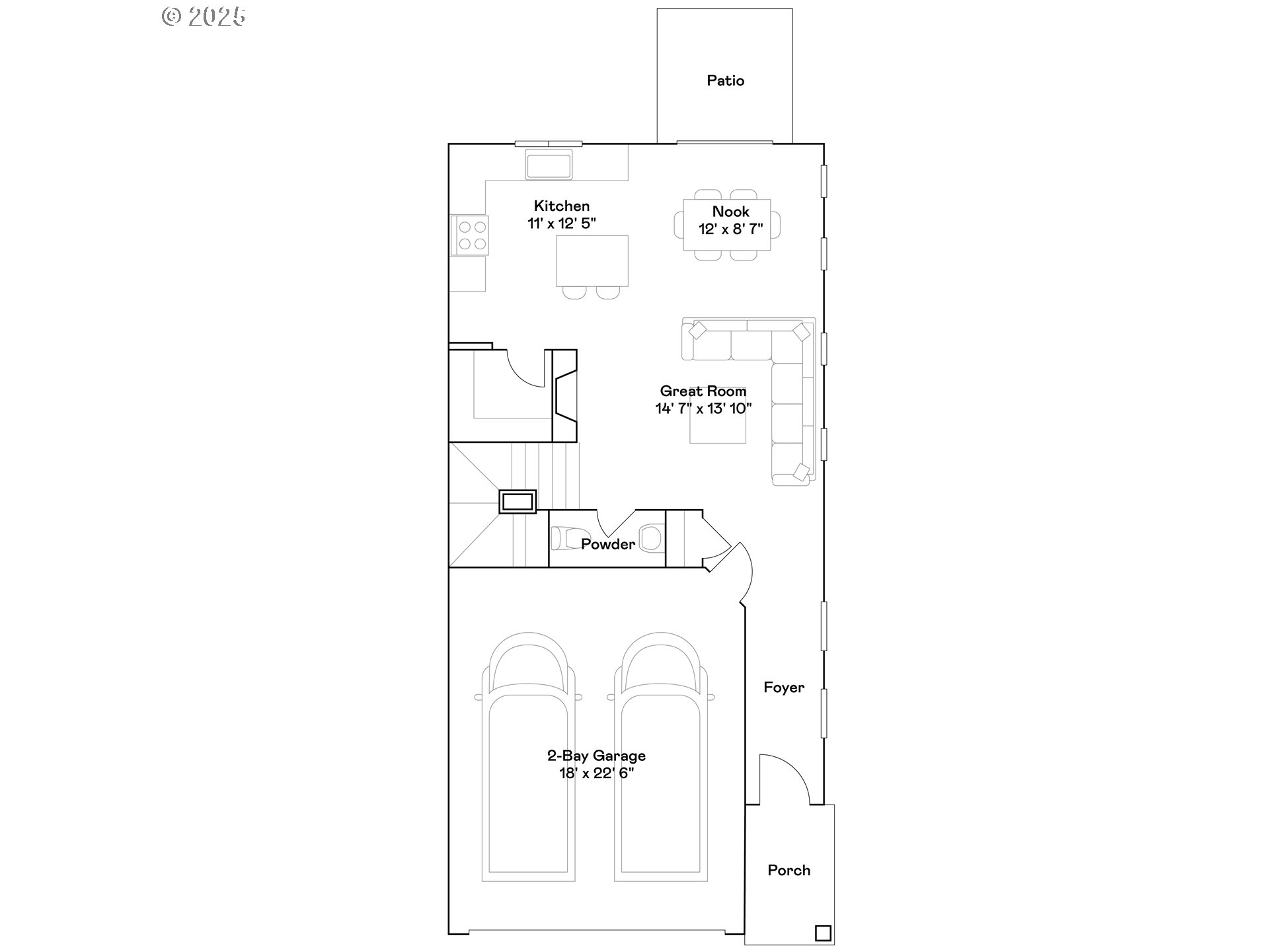
This new construction home is located in Henshaw Farm near everyday conveniences and local recreation. The Blairmont plan features a contemporary two-story design with an open-concept main floor that connects the kitchen, dining, and great room to the rear patio, while the second floor offers a laundry room, two secondary bedrooms, and a primary suite with a walk-in closet and a private bath featuring a double vanity and a separate tub and shower. Interior highlights include quartz countertops, shaker-style cabinets, LVP flooring in the kitchen and entry, LVT flooring in the baths, two-tone interior paint on walls and trim, a fireplace with floating mantle, along with landscaping and fencing. This home also includes central air conditioning, a refrigerator, washer and dryer, and blinds—all at no extra cost! Located on homesite 137, this home is expected to be complete in January 2026. Rendering is artist conception only. Photos are of a similar home, features and finishes will vary.
Listing Provided Courtesy of Amanda Whiterock, Lennar Sales Corp
General Information
311943835
SingleFamilyResidence
2
DOM
3
4791.6 SqFt
2.5
1824
2026
Linn
0949354
Tangent
Memorial
West Albany
Residential
SingleFamilyResidence
Henshaw Farm lot 137
Listing Provided Courtesy of Amanda Whiterock, Lennar Sales Corp
Krishna Realty data last checked: Oct 07, 2025 00:35 | Listing last modified Oct 02, 2025 09:09,
Source:
Download our Mobile app
Residence Information
1091
733
0
1824
Builder
1824
1/Gas
3
2
1
2.5
Composition
2, Attached
Stories2
Driveway
2
2026
No
CementSiding
CrawlSpace
CrawlSpace
ConcretePerimeter
DoublePaneWindows,Vi
Commons, Management
Features and Utilities
Dishwasher, Disposal, FreeStandingGasRange, FreeStandingRefrigerator, GasAppliances, Island, Microwave, Pan
This new construction home is located in Henshaw Farm near everyday conveniences and local recreation. The Blairmont plan features a contemporary two-story design with an open-concept main floor that connects the kitchen, dining, and great room to the rear patio, while the second floor offers a laundry room, two secondary bedrooms, and a primary suite with a walk-in closet and a private bath featuring a double vanity and a separate tub and shower. Interior highlights include quartz countertops, shaker-style cabinets, LVP flooring in the kitchen and entry, LVT flooring in the baths, two-tone interior paint on walls and trim, a fireplace with floating mantle, along with landscaping and fencing. This home also includes central air conditioning, a refrigerator, washer and dryer, and blinds—all at no extra cost! Located on homesite 137, this home is expected to be complete in January 2026. Rendering is artist conception only. Photos are of a similar home, features and finishes will vary.