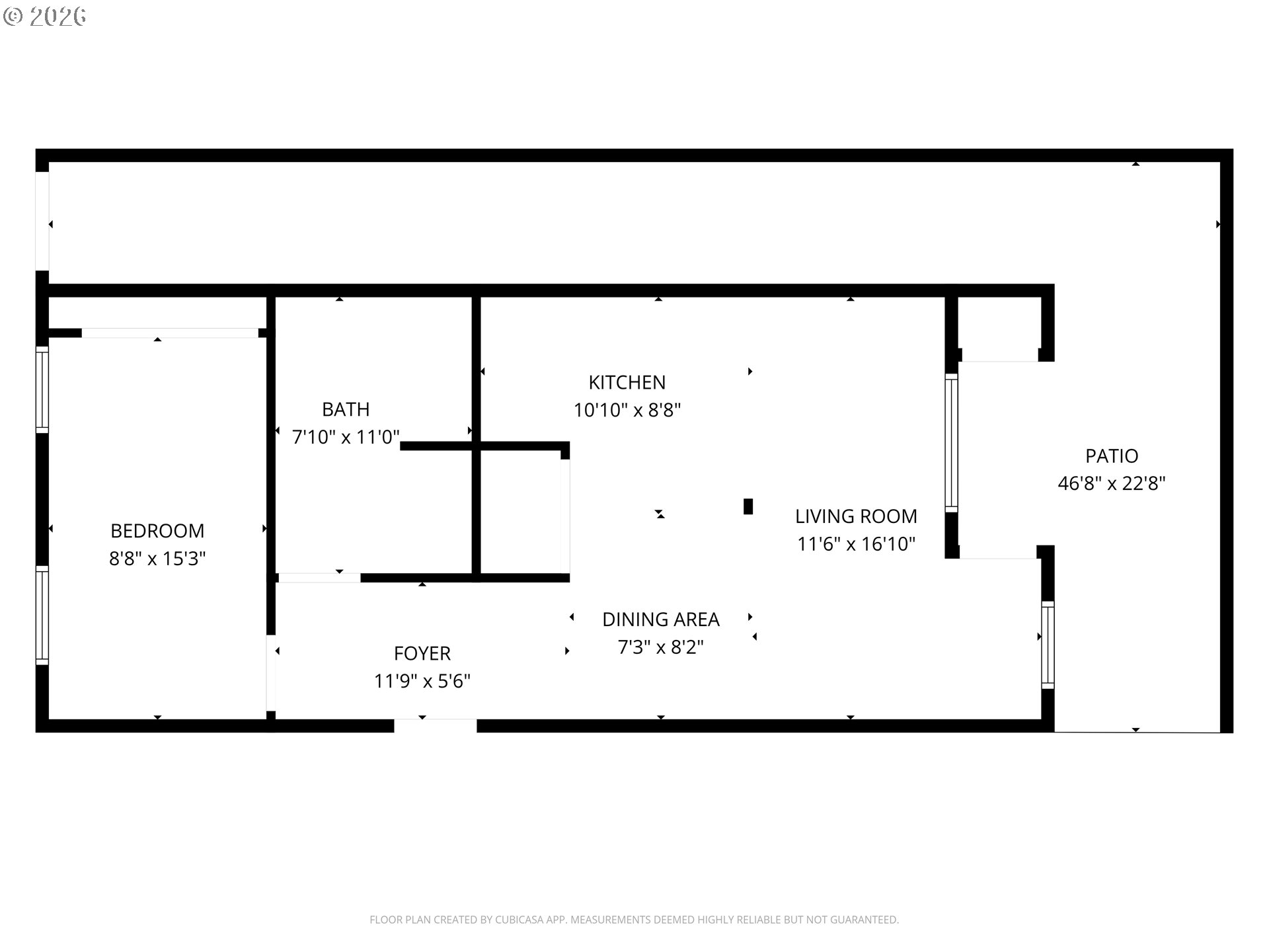
Welcome to easy coastal living in this beautifully designed, ground-floor 1-bedroom, 1-bath condo, built in 2024 with comfort, accessibility, and modern style in mind. Thoughtfully crafted for step-free living, this home offers accessible features with a spacious layout, and seamless transitions throughout. The open-concept floor plan creates a bright and inviting living space. Large windows fill the home with natural light, while clean lines and contemporary finishes give it a fresh, modern feel. The living area flows effortlessly into the kitchen, which features sleek cabinetry, stainless steel appliances, and ample quartz counter space for cooking and gathering. The spacious bathroom is designed with accessibility in mind with grab bars, an easy-to-navigate layout, and modern fixtures. Outside is a private rear patio, a perfect spot to take in the clean, coastal air. No stairs, ground-level access, and a handicapped parking spot located right outside the door. Located just south of the Newport Bridge, this condo is just minutes from some of the Oregon Coast's most popular attractions. Spend your days exploring the Oregon Coast Aquarium, strolling along the nearby beaches, or enjoying the vibrant atmosphere of the South Beach Marina. A variety of local shops, dining options, and everyday conveniences are all within easy reach, making this an ideal location for both full-time living and a relaxing coastal getaway. Built in 2024, this home offers the peace of mind that comes with newer construction. Whether you're looking for a primary residence, a second home, or a smart investment, this condo delivers accessibility, location, and contemporary comfort.
Listing Provided Courtesy of Heidi Rogers, Cascade Hasson Sotheby's International Realty
General Information
660122852
Condominium
1
DOM
1
1
652
2024
R-4
Lincoln
R902219
Yaquina View
Newport
Newport
Residential
Condominium
PROPERTY ID R902219 COHO ST CONDOMINIUM, UNIT 2, DOC202501036
Listing Provided Courtesy of Heidi Rogers, Cascade Hasson Sotheby's International Realty
Krishna Realty data last checked: Apr 29, 2026 04:12 | Listing last modified Apr 28, 2026 10:41,
Source:
Welcome to easy coastal living in this beautifully designed, ground-floor 1-bedroom, 1-bath condo, built in 2024 with comfort, accessibility, and modern style in mind. Thoughtfully crafted for step-free living, this home offers accessible features with a spacious layout, and seamless transitions throughout. The open-concept floor plan creates a bright and inviting living space. Large windows fill the home with natural light, while clean lines and contemporary finishes give it a fresh, modern feel. The living area flows effortlessly into the kitchen, which features sleek cabinetry, stainless steel appliances, and ample quartz counter space for cooking and gathering. The spacious bathroom is designed with accessibility in mind with grab bars, an easy-to-navigate layout, and modern fixtures. Outside is a private rear patio, a perfect spot to take in the clean, coastal air. No stairs, ground-level access, and a handicapped parking spot located right outside the door. Located just south of the Newport Bridge, this condo is just minutes from some of the Oregon Coast's most popular attractions. Spend your days exploring the Oregon Coast Aquarium, strolling along the nearby beaches, or enjoying the vibrant atmosphere of the South Beach Marina. A variety of local shops, dining options, and everyday conveniences are all within easy reach, making this an ideal location for both full-time living and a relaxing coastal getaway. Built in 2024, this home offers the peace of mind that comes with newer construction. Whether you're looking for a primary residence, a second home, or a smart investment, this condo delivers accessibility, location, and contemporary comfort.