Lakefront living on the Oregon Coast! This 3-bedroom, 2.5-bath home offers a rare blend of comfort and functionality, featuring a spacious open living room and a large flex space ideal for a home office, media room, or guest overflow. Enjoyed through generations of a local logging family, the home showcases beautiful wall and ceiling wood paneling harvested by the family business and hand-installed to complement the original architecture. Stunning lake views create a peaceful setting to relax and unwind. The flat, manicured yard and new back deck provide excellent space for outdoor entertaining, while the private boat dock offers direct lake access. Conveniently located near beach access, shopping, golf, and the casino, this property is ideal as a full-time residence or coastal retreat. Easy to show!
Listing Provided Courtesy of Kacey Schmitz, Coldwell Banker Professional
General Information
642083246
SingleFamilyResidence
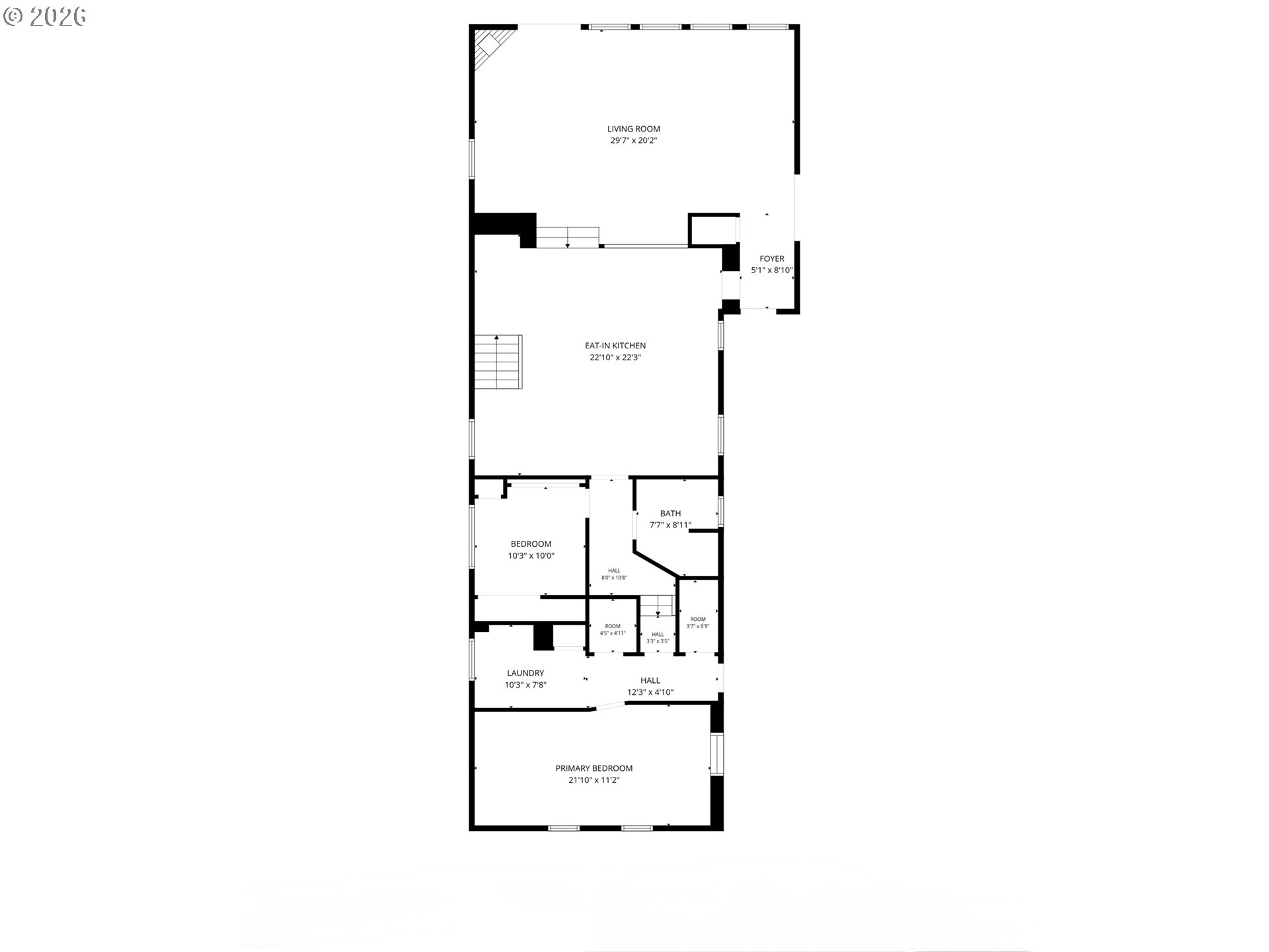
21
DOM
3
0.77 acres
2.5
2468
1956
Lincoln
R306428
Oceanlake
Taft
Taft
Residential
SingleFamilyResidence
PROPERTY ID R306428 TWNSHP 07, RNG 11, ACRES 0.77, DOC202407696
Listing Provided Courtesy of Kacey Schmitz, Coldwell Banker Professional
Krishna Realty data last checked: May 07, 2026 01:22 | Listing last modified Apr 16, 2026 16:30,
Source:
Download our Mobile app
Residence Information
934
1534
0
2468
TRIO
2468
1/Gas
3
2
1
2.5
Composition
Stories2,Cabin
Driveway
2
1956
No
BoardBattenSiding, WoodSiding
ConcretePerimeter
VinylFrames
Features and Utilities
BuiltinOven, Cooktop, Dishwasher, FreeStandingRefrigerator, Island
Lakefront living on the Oregon Coast! This 3-bedroom, 2.5-bath home offers a rare blend of comfort and functionality, featuring a spacious open living room and a large flex space ideal for a home office, media room, or guest overflow. Enjoyed through generations of a local logging family, the home showcases beautiful wall and ceiling wood paneling harvested by the family business and hand-installed to complement the original architecture. Stunning lake views create a peaceful setting to relax and unwind. The flat, manicured yard and new back deck provide excellent space for outdoor entertaining, while the private boat dock offers direct lake access. Conveniently located near beach access, shopping, golf, and the casino, this property is ideal as a full-time residence or coastal retreat. Easy to show!