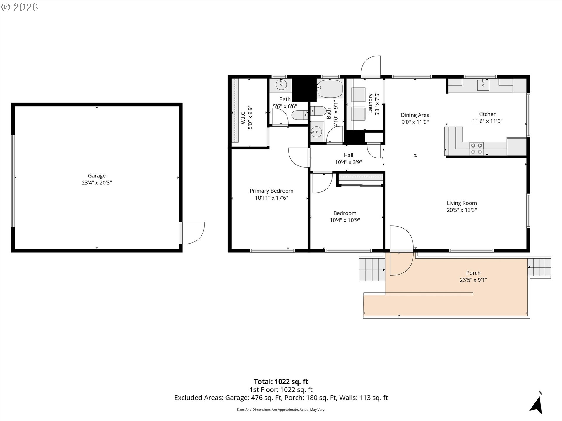
Severe fixer opportunity with significant upside. This 1979 doublewide manufactured home is situated on approximately 0.60 acres in a quiet rural setting and presents a prime opportunity for buyers looking to build equity through renovation or potential replacement. The property will require substantial clean up and repairs throughout, including the removal of personal property, debris, and overall site cleanup, all to be assumed by the buyer. The home is being sold strictly as is. Inside, the home offers 2 bedrooms and 2 bathrooms, along with a spacious living room and a kitchen with an adjoining dining area. The layout provides a functional starting point for those willing to put in the work and reimagine the space. A newer ductless heating and cooling system has already been installed, offering a valuable upgrade and added efficiency once the property is restored. The exterior provides a generous amount of usable land with a large fenced backyard, ideal for gardening, animals, or creating your own outdoor retreat. Multiple outbuildings enhance the property’s utility and flexibility, including a 21 x 25 metal shop or garage, several additional sheds and structures, and a conex shipping container for extra storage or workspace. A covered deck extends the living space outdoors but will require repair or replacement. With the right vision and effort, this property offers strong potential in a rural setting with room to grow. Bring your tools, creativity, and determination to unlock the possibilities. Ideal for cash buyers ready to take on a project and transform this property into something special.
Listing Provided Courtesy of Michael Wallin, Keller Williams Realty
General Information
412004813
SingleFamilyResidence
1
DOM
2
0.64 acres
2
960
1979
Lewis
007471003000
Castle Rock
Castle Rock
Castle Rock
Residential
SingleFamilyResidence
SECTION 32 TOWNSHIP 11N RANGE 02W LOTS 8-14 BLK 129 LITTLE FALLS
Listing Provided Courtesy of Michael Wallin, Keller Williams Realty
Krishna Realty data last checked: Apr 28, 2026 10:27 | Listing last modified Apr 27, 2026 13:34,
Source:
Severe fixer opportunity with significant upside. This 1979 doublewide manufactured home is situated on approximately 0.60 acres in a quiet rural setting and presents a prime opportunity for buyers looking to build equity through renovation or potential replacement. The property will require substantial clean up and repairs throughout, including the removal of personal property, debris, and overall site cleanup, all to be assumed by the buyer. The home is being sold strictly as is. Inside, the home offers 2 bedrooms and 2 bathrooms, along with a spacious living room and a kitchen with an adjoining dining area. The layout provides a functional starting point for those willing to put in the work and reimagine the space. A newer ductless heating and cooling system has already been installed, offering a valuable upgrade and added efficiency once the property is restored. The exterior provides a generous amount of usable land with a large fenced backyard, ideal for gardening, animals, or creating your own outdoor retreat. Multiple outbuildings enhance the property’s utility and flexibility, including a 21 x 25 metal shop or garage, several additional sheds and structures, and a conex shipping container for extra storage or workspace. A covered deck extends the living space outdoors but will require repair or replacement. With the right vision and effort, this property offers strong potential in a rural setting with room to grow. Bring your tools, creativity, and determination to unlock the possibilities. Ideal for cash buyers ready to take on a project and transform this property into something special.