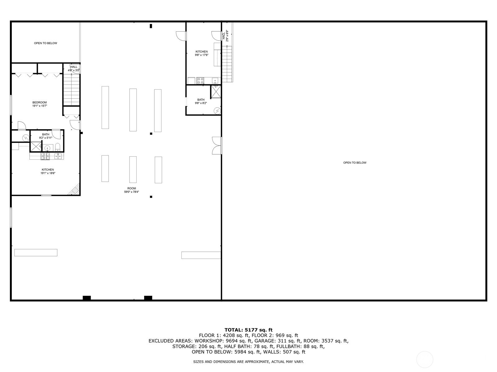
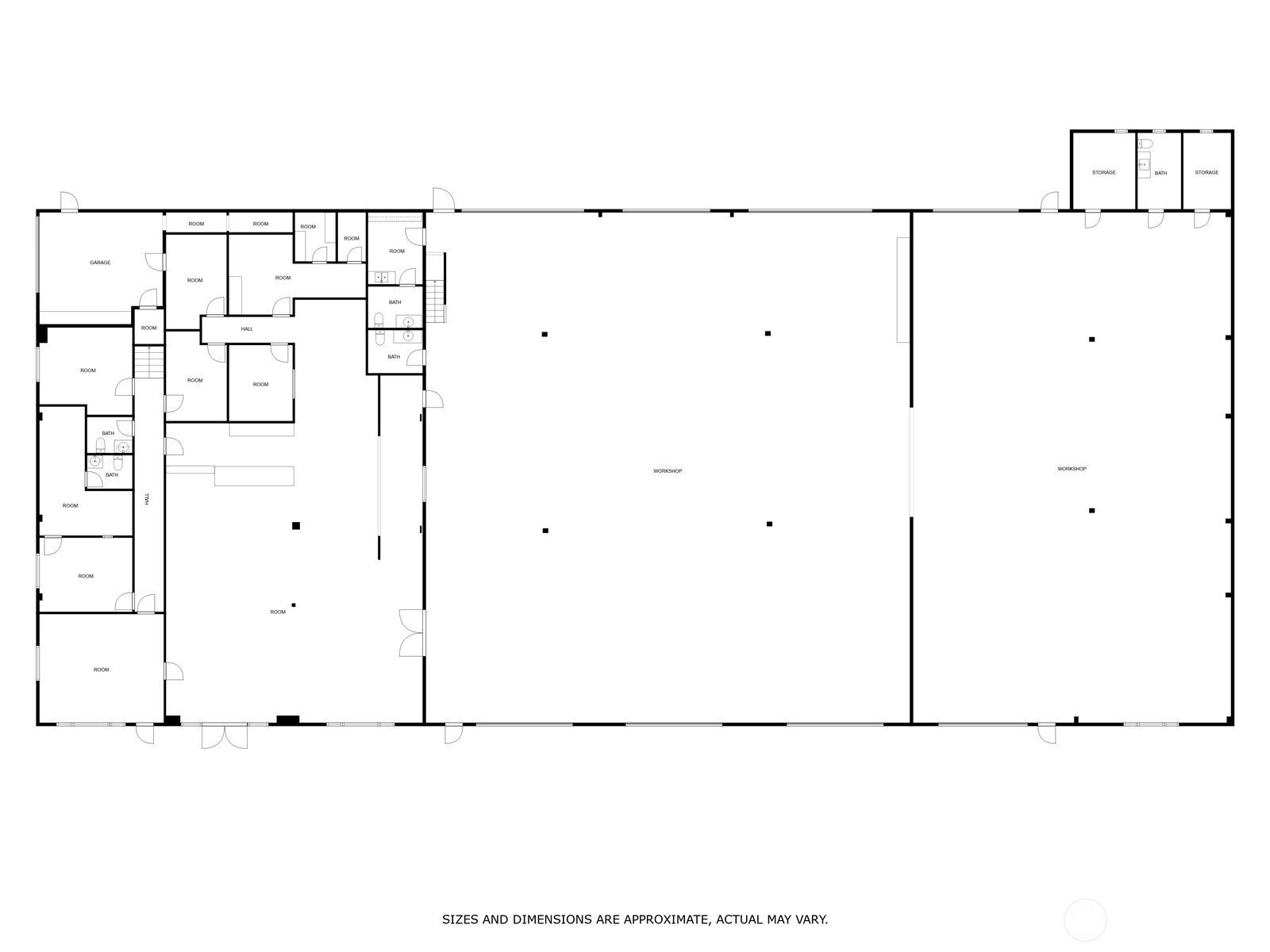
21+ acres with commercial zoning, great I-5 visibility, on city water, with city sewer near-by. 15,000+/- sq foot building with approximately 5,000 sq feet of office space (7 private offices) and a retail / showroom space. There is loft storage above the office / retail area and an apartment in the loft area. The balance is shop area with radiant heat, multiple pull-through service bays and a concrete floor built for heavy equipment. Wide roll-up doors allow for oversized equipment. A second building is approximately 180' by 30' with a tall walls and concrete floors. Property has a large existing programable sign, easily readable from the freeway. All this and within 1/4 mile of one of the largest capacity I-5 interchanges in the state (exit 74). Potential uses are almost unlimited.
Listing Provided Courtesy of Randy Sullivan, CENTURY 21 Lund, Realtors
General Information
NWM2499022
Commercial Industrial
14
DOM
21.42 acres
0
1990
Commerc
Lewis
Commercial Sale
Commercial Industrial
Listing Provided Courtesy of Randy Sullivan, CENTURY 21 Lund, Realtors
Krishna Realty data last checked: Apr 24, 2026 18:37 | Listing last modified Apr 17, 2026 21:00,
Source:
21+ acres with commercial zoning, great I-5 visibility, on city water, with city sewer near-by. 15,000+/- sq foot building with approximately 5,000 sq feet of office space (7 private offices) and a retail / showroom space. There is loft storage above the office / retail area and an apartment in the loft area. The balance is shop area with radiant heat, multiple pull-through service bays and a concrete floor built for heavy equipment. Wide roll-up doors allow for oversized equipment. A second building is approximately 180' by 30' with a tall walls and concrete floors. Property has a large existing programable sign, easily readable from the freeway. All this and within 1/4 mile of one of the largest capacity I-5 interchanges in the state (exit 74). Potential uses are almost unlimited.