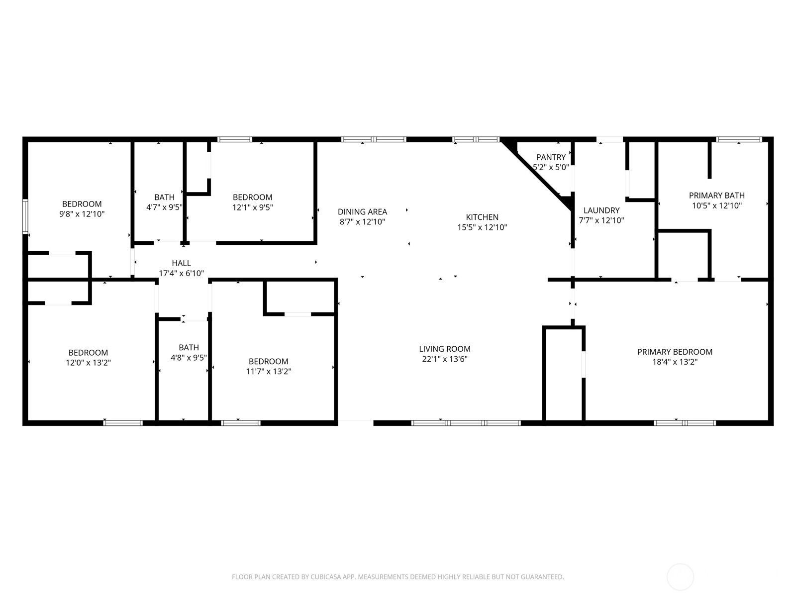
Don't miss this 1917 SQ FT MFH in the great town of Mossyrock. This 5 bedroom, 3 full bathrooms, with open floor plan. The kitchen and island are open to the living area. Large utility room with pantry. The primary bedroom features a double vanity, garden tub and large shower. The entire property is fully fenced and has room for a shop, garden, RV and all your pets . The house is connected to city water, sewer and high speed fiber optics. Close to schools, and city amenities including parks, doctors, stores, restaurants and more. Minutes to the lakes for great recreational offerings. Just 20 miles off I-5 halfway between Portland and Seattle. Home built in 2021.
Listing Provided Courtesy of Mike Stover, Emerald Real Estate Group Inc.
General Information
NWM2510639
Manufactured On Land
1
DOM
5
0.55 acres
3
1917
2021
Lewis
Mossyrock Elem
Mossyrock Mid &
Mossyrock Mid &
Residential
Manufactured On Land
Listing Provided Courtesy of Mike Stover, Emerald Real Estate Group Inc.
Krishna Realty data last checked: Apr 22, 2026 12:40 | Listing last modified Apr 22, 2026 12:00,
Source:
Don't miss this 1917 SQ FT MFH in the great town of Mossyrock. This 5 bedroom, 3 full bathrooms, with open floor plan. The kitchen and island are open to the living area. Large utility room with pantry. The primary bedroom features a double vanity, garden tub and large shower. The entire property is fully fenced and has room for a shop, garden, RV and all your pets . The house is connected to city water, sewer and high speed fiber optics. Close to schools, and city amenities including parks, doctors, stores, restaurants and more. Minutes to the lakes for great recreational offerings. Just 20 miles off I-5 halfway between Portland and Seattle. Home built in 2021.