Junction City, 97448
4 Bed
3 Bath
2012 SqFt
1 DOM
Built: 1978
$975,000
$975000
4 Bed
3 Bath
2012 SqFt
1 DOM
Built: 1978
Principal Broker
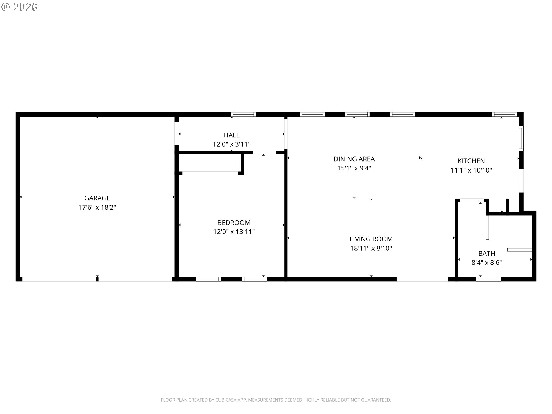
(503) 893-8874Discover the possibilities on this beautiful 9.72-acre property offering space, flexibility and thoughtful updates throughout. The 2,012 sq ft home features a versatile floor plan with a primary bedroom on the main level as well as an additional primary suite upstairs-ideal for multi-generational living or guests. Enjoy 3 full baths with new flooring and cabinets, along with a completely renovated kitchen showcasing quartz countertops and stainless-steel appliances. The home blends modern upgrades with the peaceful setting of acreage living. In addition to the main residence, the property includes two additional dwelling units, providing excellent potential for extended living, rental income, or guest quarters. One ADU features an attached 2-car garage for added convenience. A large red barn completes the property, offering ample storage, hobby space, or livestock potential. With almost 10 acres to spread out and multiple living options, this is a rare opportunity to own a truly versatile country property.
Listing Provided Courtesy of Kimberly Leighty, Berkshire Hathaway HomeServices Real Estate Profes
323743112
SingleFamilyResidence
1 DOM
4
9.72 acres
3
2012
1978
E30 EFU
Lane
0048601
Laurel 4/10
Oaklea 6/10
Junction City 3/10
Residential
SingleFamilyResidence
16-04-09-00-00200 TRS T16R04S09Q00
Listing Provided Courtesy of Kimberly Leighty, Berkshire Hathaway HomeServices Real Estate Profes
Krishna Realty data last checked: Mar 08, 2026 01:39 | Listing last modified Mar 07, 2026 10:22,
Source:
Download our Mobile app
0
1196
816
2012
County
1196
1/Gas
4
3
0
3
Composition
2, Attached, Carport
Stories1,Stories2
Carport,RVAccessPark
2
1978
No
T111Siding, WoodSiding
VinylFrames
Dishwasher, Disposal, FreeStandingRange, Microwave, Pantry, Quartz, StainlessSteelAppliance
AccessoryDwellingUnit, GarageDoorOpener, Laundry, LuxuryVinylPlank, Quartz, SeparateLivingQuartersApartme
AccessoryDwellingUnit, Fenced, Greenhouse, GuestQuarters, Outbuilding, Patio, PublicRoad, RVParking, SecondR
CaregiverQuarters, GarageonMain, MainFloorBedroomBath, OneLevel, Parking, UtilityRoomOnMain
Electricity
ForcedAir, WallHeater
SepticTank
Electricity
Electricity
3857.89
0
Cash,Conventional,VALoan
03-07-2026
No
No
1
1
Cash,Conventional,VALoan
$975,000
$975,000
Mar 07, 2026 10:22
Listing courtesy of Berkshire Hathaway HomeServices Real Estate Profes.
The content relating to real estate for sale on this site comes in part from the IDX program of the RMLS of Portland, Oregon.
Real Estate listings held by brokerage firms other than this firm are marked with the RMLS logo, and
detailed information about these properties include the name of the listing's broker.
Listing content is copyright © 2019 RMLS of Portland, Oregon.
All information provided is deemed reliable but is not guaranteed and should be independently verified.
Krishna Realty data last checked: Mar 08, 2026 01:39 | Listing last modified Mar 07, 2026 10:22.
Some properties which appear for sale on this web site may subsequently have sold or may no longer be available.
Principal Broker
(503) 893-8874Discover the possibilities on this beautiful 9.72-acre property offering space, flexibility and thoughtful updates throughout. The 2,012 sq ft home features a versatile floor plan with a primary bedroom on the main level as well as an additional primary suite upstairs-ideal for multi-generational living or guests. Enjoy 3 full baths with new flooring and cabinets, along with a completely renovated kitchen showcasing quartz countertops and stainless-steel appliances. The home blends modern upgrades with the peaceful setting of acreage living. In addition to the main residence, the property includes two additional dwelling units, providing excellent potential for extended living, rental income, or guest quarters. One ADU features an attached 2-car garage for added convenience. A large red barn completes the property, offering ample storage, hobby space, or livestock potential. With almost 10 acres to spread out and multiple living options, this is a rare opportunity to own a truly versatile country property.