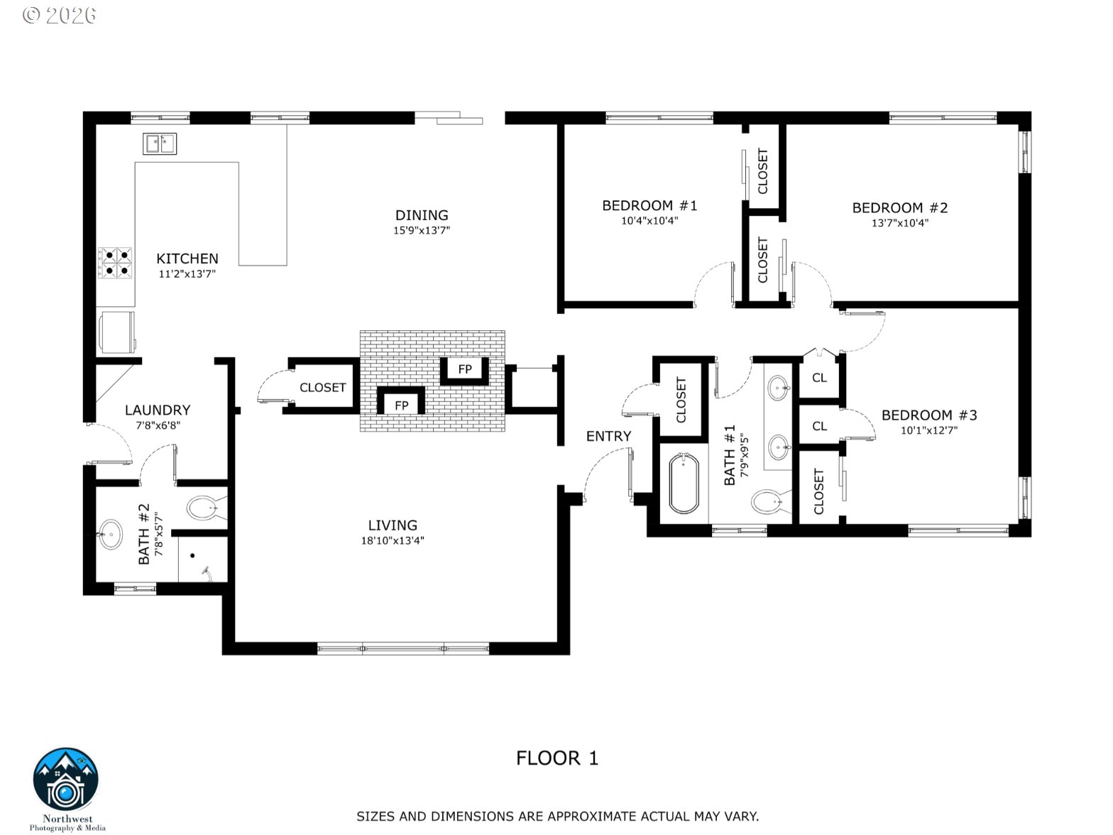
Beautifully maintained home in the highly sought-after Hayden Bridge neighborhood! Situated on a spacious lot, this property offers an easy flow and functional layout. Gorgeous wood flooring and updated vinyl windows enhance the home with warmth and natural light, especially in the inviting living room featuring an oversized picture window. Extensive updates made on the last 10 years. The well-designed floor plan provides excellent separation of space, with three bedrooms tucked away on one end of the home, while the living areas and laundry are conveniently located on the other. The generous kitchen flows seamlessly into the dining area—ideal for everyday living and entertaining. Step outside to a covered patio overlooking a large, fully fenced backyard with endless potential for gardening, play, or outdoor gatherings. Conveniently located near hospitals, shopping, and easy freeway access, this home offers both comfort and convenience. Opportunities in Hayden Bridge are don't last long—don’t miss your chance to make this one yours!
Listing Provided Courtesy of Amy Jackson, Premiere Property Group LLC
General Information
707690814
SingleFamilyResidence
38
DOM
3
10018.8 SqFt
2
1501
1957
Lane
0217784
Page 4/10
Hamlin 2/10
Springfield 2/10
Residential
SingleFamilyResidence
17-03-26-22-03300
Listing Provided Courtesy of Amy Jackson, Premiere Property Group LLC
Krishna Realty data last checked: Apr 30, 2026 14:11 | Listing last modified Apr 27, 2026 10:46,
Source:
Download our Mobile app
Residence Information
0
1501
0
1501
County
1501
1/Gas
3
2
0
2
Composition
2, Attached
Stories1
Driveway
1
1957
No
LapSiding
CrawlSpace
CrawlSpace
DoublePaneWindows,Vi
Features and Utilities
Dishwasher, FreeStandingRange, Microwave, Tile
HighSpeedInternet, Laundry, WoodFloors
Fenced, Patio, Yard
MinimalSteps, OneLevel
MiniSplit
Electricity
Ceiling, MiniSplit
PublicSewer
Electricity
Electricity
Financial
4157.72
0
Conventional,FHA,VALoan
03-20-2026
2000
No
No
Comparable Information
38
41
Conventional,FHA,VALoan
$475,000
$465,000
Apr 27, 2026 10:46
Schools
public Elementary : Page
4/10Ratingspublic Middle : Hamlin
2/10Ratingspublic High : Springfield
2/10Ratings
Beautifully maintained home in the highly sought-after Hayden Bridge neighborhood! Situated on a spacious lot, this property offers an easy flow and functional layout. Gorgeous wood flooring and updated vinyl windows enhance the home with warmth and natural light, especially in the inviting living room featuring an oversized picture window. Extensive updates made on the last 10 years. The well-designed floor plan provides excellent separation of space, with three bedrooms tucked away on one end of the home, while the living areas and laundry are conveniently located on the other. The generous kitchen flows seamlessly into the dining area—ideal for everyday living and entertaining. Step outside to a covered patio overlooking a large, fully fenced backyard with endless potential for gardening, play, or outdoor gatherings. Conveniently located near hospitals, shopping, and easy freeway access, this home offers both comfort and convenience. Opportunities in Hayden Bridge are don't last long—don’t miss your chance to make this one yours!