Springfield, 97478
3 Bed
2 Bath
1782 SqFt
1 DOM
Built: 1995
$385,000
$385000
3 Bed
2 Bath
1782 SqFt
1 DOM
Built: 1995
Principal Broker
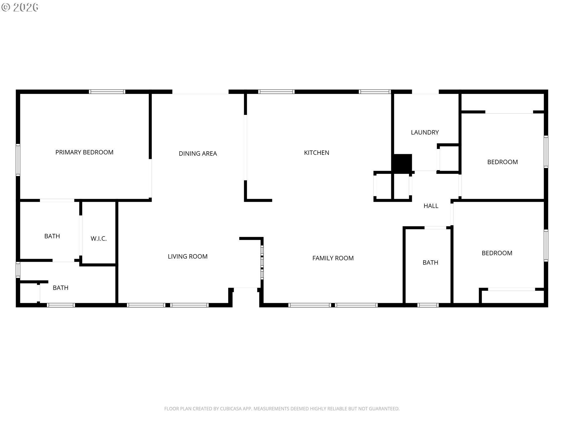
(503) 893-8874Recently remodeled and move-in ready, this 3-bedroom, 2-bath, 1,782 sq. ft. 1995 Skyline manufactured home sits on a spacious corner lot in the Thurston area of Springfield. Light-filled and inviting, the home features fresh interior paint, new flooring, and an open-concept layout designed for comfortable living and entertaining.Enjoy both a living room and a family room, along with a dedicated dining area. The generous primary suite offers a private retreat with a walk-in closet, double sinks, and an en-suite bath.The updated kitchen shines with quartz countertops, stainless steel appliances, an island, a pantry, and a skylight that brings in natural light.Step outside to a fully fenced backyard complete with an expansive 8' x 38' covered deck—perfect for year-round outdoor enjoyment. Additional highlights include a 2-car carport, attached 13' x 20' storage shed, and a 6' x 14' equipment shed, providing ample storage.Comfort and efficiency are covered with a heat pump, vinyl windows, and a durable metal roof.
Listing Provided Courtesy of Randy Ancell, Peloton Real Estate
145102725
ManufacturedHomeonRealProperty
1 DOM
3
8276.4 SqFt
2
1782
1995
Lane
1121365
Mt Vernon 2/10
Agnes Stewart 2/10
Thurston 9/10
Residential
ManufacturedHomeonRealProperty
1802042204100
Listing Provided Courtesy of Randy Ancell, Peloton Real Estate
Krishna Realty data last checked: Mar 23, 2026 03:52 | Listing last modified Mar 22, 2026 19:12,
Source:
Download our Mobile app
0
1782
0
1782
RLID
1782
3
2
0
2
Metal
2, Carport
Stories1,DoubleWideManufactured
Carport,Driveway
1
1995
No
VinylSiding
CrawlSpace
CrawlSpace
Block
DoublePaneWindows,Vi
Dishwasher, Disposal, FreeStandingRange, Island, Pantry, Quartz, RangeHood, StainlessSteelAppliance
CeilingFan, HighSpeedInternet, LuxuryVinylPlank, Quartz, Skylight, VaultedCeiling, WalltoWallCarpet
CoveredDeck, Fenced, Porch, PublicRoad, ToolShed, Yard
HeatPump
Electricity
HeatPump
PublicSewer
Electricity
Electricity
2659.19
0
Cash,Conventional,FHA,VALoan
03-22-2026
No
No
1
1
Cash,Conventional,FHA,VALoan
$385,000
$385,000
Mar 22, 2026 19:12
Listing courtesy of Peloton Real Estate.
The content relating to real estate for sale on this site comes in part from the IDX program of the RMLS of Portland, Oregon.
Real Estate listings held by brokerage firms other than this firm are marked with the RMLS logo, and
detailed information about these properties include the name of the listing's broker.
Listing content is copyright © 2019 RMLS of Portland, Oregon.
All information provided is deemed reliable but is not guaranteed and should be independently verified.
Krishna Realty data last checked: Mar 23, 2026 03:52 | Listing last modified Mar 22, 2026 19:12.
Some properties which appear for sale on this web site may subsequently have sold or may no longer be available.
Principal Broker
(503) 893-8874Recently remodeled and move-in ready, this 3-bedroom, 2-bath, 1,782 sq. ft. 1995 Skyline manufactured home sits on a spacious corner lot in the Thurston area of Springfield. Light-filled and inviting, the home features fresh interior paint, new flooring, and an open-concept layout designed for comfortable living and entertaining.Enjoy both a living room and a family room, along with a dedicated dining area. The generous primary suite offers a private retreat with a walk-in closet, double sinks, and an en-suite bath.The updated kitchen shines with quartz countertops, stainless steel appliances, an island, a pantry, and a skylight that brings in natural light.Step outside to a fully fenced backyard complete with an expansive 8' x 38' covered deck—perfect for year-round outdoor enjoyment. Additional highlights include a 2-car carport, attached 13' x 20' storage shed, and a 6' x 14' equipment shed, providing ample storage.Comfort and efficiency are covered with a heat pump, vinyl windows, and a durable metal roof.