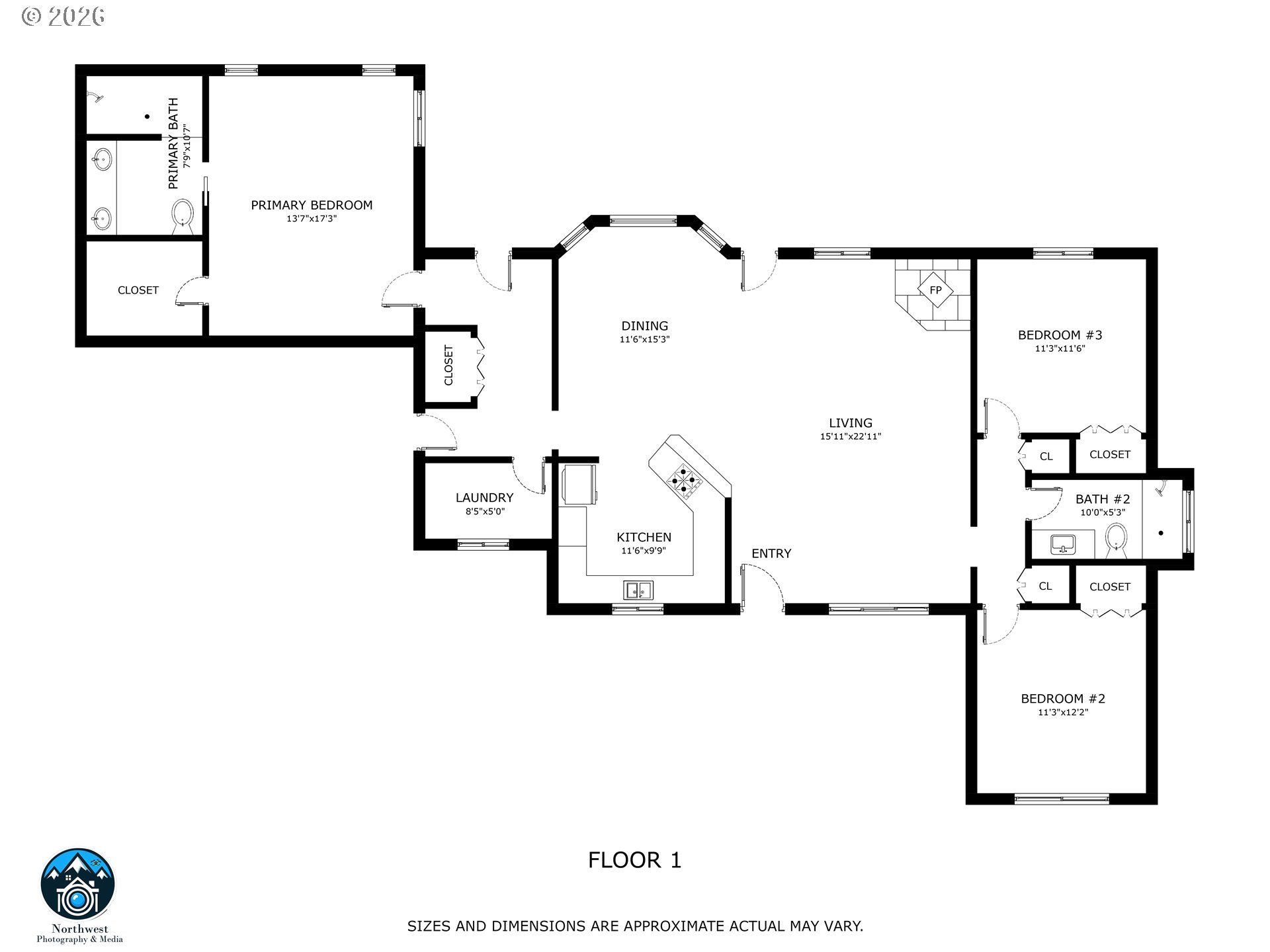
Only 15 minutes from Springfield, welcome to McKenzie Country Living—where craftsmanship, comfort, and nature come together in perfect harmony on 1.85 acres of land. This thoughtfully designed, custom-built home radiates pride of ownership from every angle. The vaulted ceilings, the open layout feels airy and expansive, with effortless living and entertaining. The heart of the home is the cheerful kitchen and a picture window overlooking the serene property. The lot has two wells, one for the home and one for irrigation. The dining nook glows with south facing sunlight from the bay window, while the living room’s hardwood Floors and wood stove create the warmest of welcomes. Step outside to relax on the oversized back patio or enjoy tranquil mornings on the covered front porch. Explore the lush, manicured grounds complete with mature trees, a garden shed, and sprinklers that keep everything vibrant. The 2019 built immaculate 30' x 48' detached 4 car or truck-bay shop is a rare treasure—perfect for the hobbyist, collector, or anyone craving versatile space with an office. A spacious primary suite, two bedrooms, thoughtful storage, and a soothing neutral palette complete this delightful single level home. A true Walterville gem for comfort, beauty, and a lifestyle that feels like home the moment you arrive. ODOT maintains the highway in snowy weather ensuring your commute to work. Internet is provided by Spectrum. 2020 New appliances, 2021 New HVAC & Water Filter system, 2023 New carpet, 2024 Exterior painted, 2025 Interior painted.
Listing Provided Courtesy of Jim Arscott, Hybrid Real Estate
General Information
153655706
SingleFamilyResidence
1
DOM
3
1.85 acres
2
1684
2002
RR2
Lane
1671377
Walterville
Thurston
Thurston
Residential
SingleFamilyResidence
17-15-01-10-01102
Listing Provided Courtesy of Jim Arscott, Hybrid Real Estate
Krishna Realty data last checked: Feb 21, 2026 20:27 | Listing last modified Jan 31, 2026 19:28,
Source:
Only 15 minutes from Springfield, welcome to McKenzie Country Living—where craftsmanship, comfort, and nature come together in perfect harmony on 1.85 acres of land. This thoughtfully designed, custom-built home radiates pride of ownership from every angle. The vaulted ceilings, the open layout feels airy and expansive, with effortless living and entertaining. The heart of the home is the cheerful kitchen and a picture window overlooking the serene property. The lot has two wells, one for the home and one for irrigation. The dining nook glows with south facing sunlight from the bay window, while the living room’s hardwood Floors and wood stove create the warmest of welcomes. Step outside to relax on the oversized back patio or enjoy tranquil mornings on the covered front porch. Explore the lush, manicured grounds complete with mature trees, a garden shed, and sprinklers that keep everything vibrant. The 2019 built immaculate 30' x 48' detached 4 car or truck-bay shop is a rare treasure—perfect for the hobbyist, collector, or anyone craving versatile space with an office. A spacious primary suite, two bedrooms, thoughtful storage, and a soothing neutral palette complete this delightful single level home. A true Walterville gem for comfort, beauty, and a lifestyle that feels like home the moment you arrive. ODOT maintains the highway in snowy weather ensuring your commute to work. Internet is provided by Spectrum. 2020 New appliances, 2021 New HVAC & Water Filter system, 2023 New carpet, 2024 Exterior painted, 2025 Interior painted.