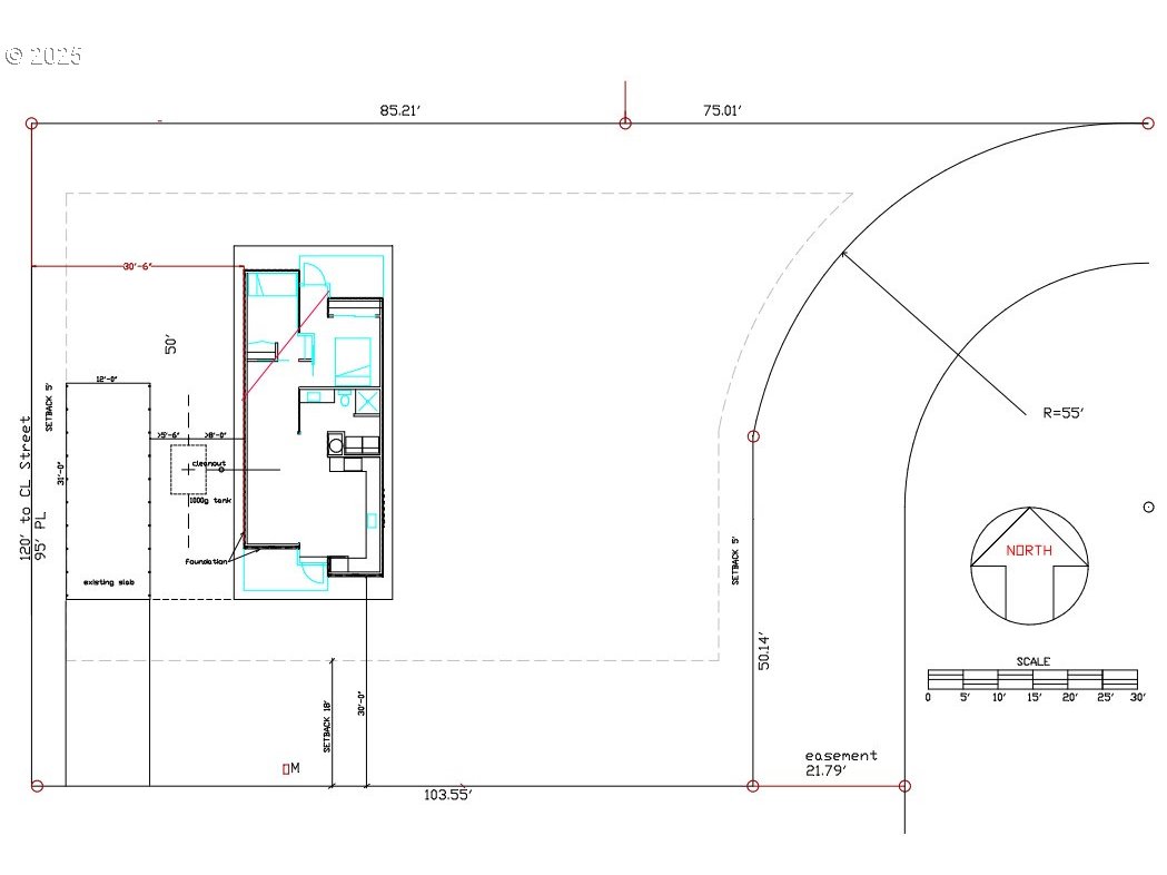
Completely FURNISHED, site-built residential shipping container home between Eugene and Springfield (in Springfield's UGB). It was completed in 2017 and features 2 bedrooms and one bath/laundry. Open plan design with many windows and skylight. Since the home has been a very popular short-term rental, furnishings will expedite the ‘ready-to-rent’ process for prospective investors. Buy before the redevelopment of Glenwood takes off and prices escalate. ? Built in 2017. ? Approximately 800 sf. ? Perimeter concrete foundation. ? Permitted and inspected by Springfield as a conventional SFH. ? The lot is flat and 1/4 acre (double lot), or 10,705 sf on a dead-end street. Room for additional development. ? Metal lifetime roof. ? Conveniently located near I-5 access, downtown Springfield, transit, UO, etc. ? Concrete slab is 12’ x 31’, RV hook-ups, and sale comes with steel roof trusses for that size structure. ? On a brand new (Sept 2025) private septic system. At the heart of the Glenwood Refinement Plan, major infrastructure are in place. Access will be improved per Springfield city staff.
Listing Provided Courtesy of Jonathan Minerick, homecoin.com
General Information
171165232
SingleFamilyResidence
171
DOM
2
10454.4 SqFt
1
800
2012
Lane
1764446
Camas Ridge 5/10
Roosevelt
South Eugene
Residential
SingleFamilyResidence
TL 03001
Listing Provided Courtesy of Jonathan Minerick, homecoin.com
Krishna Realty data last checked: Oct 18, 2025 11:40 | Listing last modified Sep 15, 2025 07:47,
Source:
Completely FURNISHED, site-built residential shipping container home between Eugene and Springfield (in Springfield's UGB). It was completed in 2017 and features 2 bedrooms and one bath/laundry. Open plan design with many windows and skylight. Since the home has been a very popular short-term rental, furnishings will expedite the ‘ready-to-rent’ process for prospective investors. Buy before the redevelopment of Glenwood takes off and prices escalate. ? Built in 2017. ? Approximately 800 sf. ? Perimeter concrete foundation. ? Permitted and inspected by Springfield as a conventional SFH. ? The lot is flat and 1/4 acre (double lot), or 10,705 sf on a dead-end street. Room for additional development. ? Metal lifetime roof. ? Conveniently located near I-5 access, downtown Springfield, transit, UO, etc. ? Concrete slab is 12’ x 31’, RV hook-ups, and sale comes with steel roof trusses for that size structure. ? On a brand new (Sept 2025) private septic system. At the heart of the Glenwood Refinement Plan, major infrastructure are in place. Access will be improved per Springfield city staff.