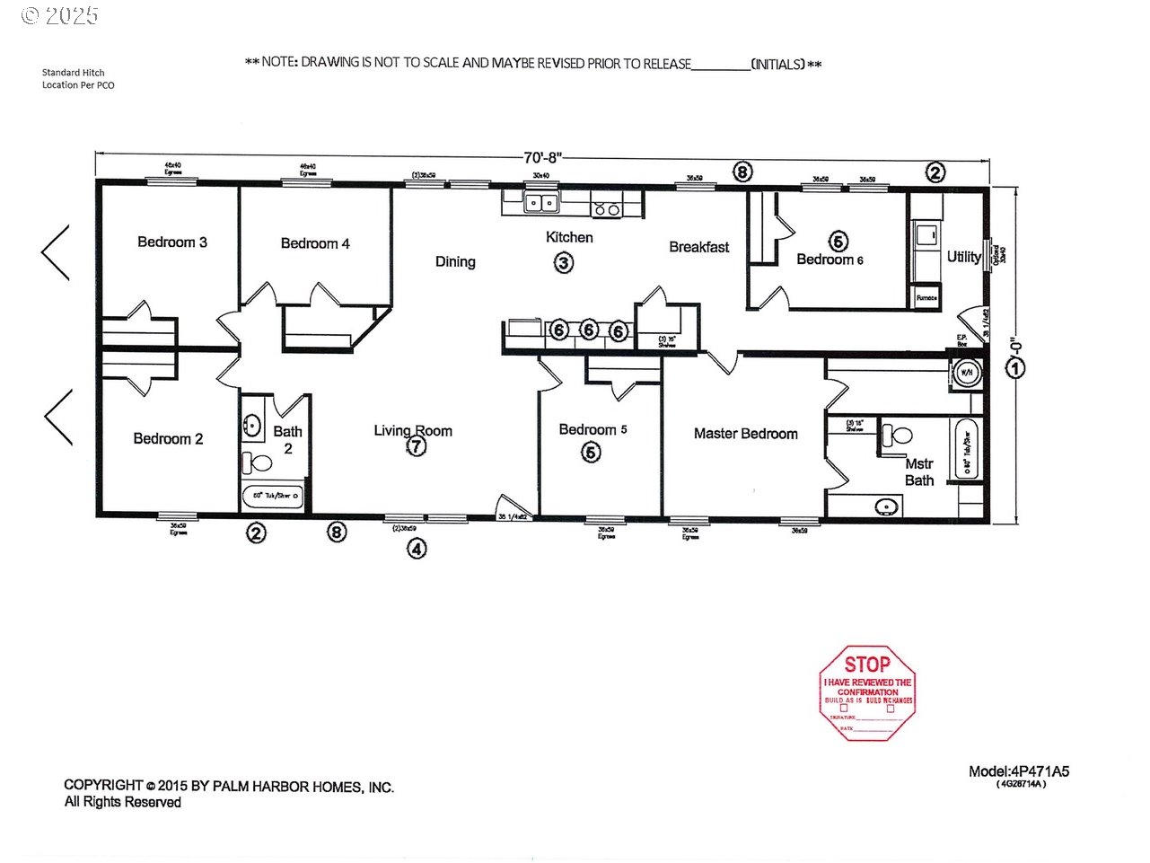
This beautiful lot comes with house plans and building permits for a 6-bedroom, 2 bath manufactured duplex. With everything ready to go for you. The home could be built in as little as 12 weeks according to James Frazier, housing consultant with Homes Direct. This property is close to local amenities, schools and beautiful parks. Everything is ready to go with the city and seller concessions are available for utility hook ups. Seller is willing to finance with a minimum of 50% down. All that is missing is your vision. Reach out today for more info. Buyer to do all due diligence.
Listing Provided Courtesy of Maria Lomelli, InEugene Real Estate, LLC
General Information
526078613
SingleFamilyResidence
177
DOM
9147.6 SqFt
R1
Lane
1914686
Malabon 3/10
Cascade 7/10
Willamette 3/10
Land
SingleFamilyResidence
17-04-22-21-02402
Listing Provided Courtesy of Maria Lomelli, InEugene Real Estate, LLC
Krishna Realty data last checked: Jan 01, 2026 19:52 | Listing last modified Dec 31, 2025 10:59,
Source:
Download our Mobile app
Residence Information
No
Features and Utilities
Financial
771.87
0
Cash,Conventional,FHA,VALoan
07-07-2025
No
No
Comparable Information
177
178
Cash,Conventional,FHA,VALoan
$165,000
$135,000
Dec 31, 2025 10:59
Schools
public Elementary : Malabon
3/10Ratingspublic Middle : Cascade
7/10Ratingspublic High : Willamette
3/10Ratings
This beautiful lot comes with house plans and building permits for a 6-bedroom, 2 bath manufactured duplex. With everything ready to go for you. The home could be built in as little as 12 weeks according to James Frazier, housing consultant with Homes Direct. This property is close to local amenities, schools and beautiful parks. Everything is ready to go with the city and seller concessions are available for utility hook ups. Seller is willing to finance with a minimum of 50% down. All that is missing is your vision. Reach out today for more info. Buyer to do all due diligence.