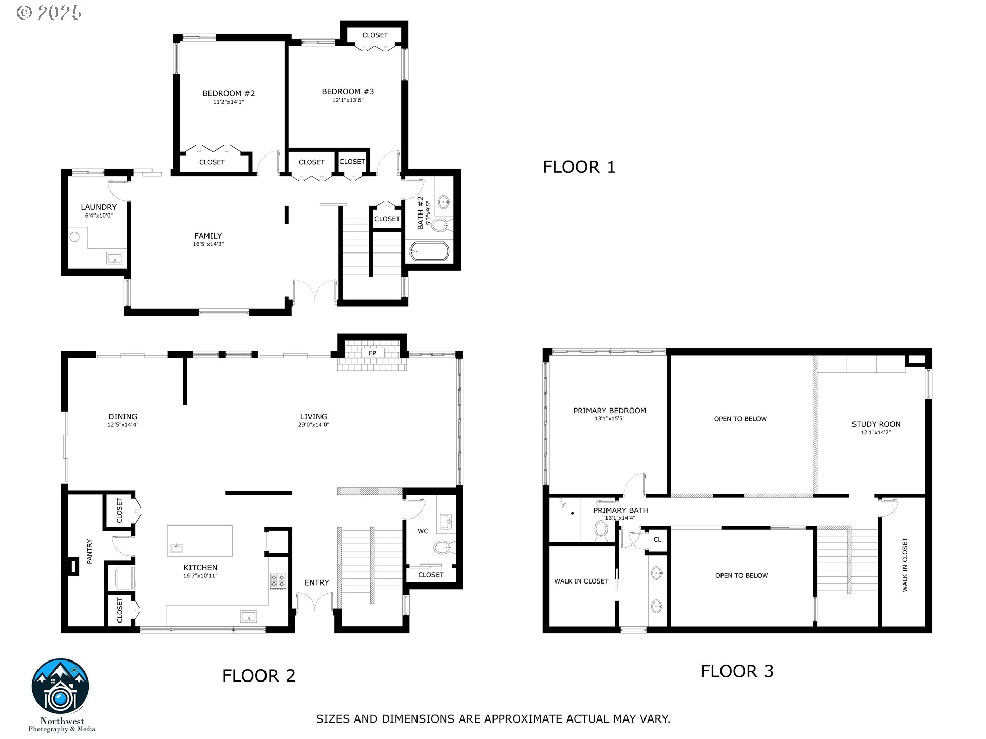
Architect-Designed Custom Home located in the vibrant Shasta loop neighborhood, this home is the perfect balance of elegance, comfort, and natural beauty. This stunning home combines architecture with serene, forested surroundings. Featuring soaring ceilings, dynamic windows, skylights, and multiple fireplaces, this residence offers warmth, natural light, and timeless design. The main level welcomes you with a grand entry, hardwood floors, and an open concept. The kitchen includes hardwood floors, a breakfast bar, oak cabinetry, large pantry and skylights that fill the space with light. A loft-style office and hallway overlook the living room, adding architectural depth and visual appeal. The primary suite has plenty of light and features a walk-in closet, while the lower level includes two additional bedrooms and a spacious family room. Enjoy outdoor living on the multi-level hardwood decks, perfect for hosting or simply relaxing in your private, tree-lined retreat.Located in the vibrant Spring Boulevard neighborhood, this home is the perfect balance of elegance, comfort, and natural beauty.
Listing Provided Courtesy of Kim Arscott, Hybrid Real Estate
General Information
515493969
SingleFamilyResidence
40
DOM
3
0.29 acres
2.5
2556
1975
R-1
Lane
0657716
Camas Ridge
Roosevelt 6/10
South Eugene
Residential
SingleFamilyResidence
18-03-08-44-00700
Listing Provided Courtesy of Kim Arscott, Hybrid Real Estate
Krishna Realty data last checked: Nov 27, 2025 08:18 | Listing last modified Nov 22, 2025 13:01,
Source:
Download our Mobile app
Residence Information
672
1100
784
2556
RLID
1772
2/Gas
3
2
1
2.5
Flat,Membrane
2, Attached
Stories2,MidCenturyModern
Driveway
3
1975
No
Plywood, WoodSiding
CrawlSpace,Daylight,Finished
CrawlSpace,Daylight,
ConcretePerimeter
VinylFrames
Features and Utilities
CeilingFan, Fireplace, HardwoodFloors
BuiltinOven, BuiltinRefrigerator, Cooktop, Dishwasher, Disposal, FreeStandingRefrigerator, Island, Microwav
Architect-Designed Custom Home located in the vibrant Shasta loop neighborhood, this home is the perfect balance of elegance, comfort, and natural beauty. This stunning home combines architecture with serene, forested surroundings. Featuring soaring ceilings, dynamic windows, skylights, and multiple fireplaces, this residence offers warmth, natural light, and timeless design. The main level welcomes you with a grand entry, hardwood floors, and an open concept. The kitchen includes hardwood floors, a breakfast bar, oak cabinetry, large pantry and skylights that fill the space with light. A loft-style office and hallway overlook the living room, adding architectural depth and visual appeal. The primary suite has plenty of light and features a walk-in closet, while the lower level includes two additional bedrooms and a spacious family room. Enjoy outdoor living on the multi-level hardwood decks, perfect for hosting or simply relaxing in your private, tree-lined retreat.Located in the vibrant Spring Boulevard neighborhood, this home is the perfect balance of elegance, comfort, and natural beauty.