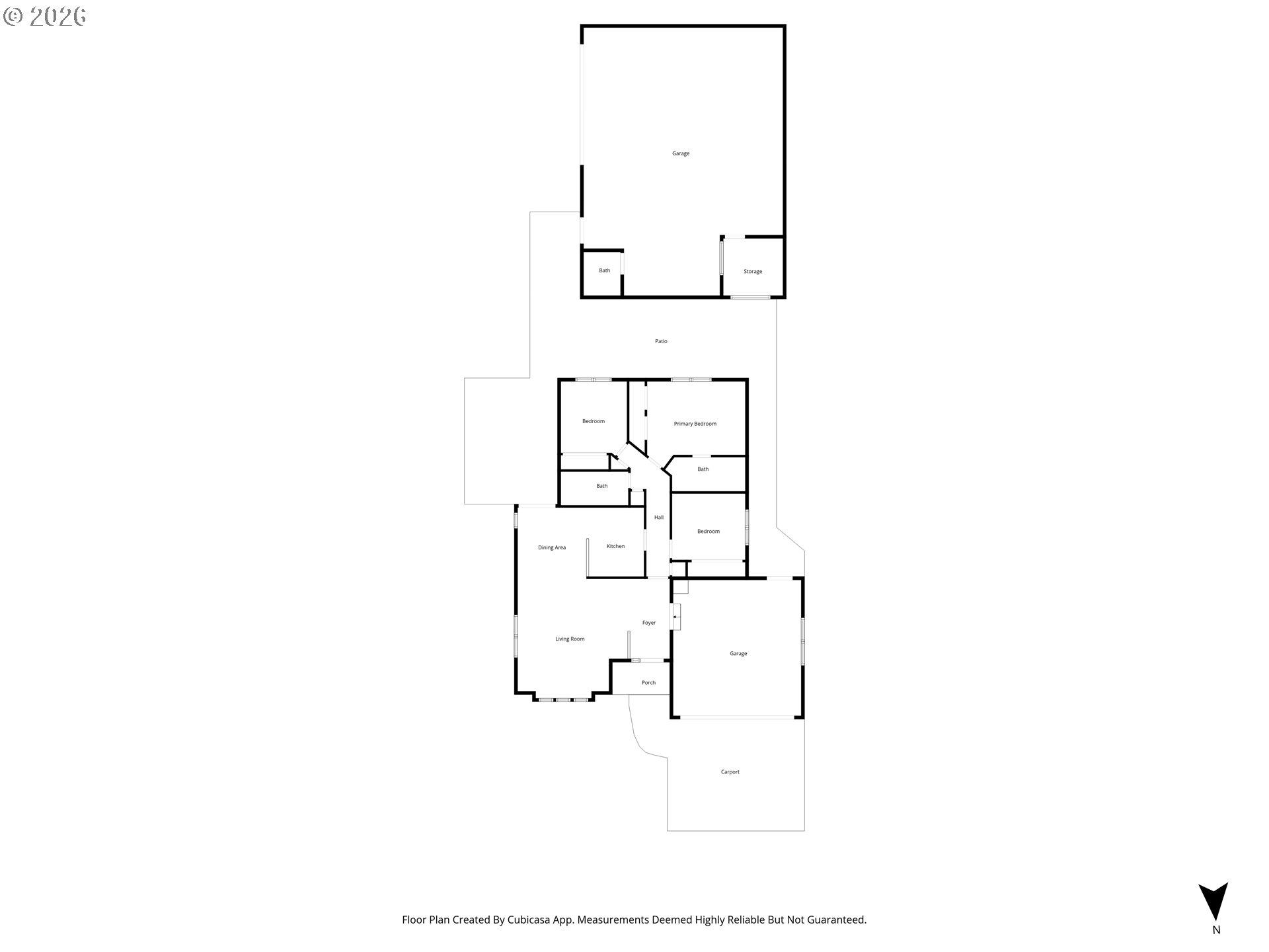
Set on over 2 private acres on a quiet street seconds away from the golf course, park, and Munsel Lake boat ramp, this 3-bedroom, 2-bath home offers space, privacy, and versatility in a peaceful, usable setting.The 1,232 sq ft home features a bright, open layout with large windows that bring in natural light and views of the surrounding greenery. New flooring throughout the main living areas adds warmth and continuity, while the open living and dining spaces flow comfortably for everyday living or entertaining.The kitchen is thoughtfully laid out with generous cabinet and counter space, a functional peninsula for seating or prep, and clear sightlines to the dining and living areas, making it ideal for both daily routines and hosting. Its clean, classic finishes pair well with the home’s open feel and natural light.A 2-car attached garage provides everyday convenience, while the property truly shines with its separate shop, complete with office space and a dedicated toilet room; ideal for hobbies, storage, or working from home. A walkway from the back door leads directly to the shop, creating an easy and intentional connection between the home and workspace.Outside, enjoy a large backyard, ample parking, and room for RVs, boats, or extra vehicles, all surrounded by privacy. With nearby access to outdoor recreation and town amenities, this property offers the perfect balance of seclusion and convenience.
Listing Provided Courtesy of Kelsey Peterson, TR Hunter Real Estate
General Information
614326008
SingleFamilyResidence
42
DOM
3
2.83 acres
2
1232
1991
LR
Lane
0983286
Siuslaw 3/10
Siuslaw 3/10
Siuslaw 3/10
Residential
SingleFamilyResidence
18-12-24-23-01300
Listing Provided Courtesy of Kelsey Peterson, TR Hunter Real Estate
Krishna Realty data last checked: Mar 17, 2026 07:23 | Listing last modified Mar 16, 2026 11:54,
Source:
Set on over 2 private acres on a quiet street seconds away from the golf course, park, and Munsel Lake boat ramp, this 3-bedroom, 2-bath home offers space, privacy, and versatility in a peaceful, usable setting.The 1,232 sq ft home features a bright, open layout with large windows that bring in natural light and views of the surrounding greenery. New flooring throughout the main living areas adds warmth and continuity, while the open living and dining spaces flow comfortably for everyday living or entertaining.The kitchen is thoughtfully laid out with generous cabinet and counter space, a functional peninsula for seating or prep, and clear sightlines to the dining and living areas, making it ideal for both daily routines and hosting. Its clean, classic finishes pair well with the home’s open feel and natural light.A 2-car attached garage provides everyday convenience, while the property truly shines with its separate shop, complete with office space and a dedicated toilet room; ideal for hobbies, storage, or working from home. A walkway from the back door leads directly to the shop, creating an easy and intentional connection between the home and workspace.Outside, enjoy a large backyard, ample parking, and room for RVs, boats, or extra vehicles, all surrounded by privacy. With nearby access to outdoor recreation and town amenities, this property offers the perfect balance of seclusion and convenience.