Springfield, 97477
4 Bed
2 Bath
2046 SqFt
1 DOM
Built: 1952
$610,000
$610000
4 Bed
2 Bath
2046 SqFt
1 DOM
Built: 1952
Principal Broker
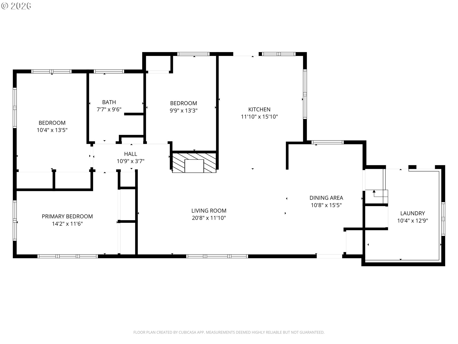
(503) 893-8874Welcome to this versatile and thoughtfully updated property offering a total of 2,046 square feet of living space on a spacious 0.37-acre lot. The main home features 1,446 square feet with 2 bedrooms, 1 bathroom, plus a flexible office with its own exterior entrance—ideal for a home business, guest space, or private workspace. In addition, the property includes a separate 600 square foot studio complete with 2 bedrooms, 1 bathroom, a kitchen, living room, and its own laundry room—perfect for multi-generational living, extended stays, guests, or potential rental income. The main home has been extensively updated with quality finishes, including hickory cabinets, butcher block countertops, luxury vinyl plank flooring, new sheetrock, fresh paint, vinyl windows, light fixtures, trim, and new interior and exterior doors. Major system upgrades provide peace of mind, with updated wiring, a new electrical panel, updated plumbing, R50 insulation, a new drainfield, and septic tank. Stay comfortable year-round with ductless heating/cooling and cadet heaters. Enjoy the privacy and usability of the large covered patio, newly fenced backyard, with plenty of room for gardening, entertaining, or additional outdoor projects. A rare opportunity offering flexibility, functionality, and added living space—don’t miss it!
Listing Provided Courtesy of Stefani Myers, Hybrid Real Estate
111042984
1 DOM
4
0.37 acres
2
2046
1952
R1
Lane
0191963
Guy Lee 4/10
Hamlin 2/10
Springfield 2/10
MultiFamily
17-03-22-41-05301
Listing Provided Courtesy of Stefani Myers, Hybrid Real Estate
Krishna Realty data last checked: Apr 29, 2026 01:00 | Listing last modified Apr 28, 2026 09:55,
Source:
Download our Mobile app
2046
4
2
Metal
Driveway
1952
No
VinylSiding
MiniSplit
Gas
Ductless, WallHeater
SepticTank
Gas
Electricity, Gas
3983.55
Electricity,Gas,Heat,Sewer,TrashCollection,Water
Cash,Conventional,FHA,VALoan
04-28-2026
No
No
1
1
Cash,Conventional,FHA,VALoan
$610,000
$610,000
Apr 28, 2026 09:55
Listing courtesy of Hybrid Real Estate.
The content relating to real estate for sale on this site comes in part from the IDX program of the RMLS of Portland, Oregon.
Real Estate listings held by brokerage firms other than this firm are marked with the RMLS logo, and
detailed information about these properties include the name of the listing's broker.
Listing content is copyright © 2019 RMLS of Portland, Oregon.
All information provided is deemed reliable but is not guaranteed and should be independently verified.
Krishna Realty data last checked: Apr 29, 2026 01:00 | Listing last modified Apr 28, 2026 09:55.
Some properties which appear for sale on this web site may subsequently have sold or may no longer be available.
Principal Broker
(503) 893-8874Welcome to this versatile and thoughtfully updated property offering a total of 2,046 square feet of living space on a spacious 0.37-acre lot. The main home features 1,446 square feet with 2 bedrooms, 1 bathroom, plus a flexible office with its own exterior entrance—ideal for a home business, guest space, or private workspace. In addition, the property includes a separate 600 square foot studio complete with 2 bedrooms, 1 bathroom, a kitchen, living room, and its own laundry room—perfect for multi-generational living, extended stays, guests, or potential rental income. The main home has been extensively updated with quality finishes, including hickory cabinets, butcher block countertops, luxury vinyl plank flooring, new sheetrock, fresh paint, vinyl windows, light fixtures, trim, and new interior and exterior doors. Major system upgrades provide peace of mind, with updated wiring, a new electrical panel, updated plumbing, R50 insulation, a new drainfield, and septic tank. Stay comfortable year-round with ductless heating/cooling and cadet heaters. Enjoy the privacy and usability of the large covered patio, newly fenced backyard, with plenty of room for gardening, entertaining, or additional outdoor projects. A rare opportunity offering flexibility, functionality, and added living space—don’t miss it!
Download our Mobile app