White Salmon, 98672
3 Bed
3.5 Bath
3407 SqFt
1 DOM
Built: 2016
$1,495,000
$1495000
3 Bed
3.5 Bath
3407 SqFt
1 DOM
Built: 2016
Principal Broker
(503) 893-8874No detail spared in this amazing home. Located in one of White Salmon's finest neighborhoods. Only 11 5 acre +/- home sites. This home is a mere 2.5 miles from downtown, sited on 5.55 acres with views and privacy in abundance. Views of Mt Hood, Mt Defiance and everything in between. Main floor living with the Primary bedroom plus two other bedrooms on that level. One bedroom currently in use as an office. Quality finish materials throughout. Many of the homes systems are controlled by a Control 4 system utilizing an app on your phone. See the attached document regarding the installed Control 4 system. Contact David Oaks dba Gorge Audio/Video at (541) 399-9259 to explain the system or tailor the system to your needs after a purchase. Snow removal is done, when needed, by a community resident. Extremely affordable clearing of Jewett Creek Loop. Homes like this do not exist in large supply and do not see the market frequently. Reach out to me, or the broker of your choice, to experience this beautiful home for yourself. One of a kind!
Listing Provided Courtesy of Carl McNew, Windermere CRG
117368153
SingleFamilyResidence
1 DOM
3
5.55 acres
3.5
3407
2016
GR-5
Klickitat
03110758000300
Whitson
Henkle
Columbia
Residential
SingleFamilyResidence
LOT 3 SP 2006-68 IN SE 7-3-11
Listing Provided Courtesy of Carl McNew, Windermere CRG
Krishna Realty data last checked: Apr 12, 2026 03:26 | Listing last modified Apr 11, 2026 16:00,
Source:
Download our Mobile app
0
2519
888
3407
Appraisal
2519
1/Gas
3
3
1
3.5
Composition
2, Attached, ExtraDeep
NWContemporary
Driveway,EVReady
2
2016
No
CementSiding
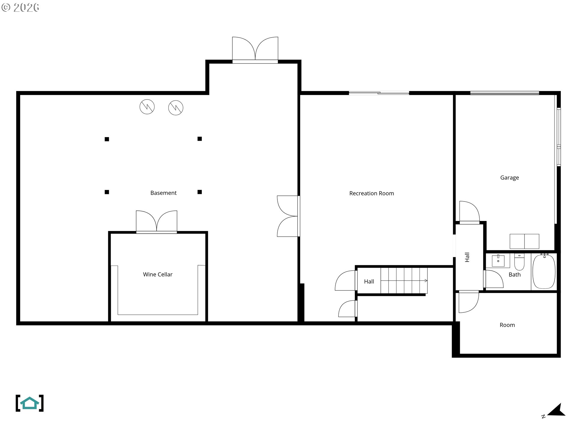
FullBasement,PartiallyFinished
FullBasement,Partial
ConcretePerimeter
RoadMaintenance
HeatPump, MiniSplit
Electricity
ForcedAir, MiniSplit, WallHeater
PressureDistributionSystem, SepticTank
Electricity
Electricity, Propane
10950.7
0
Cash,Conventional
04-11-2026
No
No
1
1
Cash,Conventional
$1,495,000
$1,495,000
Apr 11, 2026 16:00
Listing courtesy of Windermere CRG.
The content relating to real estate for sale on this site comes in part from the IDX program of the RMLS of Portland, Oregon.
Real Estate listings held by brokerage firms other than this firm are marked with the RMLS logo, and
detailed information about these properties include the name of the listing's broker.
Listing content is copyright © 2019 RMLS of Portland, Oregon.
All information provided is deemed reliable but is not guaranteed and should be independently verified.
Krishna Realty data last checked: Apr 12, 2026 03:26 | Listing last modified Apr 11, 2026 16:00.
Some properties which appear for sale on this web site may subsequently have sold or may no longer be available.
Principal Broker
(503) 893-8874No detail spared in this amazing home. Located in one of White Salmon's finest neighborhoods. Only 11 5 acre +/- home sites. This home is a mere 2.5 miles from downtown, sited on 5.55 acres with views and privacy in abundance. Views of Mt Hood, Mt Defiance and everything in between. Main floor living with the Primary bedroom plus two other bedrooms on that level. One bedroom currently in use as an office. Quality finish materials throughout. Many of the homes systems are controlled by a Control 4 system utilizing an app on your phone. See the attached document regarding the installed Control 4 system. Contact David Oaks dba Gorge Audio/Video at (541) 399-9259 to explain the system or tailor the system to your needs after a purchase. Snow removal is done, when needed, by a community resident. Extremely affordable clearing of Jewett Creek Loop. Homes like this do not exist in large supply and do not see the market frequently. Reach out to me, or the broker of your choice, to experience this beautiful home for yourself. One of a kind!
Download our Mobile app