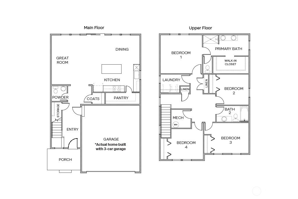
**3-car garage** Welcome to DR Horton Mallard Meadows. The Hawthorne, a fantastic floor plan with 3-car garage on partially fenced back yard. Quartz countertops in gourmet kitchen with full height tile backsplash and stainless-steel appliances! Primary suite has ample room for King size bed and nightstands. Walk in bath has tile shower with shampoo cutout, quartz counters with undermount sink and backsplash generous walk-in closet. City water & sewer. 6000 square foot home site, front yard dry scape with drip system. Every home has AC. City water city sewer. Community Park! Close to town and schools. Buyers must register their broker on first visit, including open houses.
Listing Provided Courtesy of Curtis Goodwin, D.R. Horton
General Information
NWM2463030
Single Family Residence
18
DOM
4
5998.21 SqFt
1.5
2050
2025
Kittitas
Buyer To Verify
Morgan Mid
Ellensburg High
Residential
Single Family Residence
Listing Provided Courtesy of Curtis Goodwin, D.R. Horton
Krishna Realty data last checked: Jan 09, 2026 05:28 | Listing last modified Jan 06, 2026 18:39,
Source:
**3-car garage** Welcome to DR Horton Mallard Meadows. The Hawthorne, a fantastic floor plan with 3-car garage on partially fenced back yard. Quartz countertops in gourmet kitchen with full height tile backsplash and stainless-steel appliances! Primary suite has ample room for King size bed and nightstands. Walk in bath has tile shower with shampoo cutout, quartz counters with undermount sink and backsplash generous walk-in closet. City water & sewer. 6000 square foot home site, front yard dry scape with drip system. Every home has AC. City water city sewer. Community Park! Close to town and schools. Buyers must register their broker on first visit, including open houses.