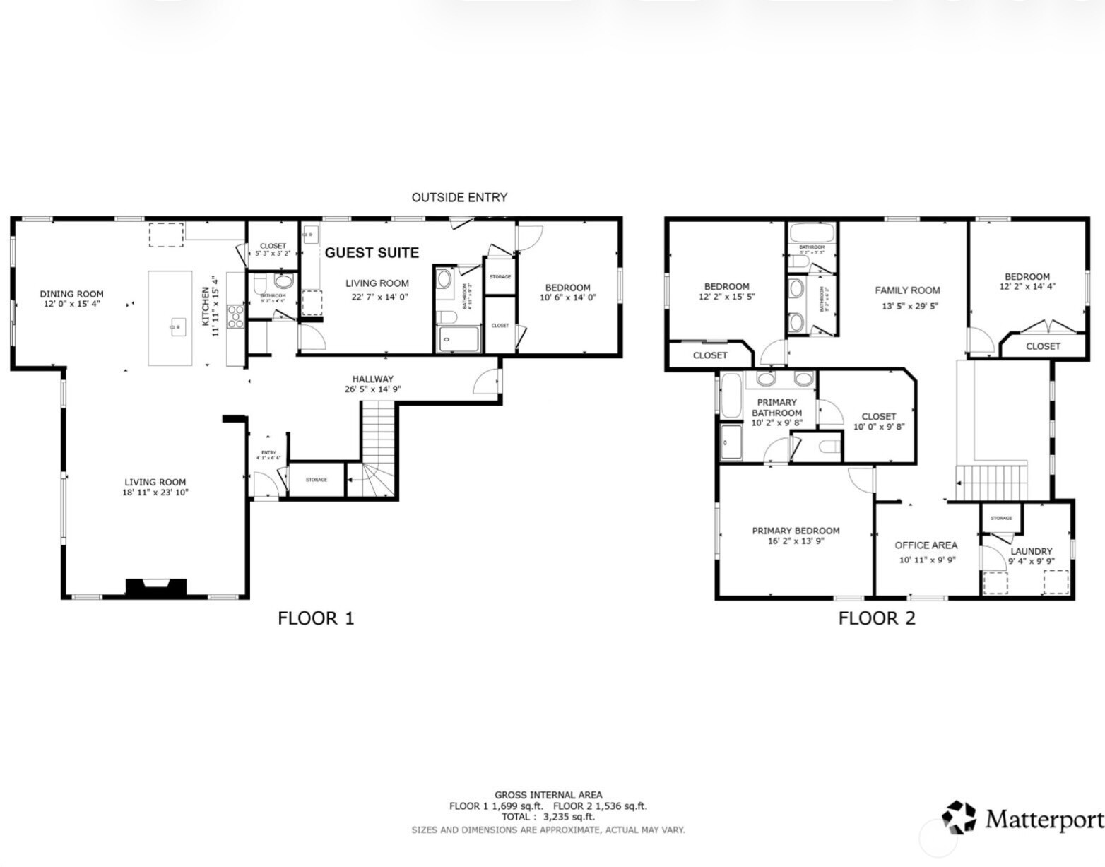
Looking for multi-generational living? The Lennar Bainbridge plan at Soundview Estates West is a thoughtfully designed 3,248 sq ft home. The main level includes a private 1-bedroom apartment-style guest suite, a spacious light-filled great room open to the kitchen and dining area. Upstairs features a family room, two bedrooms, full bath, laundry, flex/office space, and a primary suite with a walk-in closet and 5-pc bath. The guest suite offers a separate entrance (or entry from the main home), living area, kitchenette, bedroom, 3/4 bath, & laundry, providing flexible use. Additional highlights include a 3-car garage, fenced backyard, and smart-home features. Convenient location near schools, PSNS, shopping, and the Bremerton/Seattle ferry.
Listing Provided Courtesy of Lisa Collier, RE/MAX Exclusive
General Information
NWM2443162
Single Family Residence
35
DOM
4
6969.6 SqFt
3.5
3248
2024
Kitsap
Buyer To Verify
Buyer To Verify
Buyer To Verify
Residential
Single Family Residence
Listing Provided Courtesy of Lisa Collier, RE/MAX Exclusive
Krishna Realty data last checked: Nov 07, 2025 21:58 | Listing last modified Nov 07, 2025 19:46,
Source:
Looking for multi-generational living? The Lennar Bainbridge plan at Soundview Estates West is a thoughtfully designed 3,248 sq ft home. The main level includes a private 1-bedroom apartment-style guest suite, a spacious light-filled great room open to the kitchen and dining area. Upstairs features a family room, two bedrooms, full bath, laundry, flex/office space, and a primary suite with a walk-in closet and 5-pc bath. The guest suite offers a separate entrance (or entry from the main home), living area, kitchenette, bedroom, 3/4 bath, & laundry, providing flexible use. Additional highlights include a 3-car garage, fenced backyard, and smart-home features. Convenient location near schools, PSNS, shopping, and the Bremerton/Seattle ferry.