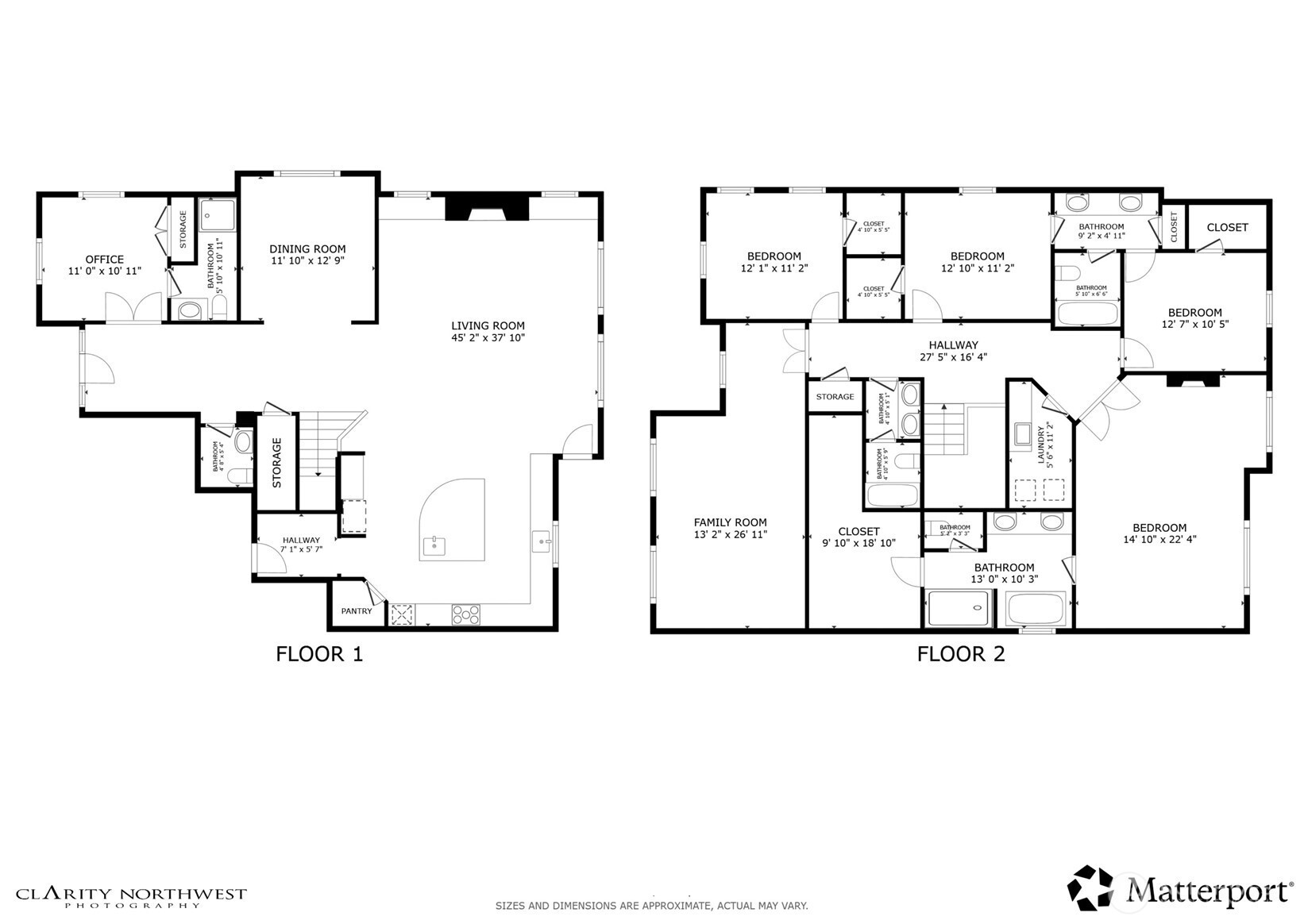
Welcome home to luxury living in the desirable Stetson Ridge Neighborhood. This stunning NW Contemporary home is one of the most popular floor plans in the neighborhood with a refined blend of elegance and functionality. Private .62 acre lot. Wide-planked hardwood flooring is throughout the entire main level that boasts a formal living room, dining room and a main floor bedroom with a 3/4 bath that makes a terrific guest suite, private office or second primary bedroom. Brand new, never-lived-in carpeting is upstairs where the spacious primary suite, three additional bedrooms plus a large bonus room can be found. The upstairs primary suite is oversized with a gas fireplace, soaking tub, large walk-in shower and enormous walk-in closet with built-ins. Popular Jack and Jill Bathroom between two of the bedrooms. Exquisite details throughout such as 10-foot box-beam ceilings, crown molding, wainscoting and built-ins. Chef's kitchen boasts marble countertops, top-of-the-line Viking appliances, wet bar with wine fridge and a spacious walk-in pantry. Covered patio off of the kitchen offers seamless indoor/outdoor living that is ideal for year-round entertaining and relaxation. Three-car garage, a handy mudroom for the PNW lifestyle, an efficient heat pump for heating and cooling, and an on-demand generator. Prime location close to downtown Winslow, the ferry and schools. A terrific island package.
Listing Provided Courtesy of Jen Pells, Windermere RE Bainbridge
General Information
NWM2508568
Single Family Residence
2
DOM
4
0.62 acres
3.5
3606
2015
Kitsap
Buyer To Verify
Woodward Mid
Bainbridge Isl
Residential
Single Family Residence
Listing Provided Courtesy of Jen Pells, Windermere RE Bainbridge
Krishna Realty data last checked: Apr 21, 2026 03:13 | Listing last modified Apr 20, 2026 15:37,
Source:
Welcome home to luxury living in the desirable Stetson Ridge Neighborhood. This stunning NW Contemporary home is one of the most popular floor plans in the neighborhood with a refined blend of elegance and functionality. Private .62 acre lot. Wide-planked hardwood flooring is throughout the entire main level that boasts a formal living room, dining room and a main floor bedroom with a 3/4 bath that makes a terrific guest suite, private office or second primary bedroom. Brand new, never-lived-in carpeting is upstairs where the spacious primary suite, three additional bedrooms plus a large bonus room can be found. The upstairs primary suite is oversized with a gas fireplace, soaking tub, large walk-in shower and enormous walk-in closet with built-ins. Popular Jack and Jill Bathroom between two of the bedrooms. Exquisite details throughout such as 10-foot box-beam ceilings, crown molding, wainscoting and built-ins. Chef's kitchen boasts marble countertops, top-of-the-line Viking appliances, wet bar with wine fridge and a spacious walk-in pantry. Covered patio off of the kitchen offers seamless indoor/outdoor living that is ideal for year-round entertaining and relaxation. Three-car garage, a handy mudroom for the PNW lifestyle, an efficient heat pump for heating and cooling, and an on-demand generator. Prime location close to downtown Winslow, the ferry and schools. A terrific island package.
Similar Properties
Download our Mobile app
$2,299,000
4 Bed
1.5 Bath
3698 SqFt
5 DOM
10143 Battle Point Drive NE,
Bainbridge Island, 98110
$2,288,000
3 Bed
2.5 Bath
3583 SqFt
6 DOM
10258 NE Lafayette Avenue,
Bainbridge Island, 98110