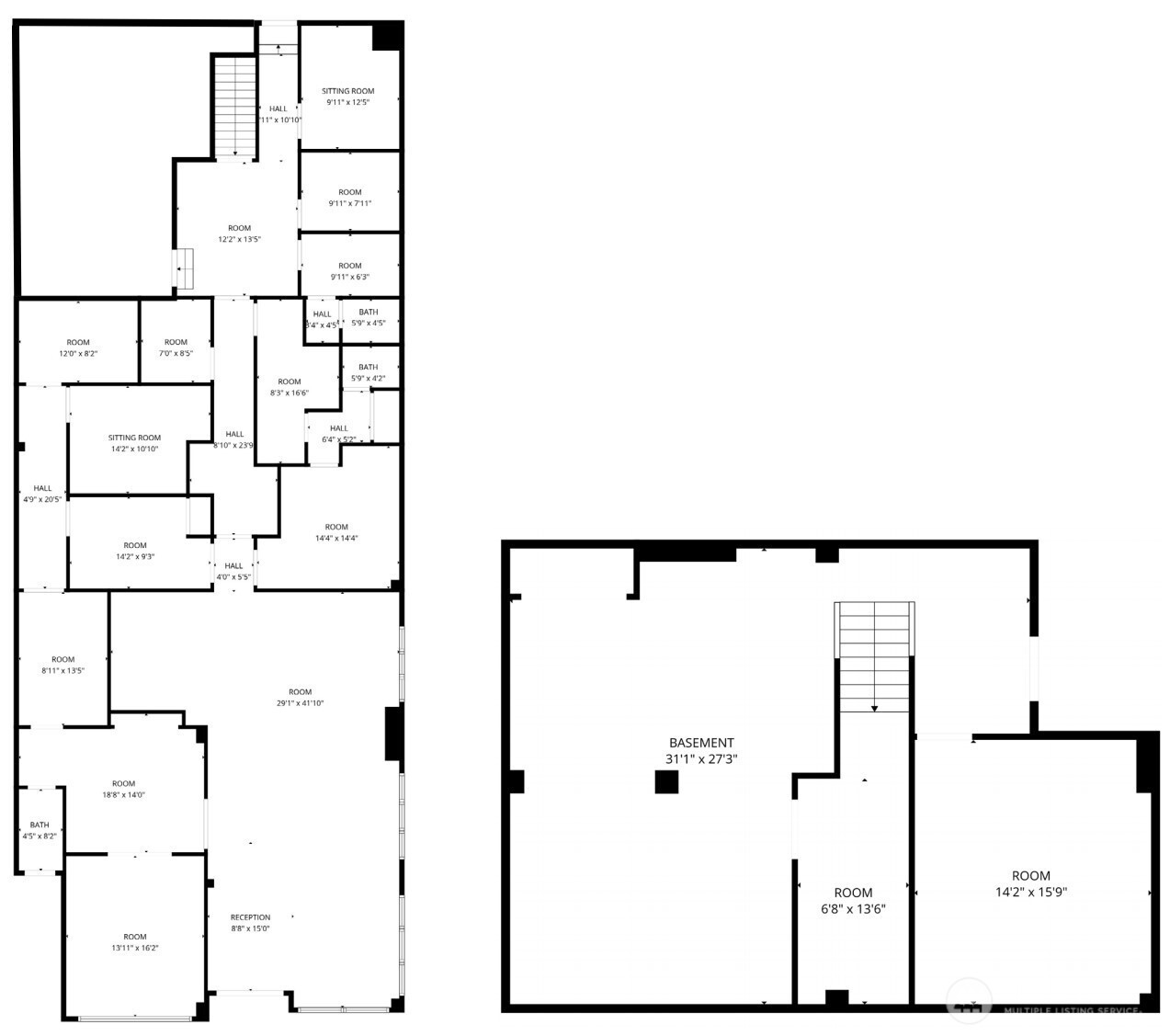
Downtown Bremerton mixed-use that checks the boxes for either an owner-user or as an investor looking upside, or both. 615 4th St features ±4,200 SF on the main level with a large open area plus three separate sections, 3 bathrooms, a kitchen and the ability to split into two spaces—ideal for a showroom, studio, service business, or creative HQ. A ±1,200 SF basement as a storage/ utility space you can use or monetize, while the ±1,120 SF second-floor apartment delivers built-in income at $1,300/month. There are 8 on-site parking stalls, a real advantage in downtown Bremerton. Best of all, the roof’s structural capacity supports expanding the second floor for up to three additional residential units without having to add sprinklers, creating a less costly path to scale future NOI through additional residential units.
Listing Provided Courtesy of Brian Richardson, Kidder Mathews
General Information
NWM2480824
Commercial Industrial
67
DOM
5662.8 SqFt
0
1937
Commerc
Kitsap
Commercial Sale
Commercial Industrial
Listing Provided Courtesy of Brian Richardson, Kidder Mathews
Krishna Realty data last checked: Apr 26, 2026 17:25 | Listing last modified Feb 18, 2026 16:22,
Source:
Downtown Bremerton mixed-use that checks the boxes for either an owner-user or as an investor looking upside, or both. 615 4th St features ±4,200 SF on the main level with a large open area plus three separate sections, 3 bathrooms, a kitchen and the ability to split into two spaces—ideal for a showroom, studio, service business, or creative HQ. A ±1,200 SF basement as a storage/ utility space you can use or monetize, while the ±1,120 SF second-floor apartment delivers built-in income at $1,300/month. There are 8 on-site parking stalls, a real advantage in downtown Bremerton. Best of all, the roof’s structural capacity supports expanding the second floor for up to three additional residential units without having to add sprinklers, creating a less costly path to scale future NOI through additional residential units.