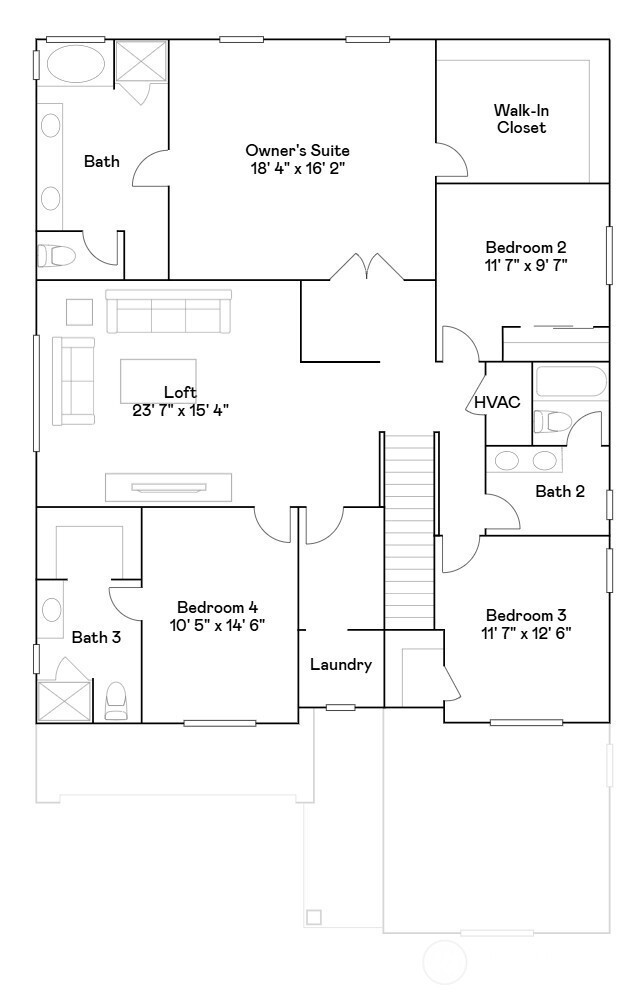
This is a home within a home! Welcome to the Whidbey Next Gen® plan at McCormick Trails by Lennar! This new home features a private ensuite on the first level, complete with a separate entrance, living area, kitchenette, bedroom & bath The main home is host to an inviting open-concept layout with convenient access to a covered patio for simple transitions. Samsung appliances & HUGE pantry in the Kitchen! On the 2nd floor, a versatile loft provides a shared living area easily accessible from 4 bedrooms, 1 of which is another primary suite, lavish owner’s suite w/ 5 pc bath. With Lennar’s signature Everything’s Included®, you’ll find stainless steel appliances, quartz countertops, shaker-style cabinetry and more—all at no extra cost. Buyer’s broker must be registered during the customer’s first interaction with a Lennar Associate to be eligible for compensation.
Listing Provided Courtesy of Eugene Shevchuk, Lennar Sales Corp.
General Information
NWM2469442
Single Family Residence
30
DOM
5
5262.05 SqFt
4.5
3355
2026
Kitsap
Sunnyslope Elem
Cedar Heights J
So. Kitsap High
Residential
Single Family Residence
Listing Provided Courtesy of Eugene Shevchuk, Lennar Sales Corp.
Krishna Realty data last checked: Feb 22, 2026 19:18 | Listing last modified Feb 15, 2026 19:41,
Source:
This is a home within a home! Welcome to the Whidbey Next Gen® plan at McCormick Trails by Lennar! This new home features a private ensuite on the first level, complete with a separate entrance, living area, kitchenette, bedroom & bath The main home is host to an inviting open-concept layout with convenient access to a covered patio for simple transitions. Samsung appliances & HUGE pantry in the Kitchen! On the 2nd floor, a versatile loft provides a shared living area easily accessible from 4 bedrooms, 1 of which is another primary suite, lavish owner’s suite w/ 5 pc bath. With Lennar’s signature Everything’s Included®, you’ll find stainless steel appliances, quartz countertops, shaker-style cabinetry and more—all at no extra cost. Buyer’s broker must be registered during the customer’s first interaction with a Lennar Associate to be eligible for compensation.