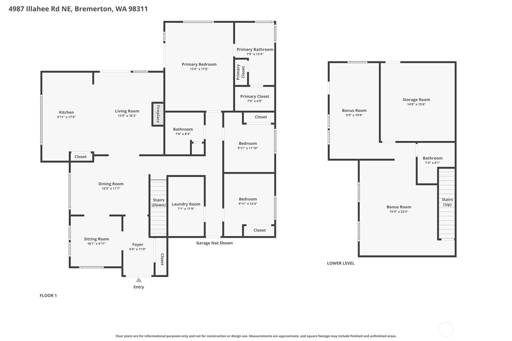
Puget Sound stretches endlessly beyond the glass, a living canvas that shifts from pearl gray dawn to molten copper at dusk, & this Illahee home was built to take in every luminous moment of it. A wonderful floor plan greets you with fashion under foot hardwood floors on the main level, where French doors breathe open & a formal dining room catches the light just so. The kitchen with eating space anchors the rhythm of daily life while the water watches quietly beyond the windows, always there, always changing. Three bedrooms, 2.75 bathrooms including a primary suite with a walk in closet, bath off primary with a jetted tub, offer sanctuary above it all. Below, the fully finished basement opens wide. A spacious family room with wet bar, bonus room, dedicated den, & flex spaces that bend to whatever life asks. Work. Create. Gather. Rest. Then there is the deck. Expansive, unhurried, positioned perfectly to capture the Sound in full, this is where evenings become something worth remembering. Where glasses are raised, conversations linger, & the sky puts on a show no one wants to leave. It is an entertainer's stage & a quiet retreat all at once. Nearly two thirds of an acre completes the picture. Outbuilding, RV parking, a large beautiful lot with room to exhale. This is Illahee, Bremerton: 2,830 square feet of traditional craftsmanship and water views that never grow old. Everything that you need is only moments away. The front door is waiting. Come feel what home looks like.
Listing Provided Courtesy of James J Bergstrom, Paramount Real Estate Group
General Information
NWM2487060
Single Family Residence
1
DOM
3
0.59 acres
3
2830
2000
Kitsap
View Ridge Elem
Mtn View Mid
Bremerton High
Residential
Single Family Residence
Listing Provided Courtesy of James J Bergstrom, Paramount Real Estate Group
Krishna Realty data last checked: Apr 03, 2026 03:15 | Listing last modified Apr 02, 2026 19:12,
Source:
Puget Sound stretches endlessly beyond the glass, a living canvas that shifts from pearl gray dawn to molten copper at dusk, & this Illahee home was built to take in every luminous moment of it. A wonderful floor plan greets you with fashion under foot hardwood floors on the main level, where French doors breathe open & a formal dining room catches the light just so. The kitchen with eating space anchors the rhythm of daily life while the water watches quietly beyond the windows, always there, always changing. Three bedrooms, 2.75 bathrooms including a primary suite with a walk in closet, bath off primary with a jetted tub, offer sanctuary above it all. Below, the fully finished basement opens wide. A spacious family room with wet bar, bonus room, dedicated den, & flex spaces that bend to whatever life asks. Work. Create. Gather. Rest. Then there is the deck. Expansive, unhurried, positioned perfectly to capture the Sound in full, this is where evenings become something worth remembering. Where glasses are raised, conversations linger, & the sky puts on a show no one wants to leave. It is an entertainer's stage & a quiet retreat all at once. Nearly two thirds of an acre completes the picture. Outbuilding, RV parking, a large beautiful lot with room to exhale. This is Illahee, Bremerton: 2,830 square feet of traditional craftsmanship and water views that never grow old. Everything that you need is only moments away. The front door is waiting. Come feel what home looks like.