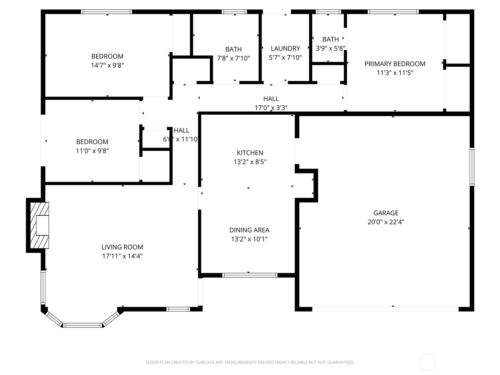
Owned and cared for by the same family for decades, this 1969 home is filled with warmth, history and solid craftsmanship. Tucked on a quiet street in Parkwood near the neighborhood golf course, community center/pool, and elementary school, it offers both community charm and long-term value. Inside in the living room, enjoy nearly new vinyl plank flooring, a cozy gas fireplace, window seat to enjoy the sun, and custom shelving lovingly built by hand. The kitchen features an eat-in peninsula, pull-out drawers, new oven and microwave, and opens to the dining room. The primary bedroom includes new carpet, double closets and a private ½ bath. An updated main bathroom with large ADA-friendly shower and heat lamp add comfort. Outside, a large cedar-lined covered deck invites you to relax and enjoy the quiet, fenced backyard—complete with a hot tub and motorized awning; ADA-friendly Trex ramp, Leaf-Guard gutters, and generator offer practicality today, with room to build equity for tomorrow.
Listing Provided Courtesy of Beth Allen, Keller Williams West Sound
General Information
NWM2482984
Single Family Residence
1
DOM
3
8712 SqFt
1.5
1227
1969
Kitsap
Orchard Heights
Marcus Whitman
So. Kitsap High
Residential
Single Family Residence
Listing Provided Courtesy of Beth Allen, Keller Williams West Sound
Krishna Realty data last checked: Feb 27, 2026 06:57 | Listing last modified Feb 26, 2026 15:34,
Source:
Open House
Sat, Feb 28th, 11AM to 1PM
Download our Mobile app
Residence Information
1227
1/Gas
3
1
1
1.5
Composition
10 - 1 Story
1969
None
None
Features and Utilities
Dishwasher(s), Microwave(s), See Remarks
Bath Off Primary, Dining Room, Fireplace, Triple Pane Windows, Water Heater, Wired for Generator
Wood
Accessible Approach with Ramp, Accessible Bath, Accessible Entrance
Public
Sewer Connected
Financial
3261
Cash, Conventional, FHA, VA Loan
02-26-2026
Comparable Information
1
1
Cash, Conventional, FHA, VA Loan
$415,000
$415,000
Feb 26, 2026 15:34
Schools
Elementary : Orchard HeightsN/ARatings Middle : Marcus Whitman N/ARatings High : So. Kitsap HighN/ARatings
Owned and cared for by the same family for decades, this 1969 home is filled with warmth, history and solid craftsmanship. Tucked on a quiet street in Parkwood near the neighborhood golf course, community center/pool, and elementary school, it offers both community charm and long-term value. Inside in the living room, enjoy nearly new vinyl plank flooring, a cozy gas fireplace, window seat to enjoy the sun, and custom shelving lovingly built by hand. The kitchen features an eat-in peninsula, pull-out drawers, new oven and microwave, and opens to the dining room. The primary bedroom includes new carpet, double closets and a private ½ bath. An updated main bathroom with large ADA-friendly shower and heat lamp add comfort. Outside, a large cedar-lined covered deck invites you to relax and enjoy the quiet, fenced backyard—complete with a hot tub and motorized awning; ADA-friendly Trex ramp, Leaf-Guard gutters, and generator offer practicality today, with room to build equity for tomorrow.