Poulsbo, WA 98370
3 Bed
2 Bath
2237 SqFt
67 DOM
Built: 2023
$695,000
$695000
3 Bed
2 Bath
2237 SqFt
67 DOM
Built: 2023
Principal Broker
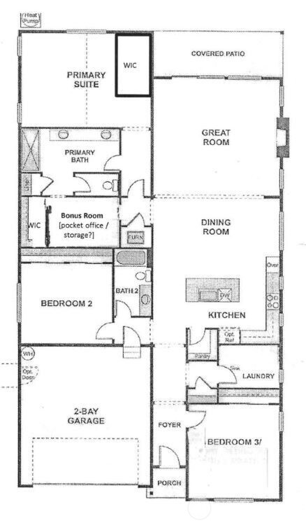
(503) 893-8874One-level living at its finest! This move-in-ready rambler offers 2,237 sq ft of beautifully designed space with 3 large bedrooms, 2 baths, and an inviting open floor plan enhanced by 9-foot ceilings and abundant natural light. The gourmet kitchen is the heart of the home featuring quartz countertops, a large island, soft-close cabinetry, full-height subway tile backsplash, gas cooktop with hood, built-in wall oven and microwave, and a generous walk-in pantry—perfect for everyday cooking or hosting gatherings. The spacious living room includes a cozy gas fireplace and opens directly to a covered outdoor living area—ideal for entertaining or unwinding in your private, fully fenced backyard. Retreat to the generous primary suite with an ensuite bath featuring a tiled shower with bench, dual-sink vanity, and a large linen closet. A versatile bonus room offers endless possibilities: home office, reading nook, craft room, or extra storage—tailored to your lifestyle. Enjoy easy-care custom landscaping with a smart sprinkler system, seasonal blooms, charming walkways, a spacious covered porch, patio, and garden shed—perfect for year-round enjoyment. Wi-Fi–enabled garage door and thermostat included. All appliances convey. Conveniently located for easy commutes to Bangor, Keyport, PSNS, and ferries.
Listing Provided Courtesy of Stacie Whitfield, List4FlatFee.com, LLC
NWM2475637
Single Family Residence
67 DOM
3
5662.8 SqFt
2
2237
2023
Kitsap
Vinland Elem
Poulsbo Middle
North Kitsap Hi
Residential
Single Family Residence
Listing Provided Courtesy of Stacie Whitfield, List4FlatFee.com, LLC
Krishna Realty data last checked: Apr 26, 2026 23:16 | Listing last modified Apr 13, 2026 12:25,
Source:
Download our Mobile app
2237
3
2
0
2
Composition
10 - 1 Story
2023
None
None
Dishwasher, Disposal, Dryer, Microwave, Refrigerator, Stove(s)/Range(s), Washer
Bath Off Primary, Ceiling Fan(s), Dining Room, Pantry, Vaulted Ceiling(s), Walk-In Closet(s), Water
Cement Planked
Public
Sewer Connected
5588
Cash, Conventional, FHA, VA Loan
02-05-2026
67
67
Cash, Conventional, FHA, VA Loan
$738,000
$738,000
Apr 13, 2026 12:25
Listing courtesy of List4FlatFee.com, LLC.
The content relating to real estate for sale on this site comes in part from the IDX program of the NWMLS of Seattle, Washington.
Real Estate listings held by brokerage firms other than this firm are marked with the NWMLS logo, and
detailed information about these properties include the name of the listing's broker.
Listing content is copyright © 2026 NWMLS of Seattle, Washington.
All information provided is deemed reliable but is not guaranteed and should be independently verified.
Krishna Realty data last checked: Apr 26, 2026 23:16 | Listing last modified Apr 13, 2026 12:25.
Some properties which appear for sale on this web site may subsequently have sold or may no longer be available.
Principal Broker
(503) 893-8874One-level living at its finest! This move-in-ready rambler offers 2,237 sq ft of beautifully designed space with 3 large bedrooms, 2 baths, and an inviting open floor plan enhanced by 9-foot ceilings and abundant natural light. The gourmet kitchen is the heart of the home featuring quartz countertops, a large island, soft-close cabinetry, full-height subway tile backsplash, gas cooktop with hood, built-in wall oven and microwave, and a generous walk-in pantry—perfect for everyday cooking or hosting gatherings. The spacious living room includes a cozy gas fireplace and opens directly to a covered outdoor living area—ideal for entertaining or unwinding in your private, fully fenced backyard. Retreat to the generous primary suite with an ensuite bath featuring a tiled shower with bench, dual-sink vanity, and a large linen closet. A versatile bonus room offers endless possibilities: home office, reading nook, craft room, or extra storage—tailored to your lifestyle. Enjoy easy-care custom landscaping with a smart sprinkler system, seasonal blooms, charming walkways, a spacious covered porch, patio, and garden shed—perfect for year-round enjoyment. Wi-Fi–enabled garage door and thermostat included. All appliances convey. Conveniently located for easy commutes to Bangor, Keyport, PSNS, and ferries.
Download our Mobile app