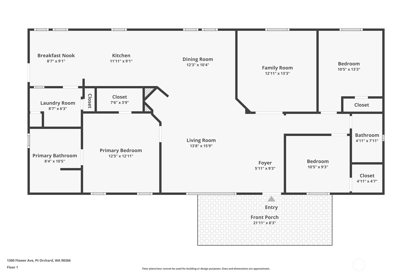
Turn-key rambler in a quiet dead-end setting with acres of privacy buffer on three sides. Ask for the 10-year crime-free report and review the completed pre-inspection for full confidence. Vaulted ceilings create an open, airy feel throughout. Thoughtful orientation fills the home with natural light, featuring a north-facing kitchen and south-facing living room and primary suite. Open design centers on an updated kitchen with gas range flowing seamlessly into living and dining areas anchored by a cozy gas fireplace. Spacious primary bedroom includes walk-in closet and en-suite bath with double vanities, soaking tub, rain shower, and slip-resistant flooring. Two flexible rooms adapt easily for office, guests, or hobbies, one near the living area and one off the kitchen. Separate laundry and walk-in pantry add everyday convenience. Partially fenced yard features two mature flowering cherry trees and circular drive for easy access. Efficient 100% natural gas serves range, heat, fireplace, and dryer to support low lifetime utility costs. Low-maintenance siding, new cedar decks, and 2023 roof enhance durability. Connected to city sewer. Two blocks from 8.4-acre Van Zee Park with pet area, bathrooms, covered shelter, lighted tennis and pickleball courts, basketball, disc golf, trails, and sports field. Close to shopping, medical services, EMT access, highway ramps, and bus lines. Designed for exceptionally low living, operating, and maintenance costs.
Listing Provided Courtesy of Jim Bilbao, eXp Realty
General Information
NWM2467416
Manufactured On Land
36
DOM
3
9583.2 SqFt
2
1566
1998
Kitsap
East Port Orcha
Marcus Whitman
So. Kitsap High
Residential
Manufactured On Land
Listing Provided Courtesy of Jim Bilbao, eXp Realty
Krishna Realty data last checked: Feb 22, 2026 00:33 | Listing last modified Feb 22, 2026 06:10,
Source:
Turn-key rambler in a quiet dead-end setting with acres of privacy buffer on three sides. Ask for the 10-year crime-free report and review the completed pre-inspection for full confidence. Vaulted ceilings create an open, airy feel throughout. Thoughtful orientation fills the home with natural light, featuring a north-facing kitchen and south-facing living room and primary suite. Open design centers on an updated kitchen with gas range flowing seamlessly into living and dining areas anchored by a cozy gas fireplace. Spacious primary bedroom includes walk-in closet and en-suite bath with double vanities, soaking tub, rain shower, and slip-resistant flooring. Two flexible rooms adapt easily for office, guests, or hobbies, one near the living area and one off the kitchen. Separate laundry and walk-in pantry add everyday convenience. Partially fenced yard features two mature flowering cherry trees and circular drive for easy access. Efficient 100% natural gas serves range, heat, fireplace, and dryer to support low lifetime utility costs. Low-maintenance siding, new cedar decks, and 2023 roof enhance durability. Connected to city sewer. Two blocks from 8.4-acre Van Zee Park with pet area, bathrooms, covered shelter, lighted tennis and pickleball courts, basketball, disc golf, trails, and sports field. Close to shopping, medical services, EMT access, highway ramps, and bus lines. Designed for exceptionally low living, operating, and maintenance costs.