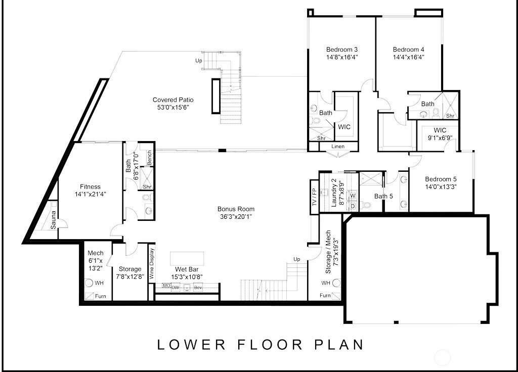
Build your dream home on this rare view property in coveted West Bellevue. The value is in the land, sweeping views, and custom architectural plans with permits in progress. The nearly-level 18,105 sq.ft. lot offers generous, usable yard space and sun-filled northwesterly views of Lake Washington and Olympic Mountain sunsets. Thoughtfully designed by acclaimed local firm McCullough Architects, the plans are tailored to the site and ready for your personal touch. Bring your builder and interior designer to select colors, fixtures, and finishes that reflect your vision. Purchase price includes architectural plans. Photos contain artist renderings of architectural plans. The proposed 6,975 sq.ft. residence features a main-level living design with daylight basement, 5 bedrooms, and 6.5 baths. The main level offers partial views from living and dining rooms, sliding glass walls to a covered view deck, an entertainer’s kitchen, and main level primary suite and guest suite. Please no tours of existing home or deck until after mutual acceptance. Buyer to verify all plan and permitting details. This is an exceptional location and lot - truly unique. Drive by and take in the views!
Listing Provided Courtesy of Kim Jones, Matrix Real Estate, LLC
General Information
NWM2487411
Single Family Residence
42
DOM
4
0.42 acres
2.5
4130
1958
King
Clyde Hill Elem
Chinook Mid
Bellevue High
Residential
Single Family Residence
Listing Provided Courtesy of Kim Jones, Matrix Real Estate, LLC
Krishna Realty data last checked: Mar 26, 2026 01:06 | Listing last modified Mar 04, 2026 19:25,
Source:
Download our Mobile app
Residence Information
4130
1/Gas
4
2
1
2.5
Flat
16 - 1 Story w/Bsmnt.
1958
Daylight
Daylight
Poured Concrete
Features and Utilities
Fireplace
Brick, Wood Products
Public
Available, Sewer Connected
Financial
21111
Conventional
03-03-2026
Comparable Information
42
42
Conventional
$3,999,950
$3,999,950
Mar 04, 2026 19:25
Schools
Elementary : Clyde Hill ElemN/ARatings Middle : Chinook Mid N/ARatings High : Bellevue HighN/ARatings
Build your dream home on this rare view property in coveted West Bellevue. The value is in the land, sweeping views, and custom architectural plans with permits in progress. The nearly-level 18,105 sq.ft. lot offers generous, usable yard space and sun-filled northwesterly views of Lake Washington and Olympic Mountain sunsets. Thoughtfully designed by acclaimed local firm McCullough Architects, the plans are tailored to the site and ready for your personal touch. Bring your builder and interior designer to select colors, fixtures, and finishes that reflect your vision. Purchase price includes architectural plans. Photos contain artist renderings of architectural plans. The proposed 6,975 sq.ft. residence features a main-level living design with daylight basement, 5 bedrooms, and 6.5 baths. The main level offers partial views from living and dining rooms, sliding glass walls to a covered view deck, an entertainer’s kitchen, and main level primary suite and guest suite. Please no tours of existing home or deck until after mutual acceptance. Buyer to verify all plan and permitting details. This is an exceptional location and lot - truly unique. Drive by and take in the views!